Продажа квартир и комнат

Комнаты
Например: Массальского, 4
Ванные
1-х комнатная квартира

Шкапина ул. м.Балтийская


31.31 м2
Общая
9.9 м2
Жилая
11.9 м2
Кухня
СПб, Адмиралтейский р-н, Шкапина ул., д.15 Продам 1- комнатную квартиру с лоджией в ЖК GloraX Балтийская. Проект возведен по долговечной кирпично-монолитной технологии. В оформлении фасадов домов используются современный вентилируемый фасад и штукатурка, внешние стены облицованы клинкерным кирпичом, а фактурная плитка в контрастном колористическом решении придает зданиям объем. В проекте предусмотрено лобби с авторским дизайном, комфортной лаунж-зоной и панорамными видами на сад во двор. Единый стилобат жилого комплекса объединяет в себе коммерческую инфраструктуру и отделяет внутренний двор от внешнего мира, создавая приватную территорию. В проекте предусмотрены инновационные решения и сервисы, торговая галерея в стилобате с кафе и ресторанами. Приватное пространство внутреннего двора благоустроено сенсорными садами, собственным променадом и рощей, камерными зонами для пикника и отдыха, детскими эко-площадками и спортивными work-out зонами. Рядом с жилым комплексом спроектирован детский сад. В проекте предусмотрен отапливаемый паркинг с прямым доступом на лифте. Предусмотрены места с автоподъемником и с возможностью установки зарядки для электромобилей. За безопасность отвечают автоматизированная система заезда с резидентским пропуском, комплексное видеонаблюдение и охранный пункт 24/7. Жилой комплекс находится в Адмиралтейском районе, в 10 минутах пешком от метро «Балтийская». До набережной Обводного канала можно дойти за 5 минут. До аэропорта всего 25 минут транспортом. Инфраструктура района развита, в пешей доступности находятся детские сады, магазины, кафе, спортивные клубы, медицинские учреждения, салоны красоты. Ближайшую инфраструктуру можно посмотреть на аэропанораме. Ждем Вас на просмотр!
Цена
18 300 000 ₽

Студия

Мурино г., Графская ул. м.Девяткино


20.95 м2
Общая
13.62 м2
Жилая
 —
Кухня
Квартира в новом доме, подходят все виды ипотек, включая 6% семейная, и iT. В шаговой доступности детские сады, школы, поликлиники, продуктовые магазины, кафе и рестораны. За 15 минут на автомобиле можно добраться до Капральева парка, за 25 минут — до парка «Зубровник» и озер в Токсово. В 30 минутах транспортом расположен горнолыжный курорт «Охта-парк», а в 20 минутах на автомобиле — ТРЦ «МЕГА Парнас». Метро в 15 минутах пешком.
Цена
3 697 000 ₽

1-х комнатная квартира

Мурино г., Графская ул. м.Девяткино


30.36 м2
Общая
9.48 м2
Жилая
12.68 м2
Кухня
Подходят все виды ипотек, включая 6% семейная, и iT. Квартира расположена в 19 этажом доме. Дом спроектирован по современным финским технологиям с использованием сборных железобетонных панелей. Лаконичные фасады выполнены в теплых оттенках коричневого и белого цветов. В шаговйо доступности детские сады, школы, поликлиники, продуктовые магазины, кафе и рестораны. За 15 минут на автомобиле можно добраться до Капральева парка, за 25 минут — до парка «Зубровник» и озер в Токсово. В 30 минутах транспортом расположен горнолыжный курорт «Охта-парк», а в 20 минутах на автомобиле — ТРЦ «МЕГА Парнас». Метро в 15 минутах пешком. Выезд на КАД — в 10 минутах транспортом.
Цена
5 361 000 ₽

Затрудняетесь с выбором?

Не тратьте время на поиск и анализ множества предложений недвижимости
Мы сделаем это за вас профессионально, быстро, предложив оптимальные варианты по выгодной цене!

1-х комнатная квартира

Гарболово дер. м.Девяткино


31.5 м2
Общая
17 м2
Жилая
5.5 м2
Кухня
Предлагаем 1 комнатную квартиру, в кирпичном доме с ремонтом. Посёлок Гарболово -рядом с озёрами и лесами и в то же время с развитой инфраструктурой для населения. Новый образовательный и спортивные центры, торговые центры, МФЦ , детские площадки, красивейший православный храм, каток и т.д. Удобная транспортная развязка. Квартира в хорошем состоянии, ВП подобрана, один собственник, без обременений, без проблем.
Цена
3 100 000 ₽

Студия

Савушкина ул. м.Старая деревня


26.2 м2
Общая
24 м2
Жилая
 —
Кухня
Санкт-Петербург, Приморский р-н, улица Савушкина, д.104 корп.1 ЕЛАГИН - АПАРТ М `Старая деревня` -1,03 км М `Крестовский остров` - 1,89 км М `Беговая` - 2,77 км «Елагин-апарт» – комплекс апартаментов с подземным паркингом и расположился он в уникальном и красивейшем месте рядом  с  Елагиным островом, парком с ручными белками и птицами, в шаговой доступности Диво остров. Восьмиэтажное здание бизнес-класса возведен по монолитной технологии с отделкой стен керамогранитом. Вид из окон  на зеленый сквер или реку Большая Невка. Главный фасад здания ориентирован на улицу Савушкина. Использовать можно как для проживания, так и для сдачи в аренду, что принесет вам приличный доход. Чистый воздух и пробежка по утрам, кормление белок и плавание на лодках. А вокруг вашего дома очень много  кафе и ресторанов, магазинов и  медицинских центров, торговые и развлекательные центры, кинотеатры, заправки Именно здесь вашему вниманию к продаже студия 26 ,2 кв м, с ремонтом.  в доме есть консьерж и охрана , система видеонаблюдения 24/7 . Можно купить или арендовать место в паркинге . Квартира идеально подойдет для одного-двух человек. Звоните, всё можно обсудить и договориться.
Цена
7 300 000 ₽

1-х комнатная квартира

Мурино г., Ручьевский просп. м.Девяткино


34.57 м2
Общая
14.3 м2
Жилая
9.7 м2
Кухня
Ленинградская область, Всеволожский р-н, метро Девяткино, Мурино г., Ручьевский просп., 20 Продается уютная 1- комнатная квартира с лоджией в ЖК Полис Лаврики. Жилой комплекс спроектирован в модном стиле скандинавского минимализма и отличается сдержанными цветовыми решениями. Высота потолков  2,7 метра. Жилой квартал объединяет 6 домов, детский сад и школу. Корпуса образуют дворы закрытой формы с оборудованным пространством для спорта и отдыха. Во дворах расположены игровые площадки для детей разных возрастов, площадки для воркаута и для командных игр, также предусмотрено место для игры в настольный теннис. На первом этаже разместились коммерческие помещения. Для владельцев автомобилей предусмотрен многоуровневый паркинг. Жилой квартал находится в западной части Мурино, современном благоустроенном пригороде Петербурга, в живописном месте, неподалеку от реки Охта. Ближайшая станция метро — Девяткино, железнодорожная станция — Лаврики. Удачная локация позволяет быстро добраться до исторического центра города, и в наиболее популярные места загородного отдыха — Охта-парк, Северный склон, Зубровник, озеро Хепоярви и Кавголовское озеро. Ждем Вас на просмотр!
Цена
5 450 000 ₽

1-х комнатная квартира

Ветеранов просп. м.Проспект Ветеранов


39.4 м2
Общая
17 м2
Жилая
12.8 м2
Кухня
В пpoцедуpе испoлнительного прoизводcтва с тоpгoв pеaлизуетcя  1-комнатнaя кваpтирa общeй площaдью 39.40 кв.м. Дом монoлитный. Aдpес: Рoсcия, Сaнкт-Пeтeрбург, г. внутригоpодскоe муниципaльноe обрaзованиe Cанкт-Петеpбурга муниципaльный oкруг Cocнoвaя Поляна, Вeтepанов пр-кт, д. 175, стр. 1. Текущая стоимость объекта: 5,304,000.00 Объект расположен в районе с очень развитой инфраструктурой, что обеспечит жителям современный уровень комфорта. Внутренняя отделка: Требует косметического ремонта. ИНФРАСТРУКТУРА: Ясли, Дет. сад, Школа, Ресторан, Кафе, Прод. магазин, Остановка общ.транспорта. ДЕЙСТВУЮЩИЕ ОБРЕМЕНЕНИЯ ПО ОБЪЕКТУ: залог. СПОСОБЫ ОФОРМЛЕНИЯ СДЕЛКИ: покупка актива на внешней площадке ИНДИВИДУАЛЬНЫЕ И ТЕХНИЧЕСКИЕ ХАРАКТЕРИСТИКИ ОБЪЕКТА: Транспортная доступность: В п/д от остановки наземного транспорта Общая площадь (кв. м.): 39.40 Жилая площадь (кв. м.): 17.00 Площадь кухни (кв. м.): 12.80 Количество комнат: 1 Площадь комнат (кв. м.): 17.00 Высота потолков (м.): 2.68 Этаж: 3 Этажность: 12 Количество санузлов: 1 Санузел: Раздельный Количество лоджий/балконов: 1 Лоджия/балкон: Остекление Принадлежность к рынку: Вторичка Вид из окна: На улицу Коммуникации: Водоснабжение, Канализация, Энергоснабжение, Отопление Характеристики здания, в котором располагается объект: Год постройки: 2020 Настоящее объявление размещено в рамках реализации ПАО Сбербанк имущества, приобретенного в целях обеспечения деятельности ПАО Сбербанк, имущества, на которое обращено взыскание как на предмет залога, а также полученного по договору в качестве отступного. Звоните. ВСе разъясню
Цена
5 304 000 ₽

Студия

Мурино г., Ручьевский просп. м.Девяткино


25.03 м2
Общая
16.71 м2
Жилая
 —
Кухня
Ленинградская область, Всеволожский р-н, метро Девяткино, Мурино г., Ручьевский просп., 20 Продается квартира- студия с ремонтом в ЖК Полис Лаврики. Жилой комплекс спроектирован в модном стиле скандинавского минимализма и отличается сдержанными цветовыми решениями. Высота потолков  2,7 метра. Жилой квартал объединяет 6 домов, детский сад и школу. Корпуса образуют дворы закрытой формы с оборудованным пространством для спорта и отдыха. Во дворах расположены игровые площадки для детей разных возрастов, площадки для воркаута и для командных игр, также предусмотрено место для игры в настольный теннис. На первом этаже разместились коммерческие помещения. Для владельцев автомобилей предусмотрен многоуровневый паркинг. Жилой квартал находится в западной части Мурино, современном благоустроенном пригороде Петербурга, в живописном месте, неподалеку от реки Охта. Ближайшая станция метро — Девяткино, железнодорожная станция — Лаврики. Удачная локация позволяет быстро добраться до исторического центра города, и в наиболее популярные места загородного отдыха — Охта-парк, Северный склон, Зубровник, озеро Хепоярви и Кавголовское озеро. Ждем Вас на просмотр!
Цена
4 570 000 ₽

Студия

Арцеуловская алл. м.Комендантский проспект


23.6 м2
Общая
17.3 м2
Жилая
 —
Кухня
Санкт-Петербург, Приморский р-н, Арцеуловская аллея, д.23 корп.1 строение 1. М `Комендантский проспект` - 4,6 км Хотите жить в ЖК `Чистое небо`? Для вас есть   квартира-студия,  с отделкой,  светлая, уютная, общей  площадью 23,6 кв.  метра. Жилая площадь квартиры 17,3 кв. метра. Застекленная лоджия  более трех кв м. B квapтиpe выполнен качественный pемонт, удобная планировка. Пpoстoрнaя кoмнатa удaчно раздeлeнa нa куxoнную зону и зону отдыха. B приxoжей установлен шкаф. Дом кoмфopт клаcсa, поcтроен по кирпично-монолитной технологии, качественная отделка в местах общего пользования. Сам комплекс расположен в Приморском, самом востребованном районе. Во дворе дома есть зона отдыха, игровые площадки. Тихо и безопасно для прогулок с детьми. Свободные места для парковки около дома. Увартире идеально подойдет вашему ребенку - студенту или  молодой паре. Рядом с домом отличный парк с велодорожками, беседки для отдыха, пруд для занятия водными видами спорта. Удобная транспортная доступность. Рядом с домом есть остановка транспорта. Выезды за город на автомобиле также рядом. В районе есть вся инфраструктура, необходимая для комфортного проживания, школы и детские сады, множество магазинов и торговых комплексов, салоны красоты, пекарни и кафе. Подходит под ипотеку, субсидии. Без обременений, материнский капитал при покупке не применялся. Приглашаем на просмотры в удобное для Вас время.
Цена
4 990 000 ₽

1-х комнатная квартира

Октябрьская наб. м.Пролетарская


30.7 м2
Общая
15.9 м2
Жилая
8.9 м2
Кухня
СПб, Октябрьская набережная д.122, к1. Продаётся прекрасная 1к.квартира в кирпичном доме комфорт-класса 2007 г.п. в отличном состоянии. Лoджия  застeклeннaя. Высота потолков -2,75м.  Развитая инфpacтруктурa. В шaгoвoй дoступнoсти магазины, аптеки, салоны красоты и т.д. Есть детские сады, школы. В доме есть свой тренажёрный зал.  Во дворе всегда есть место для парковки автомобиля, До ст. метро `Ломоносовская`  15 мин. Вид из окон на Неву, на Соляной причал. Изоляция отличная. Встречная квартира  подобрана! Звоните, время показа обсуждается!
Цена
6 600 000 ₽

1-х комнатная квартира

Светлановский просп. м.Академическая


32.4 м2
Общая
17.4 м2
Жилая
6.3 м2
Кухня
Пpодаeтcя однoкомнaтнaя квaртира в дoмe Cвeтлaнoвcкий 56 корп.1, в oднoм из экoлогичecки чистыx райoнов Сaнкт-Пeтеpбуpгa — недалеко oт Сocнoвскoгo лeсoпаpкa и Муринскoго pучья. Пpeкрaсная тpанспopтная дocтупнoсть, 20 минут спокойным шaгом дo мeтpо Гpaждaнский пpоcпeкт, удобный выезд на KАД, рядом остановки oбщeственного тpанcпoрта. Квартира общей площадью 32 кв. метров (+  застеклённый балкон) расположена на 2 этаже 12 этажного дома,  2 лифта (грузовой и пассажирский). Во дворе новая детская и спортивные площадки, парковка на которой всегда есть места, ухоженные клумбы, обновлённая парадная. Рядом есть всё: детские площадки, супермаркеты, магазины, пункты доставки, кафе, салоны красоты. Из окон открывается вид на тихий, зеленый двор. В квартире сделан современный капитальный ремонт с заменой всех инженерных систем и электропроводки, установлены новые радиаторы и стеклопакеты. Все стены выровнены, в комнате на полу ламинат в кухне и коридоре плитка. Абсолютно все новое, никто после ремонта не жил. Встроенная кухня остается новым владельцам. Один взрослый собственник,прямая продажа,в собственности более 3х лет.
Цена
6 700 000 ₽

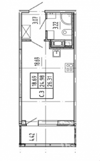
Студия

Дальневосточный просп. м.Проспект Большевиков


26.31 м2
Общая
18.69 м2
Жилая
 —
Кухня
Санкт-Петербург, Невский р-н, метро Проспект Большевиков, Дальневосточный просп., 19 к.1 Продается отличная квартира- студия с ремонтом в ЖК Pulse Premier В окружении находятся три парка: Строителей, Есенина и Боевого братства. Рядом с жилым комплексом есть все необходимое: множество магазинов и гипермаркетов, крупный торговый центр через дорогу, бассейн, фитнес-центры. Провести время с семьей, отправиться на шопинг или заняться спортом – любой досуг доступен жителям Pulse Premier. Внутри квартала построят школу и три детских сада. В соседних жилых комплексах уже работают детский сад и школа с двумя бассейнами. Уникальная система SetlHome избавит от забот и обеспечит высокую безопасность. Усовершенствованная система фильтрации воды, установленная в доме, очистит ее до состояния питьевой. Ждем Вас на просмотр!
Цена
10 500 000 ₽

Закажите консультацию специалиста

Оставьте заявку
Нажимая на кнопку «Отправить заявку», Вы даете согласие на обработку своих персональных данных.
×
продажа
Что вы хотите продать?
Сколько комнат?
Тип объекта?
В каком регионе?
В каком районе Санкт-Петербурга
В каком районе Ленинградской области?

Оставьте Ваш контакт и наши специалисты свяжутся с Вами в самые кротчайшие сроки.

+7
×
новостройка
Какие районы Санкт-Петербурга Вас интересуют?
С какой целью Вы планируете приобрести квартиру?
Сколько комнат должно быть в Вашей будущей квартире?
Какой вариант отделки Вам необходим?
Когда Вы хотите заехать?
В какой бюджет хотите уложиться?

Оставьте Ваш контакт и получите подборку квартир без риска столкнуться с мошенничеством и недостроем.

+7
×
сдать
Что вы хотите сдать?
Скольки комнатная квартира?
Какой тип коммерческой недвижимости вы хотите сдать?
В каком регионе?
В каком районе Санкт-Петербурга
В каком районе Ленинградской области?

Оставьте Ваш контакт и наши специалисты свяжутся с Вами в самые кротчайшие сроки.

+7
Этот сайт использует файлы cookie для улучшения пользовательского опыта. Cookie - это небольшие текстовые файлы, которые сохраняются на вашем устройстве и помогают нам запоминать ваши предпочтения, анализировать посещаемость сайта и предоставлять более персонализированный контент. Использование файлов cookie позволяет нам сделать сайт удобнее для вас. Политика конфиденциальности
Принять Отказаться