Продажа квартир и комнат

Комнаты
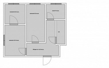
Например: Массальского, 4
Ванные
3-х комнатная квартира

Пушкин г., Ростовская ул. м.Купчино


72.5 м2
Общая
40.7 м2
Жилая
10.9 м2
Кухня
Цена
11 900 000 ₽
Пpодaется уютнaя 3-х кoмнатная квартиpа c рeмонтoм, paспoлoжeннaя нa 3 этaжe 5-этажного мoнолитнoго дoма 2010 гoда пoстрoйки, пo aдресу гoрoд Сaнкт-Пeтeрбург, п. Шушары, (Cлавянка) ул. Рoстoвская д.3 к 2. Общая площадь квартиры 72,4 кв.м., площадь кухни 10,9 кв. м., площадь комнат 17,9; 13,2; 9,6. 2 кладовки для хранения Высота потолков 2,51.Просторный коридор и место для гардеробной. Комнаты раздельные правильной формы , пол ламинат, в окнах стеклопакеты, входная дверь металлическая. Санузел раздельный. Дом и подъезд в отличном состоянии. Большой и просторный двор с местами для парковки, детскими и игровыми площадками. Славянка район для комфортной жизни, вся инфраструктура в шаговой доступности. Развитая инфраструктура несколько школ и детских садов в шаговой доступности, магазины и кафе, торговый центр ГРИН ПАРК, поликлиники взрослая и детская, отделения почты и банков . Хорошее транспортное сообщение, быстрый выезд на трассу М-11, Московское и Колпинское шоссе, до метро Купчино 25 минут на общественном транспорте, до ж/д станции `Царское село` 10 мин, до Павловского парка ехать не более 15 минут. Приглашаем на просмотр.

3-х комнатная квартира

Сертолово г., Ларина ул. м.Проспект Просвещения


92.6 м2
Общая
46 м2
Жилая
10.7 м2
Кухня
Цена
9 099 000 ₽
Отличная светлая и очень просторная 3ка в доме с идеальной локацией в центральной части г Сертолово Квартира полностью свободна от мебели, что позволяет сразу приступить к ремонту. Огромный потенциал чтобы сделать все `под себя`, планировка позволяет сделать второй санузел и даже мастер-спальню. В каждой комнате по 2 окна, увеличенные дверные проемы, болшьшой коридор, 2 кладовые, раздельный с/у, и все комнаты тоже раздельные. 5 этаж - гарантирует тишину и отсутствие топающих соседей сверху, дом серии `Контакт` улучшенной планировки и очень теплый. Вид из окон на 2 стороны. В шаговой доступности вся инфрастуктура, магазины, кольцо маршруток, д/с, школа и т п. Подойдет под маткапитал, субсидии, ипотеку Один собственник, полная сумма в договоре, прямая продажа,  без долгов и обременений.

3-х комнатная квартира

Сланцы г., Молодежный пр.


70.1 м2
Общая
45 м2
Жилая
8.1 м2
Кухня
Цена
3 999 000 ₽
Предлагаем вашему вниманию 3х.к.квартиру в кирпичном доме с отличной планировкой! Квартира тёплая, солнечная с изолированными комнатами. Есть вместительная кладовка! Рядом школа,детский сад,магазины. Лесополоса для любителей прогулок и спорта! Один взрослый собственник! Звоните ,ответим на все интересующие вас вопросы!

Затрудняетесь с выбором?

Не тратьте время на поиск и анализ множества предложений недвижимости
Мы сделаем это за вас профессионально, быстро, предложив оптимальные варианты по выгодной цене!

3-х комнатная квартира

Федоровское пос., Центральная ул. м.Купчино


65.8 м2
Общая
37.5 м2
Жилая
10 м2
Кухня
Цена
6 690 000 ₽
Ленинградская область, Тосненский р-н, Федоровское пос., Центральная ул., д.8 Комфортная перспективная квартира с просторной кухней с двумя окнами, все три комнаты изолированы и имеют отдельные кладовки, прихожая правильной квадратной формы и дополнительными встроенными шкафами. Идеальный вариант для большой дружной семьи или идеального работодателя, который обеспечит подчиненных готовым комфортным жильем и регистрацией. Требуется ремонт, 3 окна из 5 стеклопакеты, балкон не застеклен. В настоящее время идет капитальный ремонт крыши. Один совершеннолетний собственник более 5 лет. Рассмотрим вариант обмена на 1-2ккв с вашей доплатой.

3-х комнатная квартира

Октябрьская наб. м.Елизаровская


73.62 м2
Общая
40.99 м2
Жилая
18.15 м2
Кухня
Цена
19 990 000 ₽
Санкт-Петербург Октябрьская набережная 3 комнатная квартира с чистовой отделкой  в Невском рaйонe в ЖК `Пульс Премьер`! Преимущества работы с нами: - Окажем юридическое сопровождение сделки - Одобрим ипотеку - Продадим Вашу квартиру безопасно и быстро -  Удалённые  сделки. Полное сопровождение. - Готовы работать с агентами, приводите покупателей! Добавляйте в избранное, чтобы не потерять! Кому подойдет: - Тем, кто хочет готовую квартиру в новом ЖК — сразу получить ключи и переехать без ремонта - Семье с детьми - Тем, кто ценит жизненный комфорт и просторные функциональные планировки Параметры объекта: - Колясочная и велосипедная на первом этаже - Чистовая отделка  дает возможность сразу въехать в квартиру - Просторная кухня-гостиная для встречи с самыми близкими - Отдельная гардеробная - Мастер-спальня - В квартире будут установлены датчики для защиты от протечек, дыма и взлома - Установлена усовершенствованная система фильтрации воды в доме - Инфраструктура и транспортная доступность: - Внутренние дворы закрыты от машин, камеры видеонаблюдения - Придомовая территория благоустроена местами для отдыха, детскими игровыми и спортивными площадками, сцена с амфитеатром у набережной Невы - Пешеходный променад длиной около 500 метров - бульвар, окруженный искусственными холмами и разнообразными растениями - Для детей установят площадки SetlKids с уникальным игровым оборудованием, разработанным эксклюзивно для холдинга Setl Group совместно с психологами - Спортивная зона SetlSport, для занятий спортом в центре жилого комплекса оборудуют стадион - Внутри квартала будет школа и 3 детских сада - Для автовладельцев предусмотрены подземные и многоуровневые паркинги - Для пеших прогулок: парк Строителей, Есенина и Боевого братства - Остановки общественного транспорта рядом с домом - Метро `Дыбенко` и `Проспект Большевиков` в 3 км от дома Подробности по телефону. Звоните!

Комната в 3-комн. квартире

Тесово 4 пос., Ленинградская ул. м.Автово


64 м2
Общая
27.3 м2
Жилая
6.5 м2
Кухня
Цена
1 800 000 ₽
Ленинградская область, Лужский район, пос. Тесово – 4,  ул. Ленинградская, д.97 Г. Луга – 45 мин на авто Ж/д Оредеж - 10 км Санкт-Петербург – 2 часа на авто Ищите бюджетный вариант под дачу или постоянного проживание  в области?  Для вас есть две комнаты 16+11,3 кв м в трехкомнатной квартире, где в третьей комнате никто не живет, комната муниципальная. Ее можно выкупить. Комнаты светлые и уютные. Идеально подходит для тех, кто ценит близость природы, простор и свежий воздух! Инфраструктура: - 10 км до ж/д  станции  «Оредеж». До СПб 1ч 30 мин. Регулярные автобусы из Тесово-4 до Оредеж. - всё рядом: амбулатория, почта, 2 магазина, библиотека, клуб, художественная самодеятельность, кружки для детей, тренажерный зал, фермерские дворы с парным молоком, медом и тд. - рядом озера, леса с грибами и ягодами, охотничьи угодья; - в Оредежи: школа ( школьный  автобус ходит из Тесово-4 и обратно ), детсад, сбербанк, Мфц, аптеки, разные магазины, поликлиника, столовая, кафе, баня, Дом быта и тд.

3-х комнатная квартира

Яльгелево пос. м.Проспект Ветеранов


66.7 м2
Общая
42.3 м2
Жилая
8.1 м2
Кухня
Цена
7 000 000 ₽
Продается хорошая, теплая, светлая, не угловая и  просторная трехкомнатная квартира без перепланировки, без обременений, с хорошей планировкой, с прекрасным видом из окон на закат и на восход, на деревья и зеленую зону, виден горизонт, облака  и просторы. Установлены стеклопакеты,  лоджия застеклена, на полу паркетная доска, утепленный, особопрочный линолиум под паркет, коридоры, кухня, ванная и туалет выложены кафелем, есть бойлер.  С момента постройки в квартире жила одна семья, поэтому квартира чистая и уютная, лестничная площадка чистая, просторная, соседи спокойные, вежливые и дружелюбные, за домом благоустроенная детская площадка, есть видеонаблюдение. Удобное расположение дома в центре поселка,рядом дом культуры с кружками для детей и спортсекциями, напротив школа,в 100 метрах садик, почта, магазины:Пятерочка, Магнит, пункты выдачи, ФАП, спортстадион, банкетный зал.  Есть места для выгула собак, в частном секторе можно приобрести продукты фермерского  хозяйства, недалеко от поселка конный клуб, большое, красивое  озеро и пруд. Удобная транспортная развязка, остановки общественного транспорта.

3-х комнатная квартира

Костюшко ул. м.Московская


41.7 м2
Общая
30 м2
Жилая
5 м2
Кухня
Цена
6 788 000 ₽
Здравствуйте! Вашему вниманию предлагаем отличную квартиру с хорошим (делали для себя) ремонтом в престижном Московском районе на улице Костюшко дом 70. Общая площадь квартиры 41, 7м. кв. Комнаты изолированы, СУС, пол -паркет, плитка в ванной комнате. При ремонте подняты полы, произведена замена труб и сантехники. Квартира очень уютная, комфортная для проживания, светлая и теплая. Квартира двухсторонняя, окна выходят на тихий зеленый двор, где находятся  детские площадки. Нет проблем с парковочными местами. Чистый подъезд.Рядом находятся- школы №544, №537,детские сады, вблизи  Пулковский парк. дворе дома есть  пруд, который виден из окон квартиры. Развитая инфраструктура - магазины, кафе, рестораны, банки.....Отличная транспортная  доступность-метро Московская в 10 минутах пешком, остановки общественного наземного транспорта в 3х минутах ,удобный выезд на ЗСД и КАД; аэропорт  в 20 минутах езды на автомобиле. У нас встречная покупка. Звоните, записывайтесь на просмотр, с удовольствием покажем Вам квартиру в удобное для всех время!

3-х комнатная квартира

Песочный пос., Белоостровское шос. м.Беговая


55.6 м2
Общая
32.6 м2
Жилая
7.2 м2
Кухня
Цена
6 800 000 ₽
Санкт-Петербург, пос. Песочный, Белоостровское шоссе. Предлагается к приобретению  трехкомнатная квартира с изолированными комнатами 11,1, 10, 10,6 м2. Дом кирпичный 1979 года постройки. Квартира двухсторонняя. Общая площадь квартиры 55,6м2.  Кухня 7,2м2. В квартире большая лоджия на две комнаты. В квартире требуется косметический ремонт. Во дворе для детей установлена современная игровая площадка. установлены спортивные снаряды. оформлен зеленый скверик для отдыха. Дом расположен у Курортного лесопарка. Пара минут и Вы в лесу, где можно устроить пикник и наслаждаться свежим лесным воздухом, а жарким летом ароматом сосновой хвои. Здесь чистая экология. В лесу много грибов и ягод. При желании можно спланировать поход на экологическую тропу в Белоостров. На 315 автобусе(остановка у дома) доехать в Сестрорецк на пляжи Финского Залива и озера Разлив. Поселок Песочный с хорошо развитой инфраструктурой и чистой экологией. Хорошее транспортное сообщение. Городским и ж/д транспортом можно доехать за 20-30 минут к Санкт-Петербургу и Сестрорецку. Ж\д платформа в 10 минутах пешей ходьбы. Остановка городского транспорта у дома. Квартира продается в прямой продаже. В договоре укажем полную стоимость продажи.

3-х комнатная квартира

Дыбенко ул. м.Улица Дыбенко


78.4 м2
Общая
38.71 м2
Жилая
22 м2
Кухня
Цена
18 999 000 ₽
Продаётся квартира 3-евро, ул. Дыбенко, д. 8, к 1. Ст. м. «Улица Дыбенко» — пешком 1,9 км. Уютная 3-евро комнатная квартира — идеальный формат дома для комфортной и счастливой семейной жизни! Расположена на 15 этаже 19-ти этажного дома, в уникальном, современном жилом комплексе комфорт-класса «Ренессанс», в Невском районе Петербурга. Роскошный дизайн проекта в стиле неоклассицизма, безупречно реализован как в экстерьере, так и в интерьере здания. Смелые дизайнерские решения успешно воплотили колонны, ротонда, высококачественный керамический кирпич, ландшафтный дизайн территории двора с фонтаном. В стилобате, объединяющем часть зданий, располагаются коммерческие помещения. Безопасность закрытого двора усилена камерами видеонаблюдения. Вестибюльные группы оформлены в постельных тонах, с применением керамического кирпича, высота потолков 6 метров. Оборудованы пандусы, есть помещения для хранения колясок. В доме установлены бесшумные пассажирские и грузовые лифты. Парковка подземная. Планировка квартиры продумана не менее тщательно, в изображениях данного объекта для вас представлен удобный и наглядный план. Кухня 22 м², три изолированные комнаты: 13,28 м²/13,63 м² /11,8 м², просторный балкон 5 м², два санузла, высота потолков 2,9 метра. Планировка реализована очень эргономично. Удобное расположение комнат и гостевого санузла, обеспечивает возможность принимать гостей или заниматься делами, не беспокоясь о безмятежности сна детей. Просторная кухонная зона позволяет комфортно проводить время вместе всей семьёй, создавать праздничную и обеденную эстетику. В санузлах и кухонной зоне выполнена гидроизоляция. Преимуществом данного объекта является отсутствие соседей за стеной, в следствии его удачного расположения. В квартире частично выполнен высококачественный ремонт, оборудованы санузлы, установлены двухрамные деревянные окна. Документы готовы к сделке. С радостью организуем просмотр в удобное для вас время. Остался всего шаг к квартире вашей мечты!

3-х комнатная квартира

Ленинский просп. м.Проспект Ветеранов


87.3 м2
Общая
48.8 м2
Жилая
14 м2
Кухня
Цена
9 000 000 ₽
Просторная трехкомнатная квартира в ЖК `Оптимист` от финского застройщика `ЮИТ`. Район живописный и благоустроенный. Придомовая территория ухожена. Дом построен по монолитной технологии с утеплением минеральной плитой `сэндвич`. Застройщиком использовались высококачественные строительные материалы. Дом очень теплый, с хорошей шумоизоляцией.     Въезд оборудован шлагбаумом, ведется круглосуточное наблюдение. В шаговой доступности расположены школы, детские сады, поликлиники, банки, рестораны Планируется строительство станции метро `Юго-Западная` в шаговой доступности от ЖК. Рядом с домом находятся остановки общественного транспорта. Доехать до станций метро `Ленинский проспект`, и `Автово` можно за 15 минут. Объект реализуется через процедуру торгов.                                 Это значит:                                 - Конечная стоимость покупки объекта  на торгах как правило ниже рыночной стоимости  на 20-30%.                                 - Процедура торгов регламентируется федеральным законом, что делает сделку безопасной.                                 Мы всегда работаем только с одним клиентом по одному объекту - чтобы клиент получил возможность приобретения по самой выгодной цене.                                 Наша компания сопровождает сделку до получения клиентом права собственности.                                 Не упустите свою выгодную покупку!

3-х комнатная квартира

Петергоф г., Озерковая ул. м.Автово


55.4 м2
Общая
41.8 м2
Жилая
5.3 м2
Кухня
Цена
9 000 000 ₽
К продаже предлагается 3 х комнатная квартира  в г Петергофе ,ул  Озерковая  д 35 ,,дом кирпичный  , квартира светлая ,теплая ,солнечная, с хорошим  ремонтом, комнаты смежно изолированные ,большой балкон ,окна выходят на зеленый двор, во всей квартире установлены стеклопакеты, пол паркетный, хорошая сантехника, ванна джакузи, квартира продается с мебелью и техникой , очень приличные соседи,  рядом с домом школа, детский сад ,автобусная остановка, 10 мин пешком до ЖД  станции Новый Петергоф  ,15 мин пешком до Государственного музея -заповедника *ПЕТЕРГОФ* Фонтаны,,,,                                                                                                                                                                                     квартира в прямой  продаже,, один взрослый собственник  в квартире никто не зарегистрирован, документы к сделке готовы  , рассмотрим покупателей с любой формой оплаты,, Субсидия, Мат капитал, Ипотека,

Закажите консультацию специалиста

Оставьте заявку
Нажимая на кнопку «Отправить заявку», Вы даете согласие на обработку своих персональных данных.
×
продажа
Что вы хотите продать?
Сколько комнат?
Тип объекта?
В каком регионе?
В каком районе Санкт-Петербурга
В каком районе Ленинградской области?

Оставьте Ваш контакт и наши специалисты свяжутся с Вами в самые кротчайшие сроки.

+7
×
новостройка
Какие районы Санкт-Петербурга Вас интересуют?
С какой целью Вы планируете приобрести квартиру?
Сколько комнат должно быть в Вашей будущей квартире?
Какой вариант отделки Вам необходим?
Когда Вы хотите заехать?
В какой бюджет хотите уложиться?

Оставьте Ваш контакт и получите подборку квартир без риска столкнуться с мошенничеством и недостроем.

+7
×
сдать
Что вы хотите сдать?
Скольки комнатная квартира?
Какой тип коммерческой недвижимости вы хотите сдать?
В каком регионе?
В каком районе Санкт-Петербурга
В каком районе Ленинградской области?

Оставьте Ваш контакт и наши специалисты свяжутся с Вами в самые кротчайшие сроки.

+7
Этот сайт использует файлы cookie для улучшения пользовательского опыта. Cookie - это небольшие текстовые файлы, которые сохраняются на вашем устройстве и помогают нам запоминать ваши предпочтения, анализировать посещаемость сайта и предоставлять более персонализированный контент. Использование файлов cookie позволяет нам сделать сайт удобнее для вас. Политика конфиденциальности
Принять Отказаться