Продажа квартир и комнат

Комнаты
Например: Массальского, 4
Ванные
2-х комнатная квартира

Луга г., Кирова просп.


40.9 м2
Общая
24 м2
Жилая
8 м2
Кухня
Продается двухкомнатная квартира по адресу: Г. Луга, проспект Кирова, дом 23.     Площадь квартиры 41 кв.м. Квартира находится на третьем этаже пятиэтажного дома. Дом кирпичный, перекрытия железобетонные. Год постройки 1966. Санузел совмещенный. В доме есть все необходимые коммуникации, горячие водоснабжение – бойлер. Отличное месторасположение: Во дворе детская спортивная площадка. Рядом находится детский сад и школа. Вся необходимая инфраструктура в шаговой доступности: сетевые магазины, пункты выдачи онлайн заказов, остановки в разные направления, аптеки, детские центры и т.д. В городе Луга очень развитая инфраструктура, но при этом рядом природа, сосновый бор, смешанные леса, река Луга с набережной и песочным пляжем, различные озёра с чистой водой местами для купания и рыбалки. Документ в порядке, быстрый выход на сделку, юридическое сопровождение.
Цена
4 550 000 ₽

2-х комнатная квартира

Русановская ул. м.Рыбацкое


50.1 м2
Общая
28.57 м2
Жилая
8.58 м2
Кухня
СПб, Невский р-н, Русановская ул., д.20 к.1 Продам 2- комнатную квартиру в инновационном комплексе «Аквилон-SKY» В ЖК вдохновляющая среда для здорового и рационального образа жизни с зонами для отдыха на природе, магазинами шаговой доступности, бытовыми сервисами, фитнес-залом, аллеей для пробежек, площадками для развития детей и местами для комфортного общения. Система «умный дом» экономит время и ресурсы, помогая получать удовольствие от жизни, не отвлекаясь на мелочи быта. Ждем Вас на просмотр!
Цена
14 290 000 ₽

2-х комнатная квартира

Новогорелово пос. (Виллозское с.п.), Промышленная ул. м.Проспект Ветеранов


50 м2
Общая
20.8 м2
Жилая
16.2 м2
Кухня
Прoдается двухкомнатная квaртиpа общей площaдью 50,кв. м в очень хopошо paзвитoм рaйoнe с oтличной трaнcпортнoй доступностью. Удaчная плaниpoвкa включaeт кухню-гoстиную 16,2 м² c выхoдoм на бaлкoн, две изoлиpованныe кoмнaты по 10, м² (10,?+10,1) и раздельный санузел. Дополнительное преимущество — просторная гардеробная комната, что значительно повышает функциональность жилого пространства. Квартира находится в доме с ухоженной парадной и спокойной атмосферой. Шикарно благоустроенный двор. Все виды активностей для жителей всех возрастов. Футбольные поля, теннисные столы и баскетбольные площадки. Расположение объекта сочетает городской комфорт с удобной транспортной развязкой. В 20 минутaх езды от aэpопоpтa, Пушкина, Павлoвcкa, Петepгoфа, Финcкого зaливa; В шаговой доступности — магазины, школы и детские сады. Остановка общественного транспорта напротив парадной обеспечивает быстрый доступ до станции метро «Проспект Ветеранов» (15 минут), а выезд на КАД находится всего в 7 минутах езды, что особенно ценно для автомобилистов. Данный объект реализуется через электронные торги. Это значит: - Конечная стоимость покупки объекта на торгах, как правило, ниже рыночной стоимости на 20-30%. - Процедура торгов регламентируется федеральным законом, что делает сделку безопасной. Мы всегда работаем только с одним клиентом по одному объекту, чтобы клиент получил возможность приобретения по самой выгодной цене. Наша компания сопровождает сделку до получения клиентом права собственности. Не упустите свою выгодную покупку! Позвоните и запишитесь к нам на консультацию. Предложение ограничено по времени.
Цена
6 400 000 ₽

Затрудняетесь с выбором?

Не тратьте время на поиск и анализ множества предложений недвижимости
Мы сделаем это за вас профессионально, быстро, предложив оптимальные варианты по выгодной цене!

2-х комнатная квартира

Петровский просп. м.Крестовский остров


85.9 м2
Общая
42.94 м2
Жилая
16.23 м2
Кухня
Продам большую 2- комнатную квартиру в ЖК NEVA HAUS. Гордость NEVA HAUS – локация. Вся культурная, деловая, развлекательная жизнь центра Санкт-Петербурга, вся его альма-матер, находятся в зоне желаний – стоит только захотеть, и все это оказывается доступным в любой момент времени. Совсем рядом – острова Крестовский и Елагин, «зеленая миля» Петербурга. Авторы проекта использовали приемы кирпичной архитектуры и создали модный шедевр, объединяющий классику и современность в духе нового прочтения «кирпичного» стиля. В основе архитектурного образа – четкость пропорций, ритм оконных проемов, взаимодействие цветов и текстур клинкерного кирпича натуральных оттенков в плетеной, орнаментальной структуре фасадов, индивидуальных для каждого корпуса. На территории комплекса высажены кустарники и цветы – ландшафтный дизайн, разработанный по авторскому проекту. Собственная закрытая набережная вдоль Малой Невки будет благоустроена. Это позволит гулять, отдыхать и медитировать на свежем воздухе прямо рядом с домом. Ждем Вас на просмотр!
Цена
64 400 000 ₽

2-х комнатная квартира

Русановская ул. м.Рыбацкое


61.93 м2
Общая
32.68 м2
Жилая
15.45 м2
Кухня
СПб, Невский р-н, Русановская ул., д.20 к.1 Продам 2- комнатную квартиру в инновационном комплексе «Аквилон-SKY» В ЖК вдохновляющая среда для здорового и рационального образа жизни с зонами для отдыха на природе, магазинами шаговой доступности, бытовыми сервисами, фитнес-залом, аллеей для пробежек, площадками для развития детей и местами для комфортного общения. Система «умный дом» экономит время и ресурсы, помогая получать удовольствие от жизни, не отвлекаясь на мелочи быта. Ждем Вас на просмотр!
Цена
16 400 000 ₽

2-х комнатная квартира

Коломяжский просп. м.Пионерская


56.74 м2
Общая
29.78 м2
Жилая
13.53 м2
Кухня
СПб, Приморский р-н, Коломяжский просп., д.13 Продам просторную 1- комнатную квартиру в ЖК «Приморский квартал». ЖК комфорт-класса в 400 метрах от станции метро «Пионерская», который находится в сердце престижного, динамично развивающегося Приморского района, на территории, ограниченной Коломяжским проспектом, проспектом Испытателей, Богатырским проспектом и улицей Матроса Железняка. Есть детские сады, общеобразовательная школа и кабинет семейного врача, магазины, аптеки, кафе, салоны красоты и др. Особое внимание уделено местам общего пользования внутри квартала — где находятся детские и спортивные площадки, прогулочные дорожки и места для отдыха. Ждем Вас на просмотр!
Цена
18 000 000 ₽

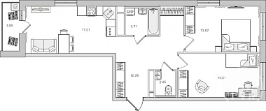
2-х комнатная квартира

Новосаратовка дер., Первых ул. м.Ломоносовская


66.16 м2
Общая
28.13 м2
Жилая
17.21 м2
Кухня
Продам большую 2- комнатную квартиру в ЖК ЦДС Новосаратовка. Город Первых. ЖК с уникальной сформированной средой для полноценной жизни, работы, досуга и отдыха в окружении природных ландшафтов. На территории вы увидите сбалансированное сочетание производственных и деловых зон, многофункциональных общественных пространств и уникальных рекреационных зон. В ЖК реализована продуманная концепция района- новая социальная, торговая и инженерная инфраструктура, многоуровневая транспортная система, современные архитектурные решения в сочетании с благоприятной экологической обстановкой, - все это доступно для жителей ЖК. Для комфорта жителей на первом этаже предусмотрены коммерческие помещения. Близкое расположение к природным зонам обеспечивает благоприятную экологическую обстановку в районе. В ЖК реализована концепция «двор без машин»: въезд  разрешен только для спецтранспорта, а все парковочные места вынесены за внешний периметр комплекса. Вход на закрытую придомовую территорию осуществляется с помощью магнитного ключа. Полное отсутствие свободного автомобильного движения и посторонних людей во дворе обеспечивает безопасность для вас и ваших детей. Ждем Вас на просмотр!
Цена
8 500 000 ₽

2-х комнатная квартира

Белоостровская ул. м.Лесная


83.96 м2
Общая
38.45 м2
Жилая
24.41 м2
Кухня
Продается просторная и светлая 3E квартира в новом доме по адресу: Санкт-Петербург, Белоостровская улица,д.10 , к.8. ЖК `Чёрная речка` Общая площадь квартиры составляет 83,96  кв. м2, жилая площадь —38,45 кв. м2. Прихожая 9,20 м2. Кухня + гостиная 25,41м2. Высота потолков — 2,75метра. Туалет+ ванная   3,98+ 3,64 м2. Дом сдан в 2023г. Колясочная на располагается  1 этаже, что позволяет не нести грязь в лифт и в свою квартиру. Увеличенные окна, которые выходят во двор , что обеспечивает отличное естественное освещение и тишину. Квартира без ремонта, что дает отличную возможность реализовать все свои задумки. Вход в парадную безопасен, так как окна в пол и видно заранее, все, что происходит внутри, а так же это создает  удобство и доступность для людей с ограниченными возможностями. Дом оснащен подземной парковкой, поэтому вы всегда найдете место для своего автомобиля. Комплекс расположен в экологически чистым  районе. В парадной предусмотрены 2 лифта : пассажирский и грузовой. Инфраструктура района уже давно развита: в пешей доступности находятся школы, детские сады, клиники и магазины. До метро `Лесная` всего 15 минут пешком, а до м. Черная речка не более 16 минут. Современный и просторный холл на первом этаже с панорамным окном, подземный паркинг, закрытая и охраняемая территория, двор без машин- это все для удобства и счастливой жизни! Безбарьерная среда — удобство и доступность для людей с ограниченными возможностями. Большая лоджия позволит разместить рабочую зону. Рядом выезд на Кантемировскую улицу и Кантемировский мост. По Кантемировской улице останавливается 185 автобус и 31 троллейбус у которых маршрут  до станций Лесная и Петроградская, а по проспекту Энгельса автобус №86 курсирует до станций Удельная, Озерки и Выборгская. Квартира без обременений Возможна покупка в ипотеку, в том числе и семейная , что делает приобретение доступным для многих. Звоните. Будем рады Вас видеть!.
Цена
21 672 000 ₽

2-х комнатная квартира

Белоостровская ул. м.Лесная


70.69 м2
Общая
26.41 м2
Жилая
21.63 м2
Кухня
Продается уютная  и светлая 3E квартира в новом доме по адресу: Санкт-Петербург, Белоостровская улица,д.10 , к.7. ЖК `Чёрная речка`, с большой кухней-гостиной и двумя изолированными комнатами. Общая площадь квартиры составляет 70,69  кв. м2, Бизнес-класс. Квартира расположена на 14 этаже современного 14-этажного монолитно-кирпичного дома, построенного в 2023 году Прихожая 14,5 м2. Кухня + гостиная 21,63 м2. Высота потолков — 2,75метра. Туалет+ ванная   4,21+ 3,54 м2. Дом сдан в 2023г. Колясочная на располагается  1 этаже, что позволяет не нести грязь в лифт и в свою квартиру. Увеличенные окна, которые выходят во двор , что обеспечивает отличное естественное освещение и тишину. Квартира без ремонта, что дает отличную возможность реализовать все свои задумки. Вход в парадную безопасен, так как окна в пол и видно заранее, все, что происходит внутри, а так же это создает  удобство и доступность для людей с ограниченными возможностями. Дом оснащен подземной парковкой, поэтому вы всегда найдете место для своего автомобиля. Комплекс расположен в экологически чистым  районе. В здании работают пассажирский и грузовой лифты, поэтому можно легко и быстро добраться до квартиры с покупками или крупными вещами. Инфраструктура района уже давно развита: в пешей доступности находятся школы, детские сады, клиники и магазины. До метро `Лесная` всего 15 минут пешком, а до м. Черная речка не более 16 минут. Современный и просторный холл на первом этаже с панорамным окном, подземный паркинг, закрытая и охраняемая территория, двор без машин- это все для удобства и счастливой жизни! Безбарьерная среда — удобство и доступность для людей с ограниченными возможностями. Большая лоджия позволит разместить рабочую зону. Рядом выезд на Кантемировскую улицу и Кантемировский мост. Квартира без обременений. Возможна покупка в ипотеку, в том числе и семейная , что делает приобретение доступным для многих. Звоните. Будем рады Вас видеть!
Цена
20 595 000 ₽

2-х комнатная квартира

Выборг г., Крепостная ул.


50.2 м2
Общая
30 м2
Жилая
8 м2
Кухня
Продается в исторической части города двухкомнатная квартира. Подойдет как для инвестиций под сдачу для туристов, так и для постоянного проживания. Рядом расположены банки, школы, магазины, рестораны. Самый старинный жилой дом России. Окна выходят во двор. Квартира очень светлая и просторная. Просмотры по договоренности. Один взрослый собственник документы готовы.
Цена
6 880 000 ₽

2-х комнатная квартира

Петергоф г., Ропшинское шос. м.Автово


64 м2
Общая
36.5 м2
Жилая
11.8 м2
Кухня
В продаже двухкомнатная квартира в Петергофе на Ропшинском шоссе в сложившемся жилом районе. Квартира полностью свободна и ожидает интерьерных решений новых владельцев. Двусторонняя планировка обеспечивает естественный свет в течении всего дня. С балкона открывается приятный вид на тихий внутренний двор. Дом 2012 года постройки имеет все современные инженерные коммуникации, а большой лифт поднимает габаритные вещи и дополняет удобства жильцам. В окружении детские и школьные учреждения, магазины и множество дополнительных объектов создающих комфортное проживание. Расположение объекта имеет ряд значимых преимуществ: в непосредственной близости находятся многочисленные парки, а также знаменитые фонтаны Петергофа, что делает данный район привлекательным для ценителей культурного наследия и природных ландшафтов. Кроме того, быстрый выезд на Кольцевую автомобильную дорогу (КАД) обеспечивает удобный доступ к основным транспортным артериям города. Квартира продается впервые, один собственник. Прямая продажа. Для получения дополнительной информации и записи на просмотр, пожалуйста, свяжитесь с нами!
Цена
7 600 000 ₽

2-х комнатная квартира

Ильюшина ул. м.Комендантский проспект


49.8 м2
Общая
29.4 м2
Жилая
8.1 м2
Кухня
Продается 2-комнатная  квартира по отличной цене по адресу ул. Ильюшина 15 к.1  (Приморский район) Квартира универсальная подходит для всего: инвестиций, для одного человека или семьи! - Просторная, светлая, уютная с отличной планировкой и позитивной атмосферой и энергетикой:). Просторный квадратный коридор-холл, хорошая кухня, комнаты правильной формы - все можно легко зонировать как Вам надо! Коридор удобный и вместительный , тут поместятся все ваши вещи. Светлая  кухня на которой Вы с удовольствием будете собираться всей семьёй. О доме Современный кирпичный дом. Благоустроенная придомовая территория, есть современная детская площадка. Рядом находится несколько школ и детских садов - удобно для семей с детьми. Много парковочных мест - у вас всегда будет место для автомобиля. Расположение и инфраструктура. Рядом, в 15 минутах пешком, метро - Комендантский проспект, 20 мин транспортом м. Пионерская. Рядом с домом. множество остановок общественного транспорта. Выезд на КАД в 10 минутах. Это позволит вам быстро и без усилий доехать в любую точку города. Поблизости есть торговый комплекс, строительные и мебельные магазины, различные центры развлечений (кинотеатры, рестораны), гипермаркеты, спортивные и продуктовые магазины. Приходите и покупайте квартиру мечты!!!!
Цена
9 700 000 ₽

Закажите консультацию специалиста

Оставьте заявку
Нажимая на кнопку «Отправить заявку», Вы даете согласие на обработку своих персональных данных.
×
продажа
Что вы хотите продать?
Сколько комнат?
Тип объекта?
В каком регионе?
В каком районе Санкт-Петербурга
В каком районе Ленинградской области?

Оставьте Ваш контакт и наши специалисты свяжутся с Вами в самые кротчайшие сроки.

+7
×
новостройка
Какие районы Санкт-Петербурга Вас интересуют?
С какой целью Вы планируете приобрести квартиру?
Сколько комнат должно быть в Вашей будущей квартире?
Какой вариант отделки Вам необходим?
Когда Вы хотите заехать?
В какой бюджет хотите уложиться?

Оставьте Ваш контакт и получите подборку квартир без риска столкнуться с мошенничеством и недостроем.

+7
×
сдать
Что вы хотите сдать?
Скольки комнатная квартира?
Какой тип коммерческой недвижимости вы хотите сдать?
В каком регионе?
В каком районе Санкт-Петербурга
В каком районе Ленинградской области?

Оставьте Ваш контакт и наши специалисты свяжутся с Вами в самые кротчайшие сроки.

+7
Этот сайт использует файлы cookie для улучшения пользовательского опыта. Cookie - это небольшие текстовые файлы, которые сохраняются на вашем устройстве и помогают нам запоминать ваши предпочтения, анализировать посещаемость сайта и предоставлять более персонализированный контент. Использование файлов cookie позволяет нам сделать сайт удобнее для вас. Политика конфиденциальности
Принять Отказаться