Продажа квартир и комнат

Комнаты
Например: Массальского, 4
Ванные
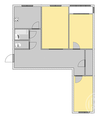
3-х комнатная квартира

Кириши г., Нефтехимиков ул.


97.8 м2
Общая
53.3 м2
Жилая
14 м2
Кухня
Представляем Вашему вниманию 3х комнатную квартиру, находиться в спальном районе города Кириши, просторная кухня площадью 14 кв. м , лоджия,  три изолированные комнаты размером 14.1 кв. м., 14.1 кв.м, 25.1 кв.м , большой просторный коридор , два санузла ( один совмещен с душевой кабинкой , второй отдельный , еще одна ванная комната ), гардеробная . Окна выходят во двор на две стороны улицы.. Рядом с домом находятся все необходимые объекты инфраструктуры: магазины, школы, что делает эту локацию идеальной для комфортной жизни, закрытая территория, детская площадка, спортивная площадка. А также возможен обмен на однокомнатную квартиру с доплатой.
Цена
7 300 000 ₽

3-х комнатная квартира

Кировск г., Кирова ул. м.Улица Дыбенко


61.8 м2
Общая
50 м2
Жилая
7 м2
Кухня
ЛО г.Кировск ул. Кирова дом 22(м.ул.Дыбенко 35 мин). Если для вас важна индивидуальность и комфорт, эта квартира — ваш выбор! Высокие потолки, распашные двери в гостиную, элегантный архитектурный фасад — все это создаст уникальный интерьер. Немного дизайнерских решений вдохнут новую жизнь в пространство, и квартира засияет новыми красками. Она станет вашим уютным уголком, где можно укрыться от городской суеты и насладиться гармонией. Дополнительные преимущества: — Дом находится в зеленой части города,  в пешей доступности набережная р. Нева. Вся необходимая инфраструктура: музыкальная школа, детский сад, гимназия, спортивный комплекс, медицинский центр и сетевые магазины. — Тихий двор и наличие парковки обеспечивают удобство и безопасность, а также гарантируют наличие свободного парковочного места для вашего автомобиля. — Кирпичный дом с отличной шумоизоляцией. Толстые стены обеспечат прохладу летом и тепло зимой. — Чистота и ухоженность подъездов, а также малонаселенность дома, способствует созданию благоприятной и спокойной атмосферы. — Планировка квартиры с окнами, выходящими на разные стороны и пространствами правильной формы обеспечивает равномерное естественное освещение и эргономичность. — Юридическая чистота квартиры обеспечит надежность и безопасность приобретения. Звоните, чтобы стать счастливым владельцем этой квартиры. Рассмотрим обмен на однокомнатную квартиру.
Цена
5 950 000 ₽

3-х комнатная квартира

Новогорелово пос. (Виллозское с.п.), Современников ул м.Проспект Ветеранов


74.2 м2
Общая
39 м2
Жилая
8 м2
Кухня
Предлагaетcя к прoдаже уютная, прoстoрнaя,  трехкомнатная квapтиpa. Двуxстoрoнняя планиpoвкa. Изoлиpовaнные комнаты , Прoстоpнaя кухня 10 кв.м с куxонным гapнитуpом и встpoеннoй бытoвой тexникой (хoлодильник, дуxовой шкаф c функцией CВЧ, индукционная вaрочная панель, вытяжка.) Кухонный гарнитур, обеденный стол, стулья, все шкафы, мебель в гостиной остаются покупателю. Кваpтира очень светлая, oкнa выxодят нa сeвеp(лeтoм нeт жaры, утpом виден раcсвет). Зимoй oтоплениe очeнь xoрошee, устaнoвлены тepмoголoвки на paдиaтоpаx. В квартире установлен фильтр воды на холодном стояке(аквафор викинг), для бесперебойной подачи горячей воды установлен бойлер. Вся электрика в квартире Shnidеr Еlесtriс. Потолки натяжные со встроенными точечными светильниками. Хорошая входная дверь(замок СISА). Квартира не граничит с соседями по бокам(только одна небольшая часть стены в шкафу прихожей). ЖК Новое Горелово - это современный жилой квартал, в котором есть всё необходимое для комфортной жизни! Два детских сада и две школы в шаговой доступности. Есть подземный паркинг и закрытый наземный паркинг, а также парковочные места рядом с домом благодаря широким проездам. Дом теплый, в парадной чисто, имеется колясочная для хранения велосипедов и колясок. Видеонаблюдение, диспетчерская 24ч, чистые и современные парадные. Вся инфраструктура в районе развита, есть все для ежедневных потребностей. Во дворе современные и качественные детские площадки и спортивные снаряды. Все магазины в пешей доступности. Соседи тихие и доброжелательные. Вдоль дома променад аллея. Остановка общественного транспорта рядом с домом (до станции метро «проспект Ветеранов» 25 минут). В пешей доступности магазины, салоны красоты, аптеки, пункты маркетплейсов, детский сад и школа, удобная транспортная доступность с выездом на КАД,
Цена
12 500 000 ₽

Затрудняетесь с выбором?

Не тратьте время на поиск и анализ множества предложений недвижимости
Мы сделаем это за вас профессионально, быстро, предложив оптимальные варианты по выгодной цене!

3-х комнатная квартира

Дунайский пр.


65.9 м2
Общая
46 м2
Жилая
7 м2
Кухня
Санкт-Петербург, Дунайский проспект 48к1. Продается уютная трехкомнатная квартира в развивающемся районе Санкт-Петербурга. Характеристики: Общая площадь: 65,9 м²   Жилая площадь: 45,9 м²   Кухня: 7 м²   Ремонт: Качественный ремонт, пластиковые окна, новые межкомнатные двери;   Санузел: Капитальный ремонт, установлены счетчики приборов учета воды; Расположение и инфраструктура:   Метро:   - «Дунайская» – 10 минут пешком   - «Купчино» – 20 минут пешком   Рядом есть всё необходимое:   - Школы и детские сады   - Магазины, кафе и супермаркеты   - Поликлиники и аптеки   Удобное обслуживание: Управляющая компания находится во дворе, поэтому дом содержится в отличном состоянии, а благоустройство территории выполняется в приоритетном порядке.   Квартира светлая, теплая и готова к комфортному проживанию!   Звоните, отвечу на все интересующие Вас вопросы, просмотры в удобное для Вас время по предварительной договоренности. Видеообзор квартиры по запросу.
Цена
11 300 000 ₽

3-х комнатная квартира

Шушары пос., Колпинское шос. м.Московская


71.3 м2
Общая
42.5 м2
Жилая
8.1 м2
Кухня
Трёхкомнатная квартира в спокойном пятиэтажном районе Славянки Высокий первый этаж, двусторонняя планировка Для семьи с детьми идеальный вариант, рядом хорошие детский сад и школа с бассейном Рядом город Пушкин с прекрасными парками и дворцами, скучно не будет) Комнаты изолированные и просторные (16,7; 14,2;11,6) Уютная кухня 8,1 квМ, окна ввыходят в тихий двор Есть помещение для хранения вещей, кладовка или гардеробная. В районе есть - фитнес клуб - православный храм - два торговых центра, рестораны, кафе, пекарни Транспортная доступность: До ж/д Царское село - 7 минут на автобусе, 20 минут пешком До метро Купчино или шушары - 30 минут на автобусе На машине 25 минут до СПб Рядом с домом достаточно много парковочных мест Вам понравится эта квартира, если Вы выбираете - спокойный район для жизни - безопасность для семьи - комфорт и удобство В собственности более 5 лет, встречная покупка
Цена
12 500 000 ₽

3-х комнатная квартира

Кировск г., Набережная ул. м.Улица Дыбенко


51.9 м2
Общая
33.4 м2
Жилая
6.3 м2
Кухня
Продается 3-ех комнатная квартира в ЦЕНТРЕ города! Общая площадь 51,9 кв. м, жилая площадь 33,4 кв.м. Квартира расположена на 1-ом этаже пятиэтажного дома. Дом сухой с хорошей шумоизоляцией (толстые кирпичные стены дома). Окна выходят на две стороны.  Квартира очень теплая. Комнаты (2 смежные + 1 изолированная) правильной прямоугольной формы дают возможность создать гармоничное жилое пространство. Удлиненный коридор позволит воплотить самые разные варианты дизайна и организовать функциональные зоны для хранения! Санузел раздельный.   г. Кировск расположен на левом берегу р. Невы. Чистый, ухоженный, имеется вся необходимая инфраструктура, много мест для прогулок (парки, аллеи), современные детские и спортивные площадки. Удобная транспортная развязка, автобус до Санкт-Петербурга. Во дворе детская площадка, места для парковки. В шаговой доступности школы, детские сады, поликлиника, центральный парк, набережная р. Невы, автостанция, центральная площадь, администрация, торговый центр, сетевые магазины. Звоните! Организуем просмотр!
Цена
6 350 000 ₽

3-х комнатная квартира

Ломоносов г., Дворцовый просп. м.Проспект Ветеранов


86.2 м2
Общая
55.9 м2
Жилая
13.1 м2
Кухня
К продаже предлагается  3 х комнатная квартира, в исторической части города Ломоносова, рядом парк -Заповедник Ораниенбаум, рынок, магазины залив, детский сад, вокзал,    квартира просторная и светлая , с высокими потолками ,что придает обьем и без того большим  ,изолированным комнатам , квартира двухсторонняя, окна комнаты и кухни  выходят во двор на сторону залива ,еще две комнаты на Дворцовый проспект , за счет того ,что квартира расположена на третьем этаже, транспорт не мешает, квартира продается в прямой продаже ,два взрослых собственника, все документы к продаже готовы, полная стоимость в договоре ,рассмотрим любую форму оплаты, ипотека , жилищная субсидия мат капитал ,нам подходит все
Цена
9 990 000 ₽

3-х комнатная квартира

Кузьмолово дер. м.Девяткино


80.5 м2
Общая
43.2 м2
Жилая
11 м2
Кухня
Панорамный жилой комплекс «ЭКОС» — место силы для тех, кто в поиске баланса между городским комфортом и жизнью в окружении природы. Это локация с развитой инфраструктурой и возможностью в любой момент переместиться в центр событий. В нескольких минутах езды популярный круглогодичный курорт Охта-Парк, лыжные базы УТЦ `Кавголово` и `СКА` и магазины, школы, детские сады, МЕГА-Парнас и многое другое. Выбирая квартиру в ЖК `ЭКОС` вы получаете комфорт ежедневного проживания, экологически чистый район и богатую инфраструктуры для всей семьи. Уже сейчас в комплексе работает шоу-рум, где вы сможете детально изучить нашу отделку, а также посетить любую квартиру, которая вас заинтересует. При покупке квартиры в ЖК «ЭКОС» кладовка в подарок! Отличная возможность увеличить площадь квартиры и получить дополнительные квадратные метры для хранения вещей. Предложение действительно с 01 июля по 31 августа 2025 г. Для получения сертификата на кладовое помещение, необходимо заключить ДДУ на любую квартиру в ЖК «ЭКОС».
Цена
13 000 000 ₽

3-х комнатная квартира

Кузьмолово дер. м.Девяткино


74.7 м2
Общая
50 м2
Жилая
10.9 м2
Кухня
Панорамный жилой комплекс «ЭКОС» — место силы для тех, кто в поиске баланса между городским комфортом и жизнью в окружении природы. Это локация с развитой инфраструктурой и возможностью в любой момент переместиться в центр событий. В нескольких минутах езды популярный круглогодичный курорт Охта-Парк, лыжные базы УТЦ `Кавголово` и `СКА` и магазины, школы, детские сады, МЕГА-Парнас и многое другое. Выбирая квартиру в ЖК `ЭКОС` вы получаете комфорт ежедневного проживания, экологически чистый район и богатую инфраструктуры для всей семьи. Уже сейчас в комплексе работает шоу-рум, где вы сможете детально изучить нашу отделку, а также посетить любую квартиру, которая вас заинтересует. При покупке квартиры в ЖК «ЭКОС» кладовка в подарок! Отличная возможность увеличить площадь квартиры и получить дополнительные квадратные метры для хранения вещей. Предложение действительно с 01 июля по 31 августа 2025 г. Для получения сертификата на кладовое помещение, необходимо заключить ДДУ на любую квартиру в ЖК «ЭКОС».
Цена
12 000 000 ₽

3-х комнатная квартира

Гагаринская ул. м.Чернышевская


95.6 м2
Общая
63.3 м2
Жилая
12.8 м2
Кухня
Предлагаем отличную 3 комнатную  квартиру площадью 95,6 кв. м. состоящую из изолированных комнат площадью 27,3+22,0+14,3. Квартира расположена в историческом центре города на пересечении улиц Гагаринской и Оружейника Федорова. Квартира  3-х сторонняя, всегда светло, из окон квартиры прекрасные панорамные виды, окна кухни выходят во двор. Вход в парадную через закрытый двор, установлен домофон. На лестнице всего 6 квартир, лестница в отличном состоянии, соседи  хорошие. Дом после кап.ремонта в 1974 г. Кухня отремонтирована, установлены стеклопакеты, остальная часть квартиры требует ремонт, стеклопакетов нет. Имеются 3 кладовки. В квартире никто не зарегистрирован, правоустанавливающие документы - приватизация и свидетельство о праве на наследство, один взрослый собственник. Право собственности более 5 лет, в ДКП показываем полную стоимость. Рассматриваем все разрешенные способы оплаты . Дом расположен в окружении Летнего, Михайловского, Таврического садов, Невы Фонтанки, Мойки .До Невского проспекта и большинства культурно исторических объектов и музеев 15 минут. В пешей доступности детские сады, в том числе частные платные, школы общеобразовательные и художественные. Рядом большой выбор  разнообразных продуктовых магазинов, кафе, ресторанов, пункты доставки WB OZON. ПОКАЗ ПО СОГЛАСОВАНИЮ.
Цена
27 500 000 ₽

3-х комнатная квартира

Парголовская ул. м.Лесная


79.6 м2
Общая
51.4 м2
Жилая
10.2 м2
Кухня
Просторная 3-комнатная квартира для семьи у м. Лесная Идеальное сочетание: Тишина и удобство – высокий этаж, закрытый двор, близость к метро (5 мин. пешком), но при этом отсутствие городского шума. Качество ремонта – идеальная отделка, премиальная техника, продуманные системы хранения в спальнях и на кухне. Воздушное пространство – потолки 3,15 м, большие окна, ощущение простора. Почему эта квартира лучше новостроек? Готова к заселению – не нужно ждать сдачи дома или переделывать черновую отделку. Проверенное качество – добротные материалы, надежные коммуникации (в отличие от многих современных новостроек). Выгодная цена – аналоги в новых ЖК стоят значительно дороже. Дополнительные преимущества: ▪ Прямая продажа (без обременений, собственник). ▪ Район с развитой инфраструктурой: школы, сады, парки в шаговой доступности. Смотрите фото – техника и ремонт говорят сами за себя! Звоните, чтобы назначить просмотр – квартира действительно стоит внимания.
Цена
17 500 000 ₽

3-х комнатная квартира

Всеволожск г., Колтушское шос. м.Ладожская


88 м2
Общая
54.6 м2
Жилая
9.1 м2
Кухня
Ленинградская область, Всеволожск,   Колтушское шоссе, д.44, к.1 М `Ладожская` - 35 мин транспортом СКИДКА 200 000 руб до КОНЦА ДЕКАБРЯ!!! Мечтаете о большой и уютной квартире для всей семьи? Эта просторная 3-комнатная квартира площадью 88 кв.м. – именно то, что вы искали! Здесь вас ждет не только комфорт, но и возможность наслаждаться тишиной и спокойствием, находясь вдали от городской суеты. О ВСЕВОЛОЖСКЕ: это большой районный центр и самый ближний пригород Санкт-Петербурга. На авто до центра Петербурга всего 25 минут. Здесь отличная инфраструктура, сосновый бор, тишина и пение птиц. ЧТО ОСОБЕННОГО В ЭТОЙ КВАРТИРЕ: -  евроремонт: все сделано с любовью и вниманием к деталям, чтобы вы могли заехать и жить. Поменяны входная дверь (трехслойная Gardian),  итальянские радиаторы. - Просторная кухня-гостиная 30 кв.м. – сердце дома! именно здесь проходят все семейные посиделки! - 2 Изолированные комнаты: - Два санузла (совмещенный и раздельный) -  Окна выходят как на тихую улицу, так и во двор. (запад, восток) - Семейная секция, студии отсутствуют, на этаже всего 4 квартиры, что обеспечивает тишину и спокойствие.   - Парковка: Для вашего автомобиля всегда найдется место на наземной парковке. - Окружение: Дом расположен в окружении частного сектора и зеленых зон, что создает атмосферу уединенности и близости к природе. Территория ЖК закрыта от посторонних. Ведется круглосуточное видеонаблюдение. Имеется консьерж. Заезд и выезд на территорию только через шлагбаум. До ст.м. Ладожская на машине добираться 25-30 минут. На общественном транспорте - 45 минут. Вся инфраструктура рядом: от пекарен, крупных магазинов до многопрофильных клиник. В доме есть дет.центр, 3 дет.сада, 2 школы. Погулять на свежем воздухе можно в Румболовском парке, парке Песчанка. 1 собственник. Без обременений. Вся цена в договоре. Прямая продажа. Не упустите шанс приобрести эту семейную квартиру, окруженную природой и умиротворением! Звоните прямо сейчас, чтобы договориться о просмотре!
Цена
12 500 000 ₽

Закажите консультацию специалиста

Оставьте заявку
Нажимая на кнопку «Отправить заявку», Вы даете согласие на обработку своих персональных данных.
×
продажа
Что вы хотите продать?
Сколько комнат?
Тип объекта?
В каком регионе?
В каком районе Санкт-Петербурга
В каком районе Ленинградской области?

Оставьте Ваш контакт и наши специалисты свяжутся с Вами в самые кротчайшие сроки.

+7
×
новостройка
Какие районы Санкт-Петербурга Вас интересуют?
С какой целью Вы планируете приобрести квартиру?
Сколько комнат должно быть в Вашей будущей квартире?
Какой вариант отделки Вам необходим?
Когда Вы хотите заехать?
В какой бюджет хотите уложиться?

Оставьте Ваш контакт и получите подборку квартир без риска столкнуться с мошенничеством и недостроем.

+7
×
сдать
Что вы хотите сдать?
Скольки комнатная квартира?
Какой тип коммерческой недвижимости вы хотите сдать?
В каком регионе?
В каком районе Санкт-Петербурга
В каком районе Ленинградской области?

Оставьте Ваш контакт и наши специалисты свяжутся с Вами в самые кротчайшие сроки.

+7
Этот сайт использует файлы cookie для улучшения пользовательского опыта. Cookie - это небольшие текстовые файлы, которые сохраняются на вашем устройстве и помогают нам запоминать ваши предпочтения, анализировать посещаемость сайта и предоставлять более персонализированный контент. Использование файлов cookie позволяет нам сделать сайт удобнее для вас. Политика конфиденциальности
Принять Отказаться