Продажа квартир и комнат

Комнаты
Например: Массальского, 4
Ванные
3-х комнатная квартира

Победа пос., Мира ул. м.Беговая


72.5 м2
Общая
42.8 м2
Жилая
8.3 м2
Кухня
192 Предлагается к продаже большая 3 комнатная квартира Лен.обл. Выборгский р-он п.Победа ул.Мира д.4 на пятом этаже пятиэтажного панельного дома г.п.1991.Общ. 72,5 кв.м. планировка двухсторонняя- изолированная 12,8+12,9+17,1+застекленная лоджия. Кухня 8,3 кв.м, большая прихожая 14,7 кв.м, с/у раздельный ,есть большая кладовка 2,1кв.м и две 0,3+0,4 кв.м. Частично оставляем мебель. Квартира расположена в середине дома ,очень теплая. Требует косметического ремонта. В поселке хорошо развита инфраструктура. Есть школа, детский сад, медицинский кабинет, сетевые магазины` Пятерочка`, ` Магнит`, мини- Лента. До ж/д Каннельярви, 5 минут на автобусе. До СПб ходят электрички повышенной комфортности `Ласточка` - 35 мин. Вокруг лес, озеро. Летом грибы, ягоды. Три взрослых собственника. Подходит под ипотеку. Встречная покупка 2 к.кв. в п.Победа ул.Мира первый или второй этаж. Просмотры по предварительной договоренности.
Цена
5 400 000 ₽

3-х комнатная квартира

Рощино пос., Советская ул. м.Удельная


72 м2
Общая
46 м2
Жилая
8.5 м2
Кухня
Просторная  квартира  с  прекрасной планировкой в центре г.п.Рощино.Сделан свежий евро ремонт, заменены все трубы, электрика,везде стеклопакеты,в подарок остается встроенная мебель на кухне. Большая прихожая, кухня и жилые комнаты, застекленная лоджия, кладовая и стенной шкаф.Поселок с развитой инфраструктурой, рядом школа, детский сад, игровые площадки, школьный стадион,  магазины и т.д. В шаговой доступности озеро(разлив реки Рощинки) с песчаными  пляжами и парковая зона поселка.С Санкт-Петербургом сообщение отличное. Недалеко расположен горнолыжный курорт `Пухтолова гора`, сосновый лес  и много озер. Приветствуется любая форма оплаты,  Продажа  с побором  встречного  варианта.
Цена
9 450 000 ₽

Комната в 3-комн. квартире

Ломоносов г., Александровская ул. м.Автово


56.2 м2
Общая
30.8 м2
Жилая
5 м2
Кухня
Санкт-Петербург, г. Ломоносов, ул. Александровская, д. 31. Прямая продажа. Продаются 2 смежные комнаты комнаты в 3 к. квартире . Большая комната с балконом. В третьей комнате проживает порядочная одинокая женщина, которая на лето уезжает. Квартира теплая и светлая, установлены стеклопакеты. Дом расположен во дворе, окна на тихий зеленый двор. Рядом сеть магазинов, школа, д/сад и поликлиника, почта. Отличное транспортное сообщение, в шаговой доступности транспорт в любое направление. До Санкт-Петербурга можно доехать на электричке, а так же ходит муниципальный транспорт до станций метро Ленинский пр., Автово, пр. Ветеранов, Купчино или на машине 25 мин. по КАДу  в объезд всех пробок. Просмотр в удобное для вас время. Поможем с оформлением ипотеки. 1 взрослый собственник. Документы к продаже готовы. Торг уместен.
Цена
3 500 000 ₽

Затрудняетесь с выбором?

Не тратьте время на поиск и анализ множества предложений недвижимости
Мы сделаем это за вас профессионально, быстро, предложив оптимальные варианты по выгодной цене!

3-х комнатная квартира

Всеволожск г., Ленинградская ул. м.Улица Дыбенко


64.1 м2
Общая
47.5 м2
Жилая
6.4 м2
Кухня
Ленинградская обл.,Всеволожский р-н, г. Всеволожск, ул. Ленинградская,д.21,к.2 В продаже светлая, уютная  3-х комнатная кв. на 5-м этаже 9-ти этажного панельного дома  площадью 64,1 кв.м., комнаты изолированные 13,0+17,0+17,5кв.м., кухня 6,4;кв.м,  застекленная лоджия, прихожая 6,0кв.м..сан.узел раздельный. Ванна и туалет отделаны кафелем. Квартира в отличном состоянии. Окна стеклопакеты, выходят на южную и северо-восточную стороны, пол- линолеум.  Установлена металлическая входная дверь.В квартире поменяны трубы хол. и гор. воды, стоят счетчики. Квартира очень теплая Удобное место расположения дома- в 5 мин. пешком- 3 дет.сада, 2 школы, физико-математ. лицей. Для старшеклассников 9 или 11 классов-неплохой вариант получения специальностей во Всеволожском агропромышленном техникуме (находится в 15 мин. пешком от дома) таких, как  электрификация и автоматизация с/х; экономика, бух. учет; техническое обслуживание и ремонт двигателей, систем и агрегатов авто, землеустройство; мастер по ремонту и обслуживании авто.; эксплуатация и ремонт с/х техники и оборудования; правоохранительная деятельность; тракторист-машинист с/х производства. В 10 мин. пешком- поликлиника. В 1-м  км. от дома-  Румболовский парк `Песчанка``с прогулочными,велосипедными дорожками, детскими,игровыми и спорт. площадками, культурно-развлекательной зоной.Рядом лесные озера, ягодные и грибные места. Удобное сообщение с СПБ- в 200 м. от дома остановка общественного и коммерческого транспорта, следующего до м. Ладожская ,до ж/д станции Всеволожская-5мин. транспортом, откуда без пробок за 30 минут можно доехать до СПб. Квартира более 5-ти лет в собственности. Возможно использование мат. капитала, ипотеки, жилищных субсидий.   Документы готовы. Прямая продажа.
Цена
7 200 000 ₽

3-х комнатная квартира

Красное Село г., Гатчинское шос. м.Проспект Ветеранов


70.1 м2
Общая
48.5 м2
Жилая
6.4 м2
Кухня
192 Предлагается к продаже 3 к.квартира г.СПб Красносельский р-н, Красное Село г., Гатчинское шос д.60 к (по границе пос.Виллози) расположенная на 5-ом этаже пятиэтажного панельного дома г.п.1984. Общ.70,1 кв.м, кухня 6,4 кв.м, комнаты смежно-изолированные, с/у разд. Окна стеклопакеты. Квартира в отличном состоянии, светлая-просторная. Есть застеклённая лоджия. Все центральные коммуникации: центральное отопление, горячая вода, плита-газовая и тд. Удобное место расположение до центра Красного села 2 км, 10 мин. на транспорте до Гатчины, 30-40 мин.тр. до метро пр-кт Ветеранов, 10 мин. пешком до ж/д ст. Можайская. В поселке есть вся инфраструктура : Амбулатория, дет. сад., школа, дом культуры, почта, магазины, спорт зал, каток, спортивные и детские площадки, Дудергофские высоты и озеро все в пешей доступности. Горнолыжный курорт Туутари парк 10мин. транспортом. Экологически чистый район. Один взрослый собственник. Собственность от 2017г.Подходит под ипотеку. Встречная покупка 1 к.кв г.Красное Село. Просмотры по предварительной договоренности.
Цена
7 600 000 ₽

Комната в 3-комн. квартире

Первомайское пос., Советская ул. м.Беговая


72.9 м2
Общая
30.3 м2
Жилая
8.4 м2
Кухня
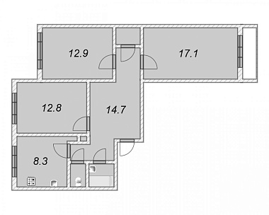
192 Предлагается к продаже две комнаты  в 3 к.кв. по адресу Лен.обл. Выборгский р-он п.Первомайское ул.Советская д.19. Квартира расположена на первом этаже пятиэтажного панельного дома г.п.1992. Общ пл.72,4/43,2 кухня 8,4 коридор 14,4 с/у раздельный. Комнаты 17,3 + застекленная лоджия и 13,0 изолированные на две стороны. Собственность доля в праве 4/5; по решению суда установлен порядок пользования выделив в пользование комнату 17,3 с лоджией и жилую комнату13,0, комнату 12,9 оставить за другим сособственником, места общего пользования оставить в общем пользовании сторон. Подходит под ипотеку. Взрослый собственник. Прямая продажа. В поселке есть вся инфраструктура. Удобное сообщение с СПб. Просмотры по предварительной договоренности.
Цена
2 790 000 ₽

3-х комнатная квартира

Ленинский просп. м.Проспект Ветеранов


79.8 м2
Общая
43.1 м2
Жилая
13.6 м2
Кухня
Санкт-Петербург, Красносельский р-н, метро Проспект Ветеранов или метро Ленинский проспект, Ленинский просп., д.51 В ГОС ЗАКУПКАХ НЕ УЧАСТВУЕМ! В продаже 3-комнатная квартира находится на ВЫСОКОМ первом этаже 25-ти этажного дома. Такая квартира-настоящая находка для семьи или людей, ценящих близость к природе. Пройдя всего 10 минут, вы сможете насладиться прекрасными видами на залив и парки. О квартире: Первое преимущество-удобное расположении квартиры на первом этаже. Что позволяет избежать необходимости использовать лифт или подниматься по лестнице. Это особенно актуально для жителей с пожилыми родственниками или маленькими детьми. Второе преимущество-площадь квартиры 79,8 кв.м., которая также порадует будущих хозяев. Большие комнаты позволят разместить все необходимое для комфортного проживания. Вы сможете спланировать интерьер так, чтобы каждый член семьи имел свою уютную и функциональную зону. К тому же, большая площадь позволяет реализовать любые дизайнерские идеи. Окна квартиры выходят на восток и запад, что обеспечивает естественное освещение и прохладу в летний период времени. На лестничной площадке имеется тамбур на 2 квартиры, что создает доп. пространство для хранения велосипеда или коляски. О локации: Во дворе расположены два детских сада - один из них виден в окно квартиры. Рядом находятся школы 291, 219 и школа танцев, что делает район очень удобным для семей с детьми. Неотъемлемым преимуществом этого местоположения является близость к заливу и паркам. В Южно-Приморском парке вы отлично проведете время с детьми на аттракционах или, кормя белочек орешками. Тут идеальное место для тех, кто любит отдых на природе. Вы насладитесь утренними пробежками, вечерними прогулками или проведете время на пикнике, наслаждаясь красотой природы и свежим воздухом. Отсюда удобно добираться до работы или важных мест, благодаря хорошо развитой транспортной инфраструктуре в этом районе. Не упустите свой шанс создать идеальное жилище для себя и своей семьи!
Цена
14 999 000 ₽

3-х комнатная квартира

Всеволожск г., Ленинградская ул. м.Ладожская


75.6 м2
Общая
44.5 м2
Жилая
8.7 м2
Кухня
Ленинградская область, г. Всеволожск. Продается теплая и уютная трехкомнатная квартира  во Всеволожске. Все комнаты изолированные, большой холл, из которого выход на просторную лоджию Отличная шумоизоляция дома обеспечена качественными материалами при постройки дома. Рядом с домом находится большая детская и волейбольная площадки, детские сады и школы, сетевые магазины ,поликлиника ,спортивный зал с бассейном ,парк «Песчанка»-все это в пешей доступности 5-10 минут .Прекрасное расположение общественного транспорта, до Спб 25 минут. Возможен обмен на двухкомнатную квартиру.
Цена
8 950 000 ₽

3-х комнатная квартира

Луга г., Урицкого пр.


64 м2
Общая
45 м2
Жилая
6 м2
Кухня
Продам 3-х комнатную квартиру в центре города(17,5+17,5+10,5.) ,кухня 6.Общая площадь 64кв.м.. Комнаты изолированные, СУР. В шаговой доступности имеется все для комфортнрно проживания: новая набережная, обновленный заречный парк, сетевые магазины, школы,детские сады. Хорошее предложение. Ждем звонков
Цена
5 200 000 ₽

3-х комнатная квартира

Сторожевое пос.


63 м2
Общая
37.6 м2
Жилая
8.4 м2
Кухня
№ 321353  Приозерский район поселок Сторожевое дом 300 Продается просторная, трехкомнатная квартира на втором этаже четырехэтажного кирпичного дома. Квартира находится в удивительном месте, в окружении соснового бора, на окраине города Приозерска, рядом с песчаным берегом озера Ладога. Общая площадь квартиры составляет 63 кв. м,. Комнаты смежно-изолированы (16,3 кв.м., 9,9 кв.м и 11,4 кв.м.), кухня - 8,4 кв. м. Инфраструктура города в нескольких минутах езды на местном транспорте. Отличное место для постоянного проживания, а также для сезонного отдыха и рыбалки. В шаговой доступности все удовольствия - ягоды, грибы и тишина. Просмотр по предварительной договоренности..
Цена
4 000 000 ₽

3-х комнатная квартира

Пески пос., Благодатная ул. м.Беговая


64.2 м2
Общая
41.8 м2
Жилая
7.9 м2
Кухня
(41)Ленинградская обл., Выборгский р-н, п. Пески. Предлагается  в кирпичном доме 3-х к. кв-ра, общ.пл. 64.2 кв.м, комнаты (16.6+14.6_10,6) кв.м, кухня 7,9 кв.м в хорошем состоянии. Один собственник. Хорошее транспортное сообщение. До автобусной остановки - 200 метров, до п. Рощино - 30 минут. Вся инфраструктура в шаговой доступности. Живописное место. Посёлок благоустроен. Закрытая территория, шлагбаум. Организуем просмотр в любое, удобное для Вас время..
Цена
6 800 000 ₽

3-х комнатная квартира

Всеволожск г., Всеволожский просп. м.Улица Дыбенко


70.7 м2
Общая
46.3 м2
Жилая
8.2 м2
Кухня
Продается трехкомнатная квартира. Уникальное расположение дома. Во Всеволожске таких больше нет. В центре города, 5 минут пешком до электрички , автобусов и магазинов. В то же время расположен в районе частного сектора. Во дворе спортивная и детская площадки. Изолированные комнаты. Теплый дом. Отличная планировка.
Цена
9 650 000 ₽

Закажите консультацию специалиста

Оставьте заявку
Нажимая на кнопку «Отправить заявку», Вы даете согласие на обработку своих персональных данных.
×
продажа
Что вы хотите продать?
Сколько комнат?
Тип объекта?
В каком регионе?
В каком районе Санкт-Петербурга
В каком районе Ленинградской области?

Оставьте Ваш контакт и наши специалисты свяжутся с Вами в самые кротчайшие сроки.

+7
×
новостройка
Какие районы Санкт-Петербурга Вас интересуют?
С какой целью Вы планируете приобрести квартиру?
Сколько комнат должно быть в Вашей будущей квартире?
Какой вариант отделки Вам необходим?
Когда Вы хотите заехать?
В какой бюджет хотите уложиться?

Оставьте Ваш контакт и получите подборку квартир без риска столкнуться с мошенничеством и недостроем.

+7
×
сдать
Что вы хотите сдать?
Скольки комнатная квартира?
Какой тип коммерческой недвижимости вы хотите сдать?
В каком регионе?
В каком районе Санкт-Петербурга
В каком районе Ленинградской области?

Оставьте Ваш контакт и наши специалисты свяжутся с Вами в самые кротчайшие сроки.

+7
Этот сайт использует файлы cookie для улучшения пользовательского опыта. Cookie - это небольшие текстовые файлы, которые сохраняются на вашем устройстве и помогают нам запоминать ваши предпочтения, анализировать посещаемость сайта и предоставлять более персонализированный контент. Использование файлов cookie позволяет нам сделать сайт удобнее для вас. Политика конфиденциальности
Принять Отказаться