Продажа квартир и комнат

Комнаты
Например: Массальского, 4
Ванные
3-х комнатная квартира

Сестрорецк г., Дубковское шос. м.Беговая


101.9 м2
Общая
61.7 м2
Жилая
16.1 м2
Кухня
Цена
25 400 000 ₽
Сестрорецк, Дубковское шоссе дом 9 В одном из лучших домов Сестрорецка продается просторная 3 ком.квартира 101,9 кв.м. Квартира имеет три изолированных комнаты, два сан.узла, кухню 16 кв.м, утепленные лоджия и балкон. При желании можно сделать 4 отдельных комнаты, т.к. в большой комнате 3 окна. Окна выходят на три стороны, что делает квартиру очень светлой. Высокие потолки 2,85 м. В квартире установлены фильтры на воду, бойлеры. Кирпичный теплый дом 2002 года постройки, чистая парадная, 2 лифта, консьерж, красивый холл  во входной группе с пандусом для колясок и зоной отдыха.  Есть кладовая и отдельные помещения для хранения велосипедов. Видеонаблюдение, закрытая территория, есть парковка и можно отдельно приобрести подземный паркинг. Уникальное расположение дома - знаменитый  парк Дубки в 400 метрах, ж.д станция Сестрорецк в 300 метрах, рядом все магазины, аптеки, пекарня. Во дворе школа и детский сад. В пешей доступности пляжи и прогулочные зоны вдоль Финского залива. Квартира без перепланировок,  без обременений, подходит под ипотеку любого банка, в собственности более 15 лет. Помогаем с одобрением ипотеки. Гарантируем юридическую чистоту сделки.

Комната в 3-комн. квартире

Семиозерье пос., Лесная ул. м.Беговая


52.4 м2
Общая
10.8 м2
Жилая
6.4 м2
Кухня
Цена
640 000 ₽
Семиозерье.Отдельная комната в домике.Все удобства.

3-х комнатная квартира

Сясьстрой г., Космонавтов ул.


61 м2
Общая
45 м2
Жилая
5.5 м2
Кухня
Цена
3 700 000 ₽
Ленинградская область, Волховский  район, г. Сясьстрой, ул. Космонавтов д. 7 Продам 3-х комнатную квартиру площадью 61 м.кв, на 4/5этаже.  Три изолированные  комнаты 17; 17 и 11 м.кв., кухня 5,5 м.кв., санузел раздельный, 2 балкона. Квартира двухсторонняя.Окна стеклопакеты. В шаговой доступности вся городская инфраструктура: сетевые магазины, банки, поликлиника,.школа, д/сад. Подходит для постоянного проживания и загородного отдыха. Благоустроенный песчаный пляж на реке Сясь в сосновом бору. Долгов по оплате нет. Два взрослых  собственника. Прямая продажа.Указываем полную цену. Просмотры по предварительной договоренности.

Затрудняетесь с выбором?

Не тратьте время на поиск и анализ множества предложений недвижимости
Мы сделаем это за вас профессионально, быстро, предложив оптимальные варианты по выгодной цене!

Комната в 3-комн. квартире

Героев просп. м.Проспект Ветеранов


92.4 м2
Общая
18 м2
Жилая
12.2 м2
Кухня
Цена
3 500 000 ₽
Продается отличная комната в трехкомнатной квартире. Ухоженная, чистая, опрятная с хорошим ремонтом не требующая никаких вложений. Натяжной потолок, стеклопакет, новая батарея. Мебель остается в подарок. Адекватные соседи. Во всей квартире идеальный порядок. Есть своя вместительная кладовка с вешалками и шкафчиками, и местом для стиральной машинки. Своя кухонная мебель. Застекленный балкон. В одной из комнат не живут. Во второй снимает семья( русских) с ребенком-школьником. Нотариальные отказы получены от всех собственников. Без обременений. Получена в собственность по договору мены. Вся инфраструктура в шаговой доступности: школы, сетевые магазины, садики, поликлиники, транспорт. рядом Финский залив и парковая зона.

3-х комнатная квартира

Сестрорецк г., Токарева ул. м.Беговая


61.4 м2
Общая
34.7 м2
Жилая
8.4 м2
Кухня
Цена
12 450 000 ₽
СПб, г. Сестрорецк, ул.Токарева, д.15. Продаётся 3-х комнатная квартира, общ.пл.61,4 кв.м с отличной планировкой. Квартира двусторонняя, светлая, очень тёплая. Комнаты изолированные. Просторная прихожая с 3-я встроенными шкафами. Звоните, отвечу на все, интересующие Вас вопросы.

Комната в 3-комн. квартире

Октябрьская наб. м.Проспект Большевиков


82.4 м2
Общая
20.4 м2
Жилая
9.6 м2
Кухня
Цена
3 500 000 ₽
Сталинский дом 1952 года постройки. Второй этаж! Высокие потолки. Видовая комната -  вид на р. Нева. Хорошие и дружные соседи (три человека) Документы готовы к сделке. Один взрослый собственник. Более 5ти лет владения объектом. Полная стоимость в договоре. Просмотр в любое удобное время. Звоните!

3-х комнатная квартира

Радищева ул. м.Чернышевская


62.4 м2
Общая
36.9 м2
Жилая
7.4 м2
Кухня
Цена
20 000 000 ₽
Просторная,светлая квартира в доме 1880г.п.,год последнего кап.ремонта1981,перекрытия железобетонные.Высота потолков 3,8м окна из комнат выходят на ул.Радищева,окно из кухни во двор.Отлично подойдёт для тех,кто хочет жить в самом центре Санкт-Петербурга.Закрытый двор с возможностью оставить машину,ключи только у собственников.Чистая лестница с ремонтом.В парадной всего 7квартир на каждом этаже одна квартира.3мин., от м.Чернышевская,5мин. от Таврического сада.Школы и дет.садики в пешей доступности.ПП,Торг,квартира требует ремонта

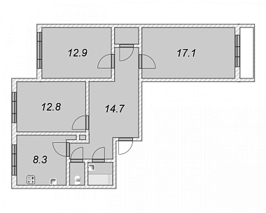
3-х комнатная квартира

Победа пос., Мира ул. м.Беговая


72.5 м2
Общая
42.8 м2
Жилая
8.3 м2
Кухня
Цена
5 200 000 ₽
192 Предлагается к продаже большая 3 комнатная квартира Лен.обл. Выборгский р-он п.Победа ул.Мира д.4 на пятом этаже пятиэтажного панельного дома г.п.1991.Общ. 72,5 кв.м. планировка двухсторонняя- изолированная 12,8+12,9+17,1+застекленная лоджия. Кухня 8,3 кв.м, большая прихожая 14,7 кв.м, с/у раздельный ,есть большая кладовка 2,1кв.м и две 0,3+0,4 кв.м. Частично оставляем мебель. Квартира расположена в середине дома ,очень теплая. Требует косметического ремонта. В поселке хорошо развита инфраструктура. Есть школа, детский сад, медицинский кабинет, сетевые магазины` Пятерочка`, ` Магнит`, мини- Лента. До ж/д Каннельярви, 5 минут на автобусе. До СПб ходят электрички повышенной комфортности `Ласточка` - 35 мин. Вокруг лес, озеро. Летом грибы, ягоды. Три взрослых собственника. Подходит под ипотеку. Встречная покупка 2 к.кв. в п.Победа ул.Мира первый или второй этаж. Просмотры по предварительной договоренности.

3-х комнатная квартира

Костюшко ул. м.Московская


41.7 м2
Общая
29.9 м2
Жилая
5.3 м2
Кухня
Цена
6 800 000 ₽
Продается уютная трехкомнатная квартира на первом этаже без балкона в Московском районе Санкт-Петербурга. Квартира находится в шаговой доступности от метро, магазинов, школ и детских садов, а также поликлиники. Квартира требует косметического ремонта, но уже частично отремонтирована. Она находится в отличном состоянии и готова к заселению новых жильцов. Удобное расположение дома позволяет легко добраться до всех необходимых объектов инфраструктуры. Рядом с домом находятся магазины, школы, детские сады, поликлиники, остановки общественного транспорта и станции метро. Если вы ищете уютное и комфортное жилье в хорошем районе, то эта квартира может стать идеальным выбором для вас. Звоните нам и мы поможем вам купить эту квартиру.

Комната в 3-комн. квартире

Маршала Жукова пр. м.Проспект Ветеранов


64 м2
Общая
28 м2
Жилая
7 м2
Кухня
Цена
6 800 000 ₽
г. Санкт-Петербург пр. Маршала Жукова д. 32 к 1 Предлагаем уникальную возможность стать владельцем двух уютных комнат в одной квартире! Идеальный вариант для тех, кто ищет доступное жилье с перспективой расширения. Простор и комфорт: Комната 1: 17.9 кв. м – достаточно места для воплощения ваших дизайнерских идей и создания комфортной зоны отдыха. Комната 2: 10.2 кв. м – отлично подойдет для спальни, детской или рабочего кабинета. Раздельное проживание: Комнаты изолированы друг от друга, что обеспечивает приватность и комфорт для каждого члена семьи. Перспективы роста: В квартире проживают еще одни соседи. В будущем есть возможность выкупа третьей комнаты и превращения вашей недвижимости в полноценную квартиру. Это отличная инвестиция в будущее! Удобное расположение: Квартира расположена в районе с развитой инфраструктурой. В шаговой доступности магазины, школы, детские сады, остановки общественного транспорта. Преимущества: Доступная цена Раздельные комнаты Возможность расширения жилплощади Развитая инфраструктура района Не упустите свой шанс! Звоните прямо сейчас и станьте владельцем двух комнат по цене одной! Прекрасное вложение в будущее для молодой семьи или студентов!

3-х комнатная квартира

Гатчина г., Пушкинское шос. м.Проспект Ветеранов


104.1 м2
Общая
46.4 м2
Жилая
15.5 м2
Кухня
Цена
14 484 000 ₽
Ваша новая уютная ,солнечная, теплая трёхкомнатная квартира, на четвертом этаже одиннадцатиэтажного кирпично-монолитного дома, в Гатчине на Пушкинском шоссе д.1 О квартире: Площадь квартиры составляет:104,1м2 Комната:16,5м2+16,2м2+13,7м2 Кухня:15,5м2 Ванная:4,2м2 Туалет: 3,5м2 Прихожая:34,5м2 Квартира продается с черновой отделкой, так же можем выполнить ремонт квартиры по Вашему дизайн-проекту! В подземном паркинге еще есть свободные места!!! О инфраструктуре: Дом находится в 15 минутах от Орловой рощи. Рядом Дворцовым парком. В пешей доступности от дома детские сады № 11 и 52, школы № 9 и 1, педагогический колледж, поликлиника и медцентр.   Гипермаркеты `Окей` и `Элемент`. В шаговой доступности торговые центры `Кубус` , `Рощинский`, `Гатчинский` и `Мегаполис`. Спортивный комплекс `Атлетик` Транспортную доступность обеспечивают Ленинградское, Красносельское и Пушкинское шоссе. Дорога до КАД занимает 25 минут. До станции метро `Московская` маршрутное такси доставит за час. Можно воспользоваться электричкой. В 2 км от дома находится ж/д платформа Татьянино, откуда до Балтийского вокзала скоростным поездом ехать 30 минут!!! Всего 30 минут и Вы в центре Санкт-Петербурга!!! Прямая продажа. Рассматриваем все виды оплат. Квартира подходит под льготную ипотеку!

3-х комнатная квартира

Маршала Жукова пр. м.Проспект Ветеранов


64 м2
Общая
45 м2
Жилая
7 м2
Кухня
Цена
13 500 000 ₽
г. Санкт-Петербург пр. Маршала Жукова д. 32 к.1 Подходит под ипотеку без первого взноса! Предлагается к продаже 3к.кв. в панельном доме. Комнаты раздельные. Отличные соседи. Д/сад, школа в шаговой доступности, сетевые магазины. Отличная транспортная доступность. Два хозяина. Есть долг по ипотеке 1500000р.

Закажите консультацию специалиста

Оставьте заявку
Нажимая на кнопку «Отправить заявку», Вы даете согласие на обработку своих персональных данных.
×
продажа
Что вы хотите продать?
Сколько комнат?
Тип объекта?
В каком регионе?
В каком районе Санкт-Петербурга
В каком районе Ленинградской области?

Оставьте Ваш контакт и наши специалисты свяжутся с Вами в самые кротчайшие сроки.

+7
×
новостройка
Какие районы Санкт-Петербурга Вас интересуют?
С какой целью Вы планируете приобрести квартиру?
Сколько комнат должно быть в Вашей будущей квартире?
Какой вариант отделки Вам необходим?
Когда Вы хотите заехать?
В какой бюджет хотите уложиться?

Оставьте Ваш контакт и получите подборку квартир без риска столкнуться с мошенничеством и недостроем.

+7
×
сдать
Что вы хотите сдать?
Скольки комнатная квартира?
Какой тип коммерческой недвижимости вы хотите сдать?
В каком регионе?
В каком районе Санкт-Петербурга
В каком районе Ленинградской области?

Оставьте Ваш контакт и наши специалисты свяжутся с Вами в самые кротчайшие сроки.

+7
Этот сайт использует файлы cookie для улучшения пользовательского опыта. Cookie - это небольшие текстовые файлы, которые сохраняются на вашем устройстве и помогают нам запоминать ваши предпочтения, анализировать посещаемость сайта и предоставлять более персонализированный контент. Использование файлов cookie позволяет нам сделать сайт удобнее для вас. Политика конфиденциальности
Принять Отказаться