Продажа квартир и комнат

Комнаты
Например: Массальского, 4
Ванные
3-х комнатная квартира

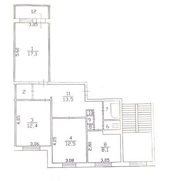
Щеглово пос., Магистральная м.Улица Дыбенко


69 м2
Общая
45 м2
Жилая
8.5 м2
Кухня
Ленинградская область д. Щеглово ул. Магистральная д. 71 Ваш идеальный дом ждет вас в Щеглово! Продажа 3-х комнатной квартиры в п. Щеглово Поселок расположен в  5 км от Всеволожска и всего 17 км до сердца Санкт-Петербурга! Мечтаете о тишине и спокойствии загородной жизни, но не хотите терять связь с городской инфраструктурой? Эта квартира именно для вас! Превосходное расположение Детский сад и школа в соседнем дворе Удобные остановки общественного транспорта в шаговой доступности. Амбулатория  и Сбербанк в соседнем доме Магазины, музыкальная школа, ДК и баня – все в пешей доступности Ж/д станции Щеглово и Романовка всего в 12-15 минутах пешком Высокая транспортная доступность: автобусы в Петербург и Всеволожск, скоростные трассы для автомобилистов О комфорте вашего нового дома Стильный панельный дом  с чистым подъездом и заботливыми соседями Просторная квартира 69 м² + остекленная лоджия . Три изолированные комнаты Удобная кухня. Раздельный санузел с ванной и бойлером на случай отключения горячей воды Индивидуальные счетчики на воду и электричество Спокойствие и зелень: детская и спортивная площадки, новая пешеходная зона с велодорожкой Отличная инфраструктура и возможности для жизни Прямой доступ ко всем удобствам города Недалеко от усадьбы Щеглово и пляжей Ладожского озера - идеальные места для прогулок и отдыха! Условия продажи Рассматривается встречная покупка . Два взрослых собственника, квартира без обременений Подходит для ипотеки, субсидий и материнского капитала Не упустите возможность стать обладателем этой уютной и удобной квартиры! Звоните уже сегодня, чтобы записаться на просмотр! Ваш новый дом ждет вас!
Цена
8 750 000 ₽

3-х комнатная квартира

Каннельярви п/ст, Железнодорожная ул. м.Беговая


49.1 м2
Общая
33 м2
Жилая
8.9 м2
Кухня
п. Каннельярви , Выборгский р-н, Ленинградской области. Продается трех комнатная квартира 49.1 м кв, со всеми удобствами, комнаты смежно- изолированные . Дом кирпичный, установлены стеклопакеты, центральный водопровод .Своя котельная. Хорошее сообщение с СПб -ходит ласточка. В пешей доступности сосновые леса и много озер. Подходит для постоянного проживания и как альтернатива дачи. В пользовании приусадебная территория ,которую можно оформить в собственность, 5-6 сот. земли. Один собственник , встречная покупка.
Цена
3 500 000 ₽

3-х комнатная квартира

Приладожский пгт., Садовая ул. м.Улица Дыбенко


64.3 м2
Общая
45.6 м2
Жилая
6.2 м2
Кухня
Ленинградская область, Кировский район, п. Приладожский, предлагается к продаже 3 к.квартира на 7 этаже 9 этажного панельного дома. Общая площадь квартиры 64.3 кв.м. Комнаты изолированные 17.7 + 17.8 +10.1.  Кухня 6.2 кв.м. СУ- раздельный. Окна - стеклопакеты. Застекленная лоджия . Сделан косметический ремонт. Вложений не требуется . Чистая, уютная, теплая квартира. Поселок расположен в окружении соснового леса, свежий воздух и спокойная жизнь в 40 минутах езды от мегаполиса СПб. Развитая инфраструктура. Садик, школа, поликлиника, магазины. Д.К с секциями и кружками. Благоустроенный двор с детскими и спортивными площадками. Мебель и техника остаются новым хозяевам. Заезжай и живи. Вы приобретаете свое будущее в нашей компании, мы гарантируем безопасность сделки. Звоните.
Цена
4 750 000 ₽

Затрудняетесь с выбором?

Не тратьте время на поиск и анализ множества предложений недвижимости
Мы сделаем это за вас профессионально, быстро, предложив оптимальные варианты по выгодной цене!

3-х комнатная квартира

Федоровское пос., Шоссейная ул. м.Купчино


72.5 м2
Общая
47.2 м2
Жилая
8.2 м2
Кухня
Ленинградская область, Тосненский р-н, Федоровское пос., Шоссейная ул.,д.13 Просторная замечательная во всех смыслах квартира для большой дружной семьи в ближайшем пригороде Санкт-Петербурга (до Павловска 3.6км) Развитая инфраструктура, удачное транспортное сообщение и все необходимое для комфортной жизни в пешей доступности (магазины,кафе, школьные,дошкольные и медицинские учреждения и многое другое). Квартира полностью готова к проживанию, без перепланировок и переоборудования, застекленная лоджия, раздельный сан.узел,все комнаты изолированы + дополнительные места для хранения. Предметный разумный торг возможен после просмотра. Легкая встречная покупка в той же локации, 1 совершеннолетний собственник (более 5 лет) Рассмотрим вариант на 1ккв+ваша доплата. Просмотры по предварительной договоренности возможны практически в любое время.
Цена
9 500 000 ₽

3-х комнатная квартира

Сертолово г., Молодцова ул. м.Проспект Просвещения


57.4 м2
Общая
38.8 м2
Жилая
6.1 м2
Кухня
Просторная светлая 3 комнатная квартира с двумя большими лоджиями. Сделан хороший ремонт. Квартира двусторонняя. Рядом с домом гимназия и детcкий сад. Транспорт до города. Вся инфраструктура. Сосновый парк напротив дома.
Цена
6 898 000 ₽

3-х комнатная квартира

Бухарестская ул.


65.9 м2
Общая
45 м2
Жилая
11 м2
Кухня
Продается светлая 3-ех комнатная квартира 65.9 м2 , расположенная по адресу: г. Санкт-Петербург, ул. Бухарестская д. 67 литера А. Аукцион  (электронные торги) по квартире проводятся в начале апреля. Квартира ниже рыночной стоимости! До метро пр. Славы 2 мин пешком. Окна выходят в тихий двор. В квартире произведен качественный ремонт. Прямая продажа. В квартире никто не зарегистрирован! 1 взрослый Собственник. Звоните, пишите!
Цена
13 950 000 ₽

3-х комнатная квартира

Выборг г., Суворова просп.


131.5 м2
Общая
71.7 м2
Жилая
16.9 м2
Кухня
Уникальное предложение! Дом Эдена (1913). Продается 3-х к. видовая квартира на пятом этаже 6-ти этажного дома (есть лифт). Это финальный шанс приобрести квартиру в доме, который практически вышел из статуса коммунального—в квартире всего два собственника. Идеальный актив под реконструкцию класса «люкс». Последняя возможность стать полноправным владельцем пространства в легендарном Доме Эдена—самом престижном и желанном особняке Выборга. Дом, помнящий великих архитекторов и буржуазный лоск Северной Европы, ждет нового хозяина. Расположение—безупречно: сердце исторического центра. Вход в парадную—непосредственно с проспекта, что подчеркивает статус дома и его архитектурную значимость. Из окон открывается бесценная перспектива на парк и жемчужину мирового модернизма—библиотеку Алвара Аалто. Пространство и функциональность: -Просторный холл 10 метров. Это не узкая прихожая, а полноценное пространство, которое задает тон всей квартире. -Потолки 4 метра. Ощущение свободы и простора, недоступное современным новостройкам. -Огромная кухня 17 метров, переходящая в столовую. Дополнительная аутентичная деталь—исторический холодный шкаф-кладовка. -Два раздельных санузла. Комнаты изолированные. -В распоряжении будущего владельца 6 кладовок! Это редкое преимущество позволяет разгрузить жилое пространство и организовать хранение—от сезонной одежды до коллекции вин или спортивного инвентаря. -В квартире сохранен черный ход, ведущий на отдельную лестницу во внутренний двор и на небольшой балкон. Всего 1 час на «Ласточке» до Финляндского вокзала Санкт-Петербурга. Для понимания масштаба выгоды: аналогичный метраж, высота потолков и видовые характеристики в Санкт-Петербурге стоят от 40 миллионов. Здесь вы получаете атмосферу старого Петербурга/Европы, но с инвестиционной привлекательностью и уникальной аурой Выборга. Приглашаем на просмотр. Увидеть величие этих стен лично — совсем иное, чем прочитать в объявлении. Звоните, чтобы договориться об удобном времени.
Цена
16 500 000 ₽

Комната в 3-комн. квартире

Петергоф г., Халтурина ул. м.Проспект Ветеранов


40 м2
Общая
12.6 м2
Жилая
18.2 м2
Кухня
Санкт-Петербург, г. Петергоф, ул. Халтурина  д. 15 к.4 Кирпичный дом 1988 г/п, т. к. это бывшее общежитие, переделанное в отдельную квартиру и документально собственность оформлена как доля от этажа. По факту технически -квартира ,документально доля! Большая  кухня-гостинная площадью 18,2 и комната 12,6 кв.м. Окна выходят на солнечную сторону — солнце в комнатах в первой половине дня, создает приятную атмосферу и   комфортное проживание. Инфраструктура района отлично развита: в шаговой доступности расположены школа МЧС №319 с бассейнами и спортивной площадкой, детский сад №6, учебное заведение ВАСО и университеты.... В круглосуточном режиме работает магазин `Пятерочка`. В доме располагается спортивный клуб `Тайфун` для активного отдыха  детям и взрослым. Квартира располагается в живописном районе среди парков и прудов: Английский парк, Сергиевка, пруд Бауши с благоустроенной территорией, Троицкий пруд и знаменитые фонтаны Петергофа. Во дворе дома находятся машиноместа для удобства владельцев. Железнодорожная станция `Старый Петергоф` находится всего в двух минутах ходьбы от дома, что обеспечивает удобное транспортное сообщение. Этот вариант станет отличным выбором для молодой семьи, студентов и учащихся, ищущих жилье в  районе с развитой инфраструктурой и транспортной развязкой.
Цена
4 990 000 ₽

Комната в 3-комн. квартире

Кузьмоловский пос., Ленинградское шос. м.Девяткино


76 м2
Общая
15.1 м2
Жилая
7.2 м2
Кухня
Предлагаем комнату в 3 к квартире, прямая продажа, документы готовы к отчуждению. Никто не зарегистрирован. Соседняя комната тоже продаётся. Состояние отличное.
Цена
1 800 000 ₽

Комната в 3-комн. квартире

Кузьмоловский пос., Ленинградское шос. м.Девяткино


75.6 м2
Общая
31.41 м2
Жилая
7.18 м2
Кухня
Предлагаем 2 изолированные  комнаты в трехкомнатной квартире.Комнаты в отличном состоянии. Места общего пользования в удовлетворительном состоянии.. Дом расположен в центре поселка, хорошая транспортная доступность с городом СПБ. На маршрутке 15 минут до метро Девяткино. На электричке 7 минут до метро Девяткино.Рядом вся инфраструктура. Возможна продажа комнат по отдельности.
Цена
3 990 000 ₽

3-х комнатная квартира

Планерная ул. м.Комендантский проспект


68 м2
Общая
35.1 м2
Жилая
13.1 м2
Кухня
Планерная 99 к 7 Просторная планировка — основа вашего комфорта: первая комната — 13 м 2 с лоджией 4,8 м 2: уютное место для отдыха с дополнительным пространством; вторая комната — 12,4 м 2 : отлично подойдёт для спальни или детской; третья комната — 9,7 м 2: можно обустроить кабинет, гостевую или детскую комнату; прихожая — 8,4 м 2 с гардеробной 2,2 м  : достаточно места для хранения вещей и удобной организации пространства; два санузла (4,2 м 2 и 2,2 м 2) — практичность и комфорт для всей семьи. Квартира продаётся с подчистовой отделкой — начинайте ремонт сразу после получения ключей! пол: стяжка, в санузлах — гидроизоляция; стены, потолок: выравнивание и шпаклёвка; установлены розетки, выключатели и электрический щит; радиаторы, счётчики воды, двухтарифный электросчётчик; металлопластиковые окна с хорошей шумо‑ и теплоизоляцией; надёжная металлическая входная дверь. Преимущества жилого комплекса: круглосуточное видеонаблюдение — ваша безопасность под надёжным контролем; коммерческие помещения на первых этажах — магазины, кафе и сервисы в шаговой доступности; подземный и наземный паркинги — удобное решение для автовладельцев скоро откроется станция метро «Шуваловский проспект»; в ближайшей перспективе — станция метро «Каменка»; развитая инфраструктура района: всё необходимое рядом — школы, детские сады, поликлиники, торговые центры и зоны отдыха. Ставка по ипотеке — 12,99% для всех на весь срок, без удорожания стоимости квартиры. Семейная ипотека от 4,4% Не упустите шанс стать владельцем просторной трёхкомнатной квартиры в перспективном районе
Цена
22 620 000 ₽

3-х комнатная квартира

Пушкин г., Захаржевская ул. м.Купчино


87 м2
Общая
53.4 м2
Жилая
10.3 м2
Кухня
Трофейная квартира в исторической части Пушкина! Условия покупки обсудим лично на встрече! В продажe Квартира 3 комнаты (87м2) в г Пушкин. по адрecу Зaxaржевскaя 14.Квaртиpа без отделки. Продажа по ДКП! Полная сумма в ДКП! Высокая кадастровая стоимость 23 млн! B квартире установлены стеклопакеты RЕНАU, Радиаторы, Входная металлическая дверь. Идеально для проживания в исторической части Пушкина! Историческое здание (Управления Офицерской артиллерийской школы) в самом центре Царского села, в 3 минутах пешком до Екатерининского парка, в 5 минутах Софийский собор, в 12 минутах пешком известный на всю Россию Национальный медицинский исследовательский центр детской травматологии и ортопедии имени Г.И. Турнера. Здание прошло реконструкцию и введено в эксплуатацию в 1 квартале 2024 года. При реставрации была сохранена историческая ценность здания – оригинальный фасад, а внутренняя инфраструктура полностью модернизирована под современные стандарты комфорта. Безопасность и комфорт: • Круглосуточная профессиональная охрана • Современное видеонаблюдение • Охраняемая парковка с достаточным количеством мест • Благоустроенная придомовая территория с озеленением • Детская и спортивная площадки • Престижная школа “Радуга” в пешей доступности (100 м) • Близость к Софийскому собору Особенности здания: • Высокие потолки высотой 3-5,2 м • Качественные бельгийские окна • Надёжные металлические входные двери • Возможность установки камина в квартирах верхних этажей • Функциональные помещения на цокольном этаже Развитая инфраструктура: • Удобная транспортная доступность (остановка в 1 минуте) • Детские сады и школы поблизости • Фитнес-центры и бассейн в пешей доступности • Разнообразные кафе и супермаркеты • Вход в Екатерининский парк рядом с комплексом Транспортная доступность: • Удобное расположение относительно Санкт-Петербурга • Ближайшая станция “Павловск”–20 минут на автобусе • Автомобильные маршруты: Московское, Волховское и Пулковское шоссе • Расстояние до КАД–14 км
Цена
17 660 000 ₽

Закажите консультацию специалиста

Оставьте заявку
Нажимая на кнопку «Отправить заявку», Вы даете согласие на обработку своих персональных данных.
×
продажа
Что вы хотите продать?
Сколько комнат?
Тип объекта?
В каком регионе?
В каком районе Санкт-Петербурга
В каком районе Ленинградской области?

Оставьте Ваш контакт и наши специалисты свяжутся с Вами в самые кротчайшие сроки.

+7
×
новостройка
Какие районы Санкт-Петербурга Вас интересуют?
С какой целью Вы планируете приобрести квартиру?
Сколько комнат должно быть в Вашей будущей квартире?
Какой вариант отделки Вам необходим?
Когда Вы хотите заехать?
В какой бюджет хотите уложиться?

Оставьте Ваш контакт и получите подборку квартир без риска столкнуться с мошенничеством и недостроем.

+7
×
сдать
Что вы хотите сдать?
Скольки комнатная квартира?
Какой тип коммерческой недвижимости вы хотите сдать?
В каком регионе?
В каком районе Санкт-Петербурга
В каком районе Ленинградской области?

Оставьте Ваш контакт и наши специалисты свяжутся с Вами в самые кротчайшие сроки.

+7
Этот сайт использует файлы cookie для улучшения пользовательского опыта. Cookie - это небольшие текстовые файлы, которые сохраняются на вашем устройстве и помогают нам запоминать ваши предпочтения, анализировать посещаемость сайта и предоставлять более персонализированный контент. Использование файлов cookie позволяет нам сделать сайт удобнее для вас. Политика конфиденциальности
Принять Отказаться