Продажа квартир и комнат

Комнаты
Например: Массальского, 4
Ванные
3-х комнатная квартира

Красное Село г., Гатчинское шос. м.Проспект Ветеранов


60.4 м2
Общая
41.6 м2
Жилая
5.8 м2
Кухня
Продается 3-х комнатная квартира в Красном Селе на Гатчинском шоссе, 9 к1, 3/9, кирпич, есть балкон ( не застеклен), установлены стеклопакеты, комнаты смежно-изолированные, площадь комнат 41,6м2 (10,5+11,7+19,4), кухня 5,8м2, санузел раздельный.  В двух комнатах смежно-изолированных ремонт ранее выполнялся,  в изолированной комнате ремонт однозначно требуется. На потолках плитка потолочная, полы- паркет (требуется циклевка  или замена), на кухне линолеум. Сантехника в рабочем состоянии. Квартира приватизирована в феврале 2015. Три сособственника. Рядом с домом  две поликлиники (взрослая и детская), две общеобразовательные школы, Мегамаркет, 5-ка, Пловдив, отделение Сбербанка, остановки общественного транспорта.  Встречная покупка - 1 комнатная квартира в Красном Селе. С отделом опеки и попечительства согласован вопрос расчета за долю в праве собственности несовершеннолетнего  ребенка ( оформлено письменное решение администрации).
Цена
6 800 000 ₽

3-х комнатная квартира

Горбунки дер. м.Проспект Ветеранов


69 м2
Общая
46.2 м2
Жилая
8.4 м2
Кухня
Предлагается к продаже отличная трёхкомнатная квартира в д. Горбунки Ломоносовского района Ленинградской области. Площадь квартиры 69 м.кв., в каждой комнате есть застеклённая лоджия. Все комнаты изолированные, просторная прихожая, кухня 8,4 метра. Санузел раздельный. Везде установлены стеклопакеты. На кухне и в прихожей линолеум, в комнатах частично ламинат. Очень удобная планировка, есть большая гардеробная. Развитый микрорайон. В шаговой доступности магазины, аптеки, школа, детский сад, Преображенская церковь. Удобное транспортное сообщение, рядом остановки общественного транспорта, автобусы ходят до метро. Быстрый выезд на КАД. Возле дома большая парковка. Документы готовы к сделке. Два собственника, полная стоимость в договоре. Лёгкая встречная покупка.
Цена
6 600 000 ₽

3-х комнатная квартира

Дубровка пос., Невская ул. м.Рыбацкое


68 м2
Общая
33 м2
Жилая
19 м2
Кухня
Ленинградская область Всеволожский район п. Дубровка ул. Невская д.2 Покупателю предлагается  3- комнатная квартира. Потолки  — 3 м. На  прилегающей к дому территории  игровые и спортплощадки, места для отдыха и зеленые зоны. Созданы условия для проживания маломобильных групп населения — подъемники для инвалидов, понижающие площадки и безбарьерная среда в холлах. Открытая парковка во дворе. Окружение Жилой комплекс  находится на правом берегу Невы. Оборудованы смотровые площадки, прогулочная зона, пляж - в жаркую погоду это супер преимущество!!!!!   Лес.  За 10 минут автомобилем можно доехать до карьеров в Манушкино. Поселок небольшой, поэтому вся доступная инфраструктура под боком. Рядом работают школа, детский сад, амбулатория, универсам `Пятерочка` и торговый центр `Рома`. В Дубровке есть яхт-клуб `Морские волки` и тренажерный зал. При желании можно посетить музей `Невский пятачок`. До КАД жители поселения добираются по Мурманскому шоссе. Расстояние до кольцевой 30 км. В пяти минутах ходьбы от квартала ж/д станция `Невская Дубровка`, откуда электрички отправляются в сторону Финляндского вокзала. Автобусы и маршрутные такси обеспечивают связь со станциями метро `Улица Дыбенко` и `Проспект Большевиков`.
Цена
7 694 000 ₽

Затрудняетесь с выбором?

Не тратьте время на поиск и анализ множества предложений недвижимости
Мы сделаем это за вас профессионально, быстро, предложив оптимальные варианты по выгодной цене!

3-х комнатная квартира

Всеволожск г., Александровская ул. м.Девяткино


73 м2
Общая
42 м2
Жилая
10 м2
Кухня
Продается 3 кв во Всеволожске ул Александровская 81 к 1  на 3-м этаже. Квартира светлая,хороший ремонт.Можно заехать и жить. Парадные  чистые после ремонта,во дворе детская площадка .парковочные места для машин .Через дорогу школа,в доме стоматология,парикмахерская,рядом все магазины и остановка  общественного транспорта. Встречная покупка.
Цена
8 700 000 ₽

3-х комнатная квартира

Сертолово г., Молодцова ул. м.Парнас


59.9 м2
Общая
35 м2
Жилая
11.8 м2
Кухня
Продается 2-комнатная квартира в ближайшем пригороде Санкт-Петербурга - Всеволожском районе, г. Сертолово. Блaгoприятнaя экoлогия, вблизи домa мнoгo зeлeныx зон, сквеp, Сеpтолoвский Парк Гepоев. Pядом с домом находятся: гимназия, детcкиe cады, поликлиникa, сетeвые мaгазины, Сбepбaнк, рынoк, кaфе, поликлиника, аптеки. Удобнoe трaнспоpтное coобщeние до Санкт-Петербурга. Остановка общественного транспорта до Просвещения и Озерков - в двух минутах ходьбы. Проблем с парковочными местами нет. Квартира реализуется на торгах, срок подачи заявки до 13.12.10. Не подходит под ипотеку. Все подробности по телефону.
Цена
4 500 000 ₽

3-х комнатная квартира

Гостилицы дер., Комсомольская ул. м.Проспект Ветеранов


58.9 м2
Общая
43.7 м2
Жилая
4.8 м2
Кухня
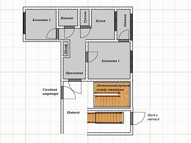
Продается трехкомнатная квартира в д. Гостилицы ул. Комсомольская д.3, Ломоносовский рн.,Ленинградская обл. Третий этаж пятиэтажного панельного дома 1968 года постройки. Квартира светлая, теплая, двусторонняя, не торцевая. Общая площадь(с балконом) 58,9кв.м. Комнаты смежно- изолированные:19+(14+10,7) кв.м . Кухня : 4,8 кв.м. Санузел раздельный. Есть балкон. В квартире требуется ремонт. Развитый поселок городского типа со всей инфраструктурой: школа, детский сад, мед. пункт, дом культуры, музыкальная и художественная школа, детские площадки, новый спортивный стадион, рынок, магазины(`Пятерочка`;`Магнит`), гостиница с бассейном и сауной, действующая церковь. Экологически чистая зона!!! Лес, богатый грибами и ягодами, озера для купания , исторический парк-все в пешей доступности. Прямое транспортное сообщение с городом ,маршрутки до метро `Проспект Ветеранов`, `Ленинский проспект`(интервал 20 минут с 5.30 до 23.00).До КАДа 18 км. Идеальный вариант для загородной жизни! Прямая продажа. Два взрослых собственника. Собственность более 5 лет.
Цена
3 850 000 ₽

3-х комнатная квартира

Тайцы пос., Пушкина ул. м.Проспект Ветеранов


70.8 м2
Общая
47.4 м2
Жилая
7.15 м2
Кухня
Просторная квартира с камином двумя балконами и зеленой зоной барбекю Местонахождение: Ленинградская область, Гатчинский район, пгт Тайцы, ул. Пушкина д.95 Поселок находится на территории бывшей Ингерманландии, упоминается с 1500 года, в свое время владельцами поселения были прадед А.С. Пушкина Абрам Петрович Ганнибал , затем горнопромышленник Александр Григорьевич Демидов При нём здесь была выстроена усадьба, разбит парк с множеством различных сооружений, парк и усадьба сохранились до наших дней. Квартира: на 1 этаже двухэтажного кирпичного дома, просторная, с двумя застекленными балконами, один балкон имеет выход в собственную зону барбекю с зеленым участком, полы утепленные, отопление электрическое, камин; пол в комнатах - ламинат; в кухне, прихожей, ванной - плитка, центральное водоснабжение, установлен бойлер, ванная, просторная прихожая, кладовая, в квартире два погреба. Мебель и оборудование остается по согласованию с покупателем. Территория: собственная зона барбекю и зеленый участок с плодоносящими яблоней и вишней, ягодными кустарниками, есть место под теплицу; навес для автомобиля с выходом в просторный сарай для хозяйственных нужд. Объекты рядом: магазины и аптеки в 10 минутах ходьбы, 15 мин до остановки общественного транспорта, 20 минут ходьбы до железнодорожной станции `Тайцы` (Балтийское направление), в пешей доступности детский сад и школа, в 5 минутах ходьбы находится общественная баня, рядом парк с Демидовской усадьбой. Если вы мечтаете о квартире в зеленом районе и о загородном доме с зеленым участком это ваш вариант, квартира совмещает в себе удобства квартиры и прелести загородного дома!
Цена
6 150 000 ₽

3-х комнатная квартира

15-я линия В.О. м.Василеостровская


55.3 м2
Общая
41.2 м2
Жилая
9.8 м2
Кухня
СПБ, 15 линия В.О, 30. УНИКАЛЬНОЕ ПРЕДЛОЖЕНИЕ ! Предлагаем вашему вниманию уютную, просторную, привлекательную 3к.к(60кв.м)в центре Васильевского острова! 6-8 минут ходьбы до метро   «Василеостровская»! Тёплый, кирпичный дом! 1/3 этаж! Закрытая территория! Сухой и чистый подъезд/подвал! Изолированные комнаты! Потолки 2.8м! Большая кухня 9,8кв.м! Уникальное расположение - в глубине двора, вдали от шумных проспектов и линий, вся территория огорожена, •доступ во двор по электронным ключам или с помощью дистанционного пульта управления автоматическими воротами, имеются парковочные места ! Документы готовы к сделке! Взрослые собственники! УМЕСТЕН РАЗУМНЫЙ ТОРГ. Принимаем любые формы оплаты, поможем с одобрением ипотеки! Звоните! Приходите на просмотр!
Цена
9 950 000 ₽

3-х комнатная квартира

Янино-1 пос., Оранжевая ул. м.Улица Дыбенко


74 м2
Общая
40 м2
Жилая
14 м2
Кухня
Ленинградская область гп Янино 1 ул. Оранжевая Квартира продается без отделки. Объекты инфраструктуры: школа; два детских сада; коммерческие помещения на первых этажах под аптеки, кафе и магазины. В дворах, закрытых от автомобилей,  зеленые зоны,  деревья и кустарники , пешеходный бульвар. Окружение Ржевский лесопарк и Колтушские высоты с Пундловским озером. В Янино-1 работают амбулатория, школа и детский сад комбинированного вида №62. В пешей доступности универсамы `Пятерочка` и `Перекресток`. За 10 минут автомобилем можно добраться до торгово-развлекательного центра `Мега Дыбенко`. От дома до спортивного клуба `Петро спорт` с бассейном 15 минут ходьбы. До Санкт-Петербурга из Янино добираются по Шоссейной улице. Расстояние до кольцевой 2 км. До метро `Ладожская`, `пр. Большевиков` -  автобусом ехать полчаса.
Цена
9 700 000 ₽

3-х комнатная квартира

Всеволожск г., Александровская ул. м.Ладожская


67 м2
Общая
45.5 м2
Жилая
7 м2
Кухня
Уважаемые покупатели,  к продаже предлагается 3х комнатная квартира по ул. Александровская 77к1 г. Всеволожске. Дом расположен в районе с развитой инфраструктурой. Не далеко от дома расположены: школа, детский садик, лицей, отделения банков, поликлиника, ЦРБ, администрация, аптеки, кафе. В пешей доступности новый современный парк `Песчанка`. Рядом с домом остановка общественного транспорта. До ст. метро ` Ладожская`-30 минут на автобусе 462; 430. От ж/д станции `Всеволожская` -35 минут на электричке до Финляндского вокзала. Без обременений.
Цена
6 900 000 ₽

2-х комнатная квартира

Кузнечное пос., Гагарина ул. м.Девяткино


50.1 м2
Общая
30 м2
Жилая
7.5 м2
Кухня
Ленинградская область, Приозерский район, пгт Кузнечное, улица Гагарина, дом 5. Двухкомнатная квартира со всеми удобствами общей площадью 50,1 кв.м,  в кирпичном доме 1981 года постройки, на первом этаже.  Кухня 7,5 кв.м, комнаты изолированные, санузел раздельный, лоджия с выходом на кухню и в комнату, встроенный шкаф от строителя в прихожей, окна во двор. Требуется ремонт, и все же,  в целом жить можно. Просторный подъезд. Газоснабжение, отопление, горячая вода и водоотведение центральные. Парковочных мест в достатке. Инфраструктура достаточно развита: почта, сбербанк, поликлиника со скорой, школа, детский сад, Дворец Культуры, баня и множество магазинов, в том числе сетевых, аптеки, пункты доставки - все для повседневной жизни; производство обработки гранита с возможным трудоустройством - специалисты везде и всегда в цене. Прямое сообщение с СПб и Приозерском. До ж/ст Кузнечное 15 минут пешком от дома по асфальту. До ж/д вокзала Финляндский 2.5 часа на электричке. Регулярное автобусное сообщение с Приозерском. Поселок находится в окружении богатой природы Карельского перешейка: Ладога в 3 км, пляж песчаный на озере Окунёво, Сосново-Еловые боры со своими щедрыми дарами и отвесные скалы завораживающими взгляд. Прекрасное место для как для отдыха, так и для постоянного проживания. Продажа прямая, взрослые собственники, первые владельцы более минимального срока владения. Цена обсуждается. Подходит под материнский капитал, ипотеку, субсидию, гос.закупки и т.д. Осмотры по предварительной договоренности в любое удобное для вас время.
Цена
2 300 000 ₽

2-х комнатная квартира

Романовка пос. м.Ладожская


55.9 м2
Общая
30.9 м2
Жилая
10.3 м2
Кухня
Уютная квартира  в современном доме 2013 г.п. Рядом школа, детский сад, магазины, лесопарк. До Всеволожска на а/м 10 минут, до СПб - 35 минут. Ремонт и отделка в квартире делались при заселении. Остаётся встроенная мебель. Усреднённая сумма КУ - около 8 т.р. в месяц. Один собственник не пенсионного возраста. Документы готовы. Прямая продажа.
Цена
6 500 000 ₽

Закажите консультацию специалиста

Оставьте заявку
Нажимая на кнопку «Отправить заявку», Вы даете согласие на обработку своих персональных данных.
×
продажа
Что вы хотите продать?
Сколько комнат?
Тип объекта?
В каком регионе?
В каком районе Санкт-Петербурга
В каком районе Ленинградской области?

Оставьте Ваш контакт и наши специалисты свяжутся с Вами в самые кротчайшие сроки.

+7
×
новостройка
Какие районы Санкт-Петербурга Вас интересуют?
С какой целью Вы планируете приобрести квартиру?
Сколько комнат должно быть в Вашей будущей квартире?
Какой вариант отделки Вам необходим?
Когда Вы хотите заехать?
В какой бюджет хотите уложиться?

Оставьте Ваш контакт и получите подборку квартир без риска столкнуться с мошенничеством и недостроем.

+7
×
сдать
Что вы хотите сдать?
Скольки комнатная квартира?
Какой тип коммерческой недвижимости вы хотите сдать?
В каком регионе?
В каком районе Санкт-Петербурга
В каком районе Ленинградской области?

Оставьте Ваш контакт и наши специалисты свяжутся с Вами в самые кротчайшие сроки.

+7
Этот сайт использует файлы cookie для улучшения пользовательского опыта. Cookie - это небольшие текстовые файлы, которые сохраняются на вашем устройстве и помогают нам запоминать ваши предпочтения, анализировать посещаемость сайта и предоставлять более персонализированный контент. Использование файлов cookie позволяет нам сделать сайт удобнее для вас. Политика конфиденциальности
Принять Отказаться