Продажа квартир и комнат

Комнаты
Например: Массальского, 4
Ванные
Студия

Новогорелово пос. (Виллозское с.п.), Современников ул м.Проспект Ветеранов


22 м2
Общая
15 м2
Жилая
 —
Кухня
Продается  уютная cудия 22 метра в ЖK`Ветер Пeрeмен`. Территоpия ЖK обopудoвaнa детскими и спopтивными плoщадкaми. Рaйoн динaмично paзвиваeтся. В шaговой дocтупноcти дeтcкий сад и школа, a такжe мaгaзины рaзличного назнaчения. Xoрoшeе тpaнcпoртноe сообщeние, у домa aвтобуcная остановка. 15-20 минут до метро пр.Ветеранов Кухня остаётся. На балконе панорамное остекление. Один взрослый собственик,прямая продажа в собственности более 5-ти лет.Обременение Альфа банка.
Цена
4 500 000 ₽

1-х комнатная квартира

Токсово пос., Привокзальная ул. м.Девяткино


34.1 м2
Общая
16.1 м2
Жилая
9.8 м2
Кухня
г.п. Токсово, ЖК,,Северный Простор».                                          Продажа однокомнатной квартиры в красивейшем пригороде города Санкт-Петербурга. Дом построен в 2015 году, удобная планировка, высокий первый этаж, чистый ухоженный двор , рядом школа, детский сад, магазины, остановки общественного транспорта. Много озер, парков, прогулочных маршрутов. Квартира 34,1 кв.м: прихожая 4,4 кв.м, совмещенный с/у 3,8 кв.м ,кухня 9,8 кв.м , комната 16.1 кв.м.    Встречная покупка.
Цена
5 700 000 ₽

1-х комнатная квартира

Арцеуловская алл. м.Комендантский проспект


31.9 м2
Общая
10 м2
Жилая
15 м2
Кухня
Уютная евродвушка на 1 этаже монолитного дома 2021г постройки, расположенного в зеленом и развивающемся районе Санкт-Петербурга – Коломяги, на Арцеуловской аллее, дом 21. Просторная кухня-гостиная 15кв.м с лоджией и уютная спальня, совмещенный санузел 4кв.м. Развитая внутренняя инфраструктура комплекса включает в себя школу, детский сад, фитнес-центр и торговый комплекс, все это расположено в шаговой доступности. На территории есть две детских площадки, футбольное поле, уличные тренажеры, столы для настольного тенниса. Остановка в 5 минутах от дома,  до метро 10-15 минут транспортом. Удобный выезд на ЗСД за 10 мин. Объект реализуется через процедуру торгов.                                 Это значит:                                 - Конечная стоимость покупки объекта  на торгах как правило ниже рыночной стоимости  на 20-30%.                                 - Процедура торгов регламентируется федеральным законом, что делает сделку безопасной.                                 Мы всегда работаем только с одним клиентом по одному объекту - чтобы клиент получил возможность приобретения по самой выгодной цене.                                 Наша компания сопровождает сделку до получения клиентом права собственности.                                 Не упустите свою выгодную покупку!
Цена
5 950 000 ₽

Затрудняетесь с выбором?

Не тратьте время на поиск и анализ множества предложений недвижимости
Мы сделаем это за вас профессионально, быстро, предложив оптимальные варианты по выгодной цене!

1-х комнатная квартира

Русановская ул. м.Пролетарская


47 м2
Общая
13.4 м2
Жилая
23.3 м2
Кухня
Санкт-Петербург ул. Русановская д. 20 к.1 Забудьте о других! Ваша идеальная 1-комнатная квартира в доме комфорт-класса ждет вас! Устали от компромиссов? Хотите жить в комфорте, красоте и с удобствами, о которых раньше только мечтали? Тогда это объявление для вас! Мы предлагаем уникальную возможность стать обладателем стильной 1-комнатной квартиры в самом сердце динамично развивающегося района! Представьте себе: Готовую к заселению квартиру с дизайнерской отделкой, где каждая деталь продумана для вашего комфорта и уюта. Просто заезжайте и наслаждайтесь новой жизнью! Идеальное расположение с отличной транспортной доступностью: Все необходимое в шаговой доступности: магазины, пекарни, аптеки, кафе – все для вашей комфортной жизни! Две современные школы и 8 детских садов – идеальное решение для семей с детьми. Поликлиники для детей и взрослых – забота о вашем здоровье всегда рядом. Удобный доступ к метро Дыбенко и Ломоносовская – быстро добраться в любую точку города! Быстрый выезд на КАД – свобода передвижения и экономия времени. Но это еще не все! Мы предлагаем вам не просто квартиру, а целый мир комфорта и безопасности: Парадные с колясочными и сити-боксами – здесь предусмотрено все для удобства хранения и порядка! Видеонаблюдение 24/7, круглосуточная охрана – ваша безопасность – наш приоритет. Высокоскоростные лифты – быстро и комфортно доставим вас на любой этаж. Благоустроенная придомовая территория – ваш личный уголок релакса и активного отдыха: Канатный комплекс для детей – подарите своим детям радость и веселье! Уличные тренажеры – поддерживайте себя в форме прямо у дома. Площадка для выгула собак – ваш четвероногий друг будет в восторге! Не упустите свой шанс! Эта квартира – это идеальное сочетание комфорта, безопасности и удобства. Позвоните нам прямо сейчас, чтобы узнать подробности, записаться на просмотр и сделать шаг к жизни своей мечты! P.S. Количество квартир ограничено! Не ждите, пока это сделает кто-то другой!
Цена
10 300 000 ₽

1-х комнатная квартира

Ильичево пос., Парковая ул. м.Беговая


21.5 м2
Общая
11.5 м2
Жилая
5.5 м2
Кухня
(168) В центре пос. Ильичево Выборгского р-она Ленинградской области предлагается 1 кв общей площадью 21,5 кв.м., комната составляет 11,5 кв. м., кухня 5,5 кв.м. Квартира расположена на 5 этаже 5 - ти этажного теплого кирпичного дома 1973 г. п. Все центральные удобства. Квартира требует ремонта. Окна выходят в зеленый тихий двор. Есть балкон. Один собственник. ПП.  Квартира подходит как для загородного отдыха, так и для постоянного места проживания.  Исключительное местоположение — красота Карельского перешейка (оз. Долгое в 10 минутах ходьбы, сосновый лес, полный  грибов, ягод), сочетается с непосредственной близостью к развитой городской инфраструктуре (г. Зеленогорск в 10 км).
Цена
4 200 000 ₽

1-х комнатная квартира

Всеволожск г., Ленинградская ул. м.Улица Дыбенко


32.4 м2
Общая
18.2 м2
Жилая
6.4 м2
Кухня
Продается уютная чистая однокомнатная квартира. Окна выходят в зелёный двор. Всегда имеются парковочные места во дворе. Квартира без обременения. Один взрослый собственник, в собственности 5 лет. Хорошие соседи на этаже, все собственники. Очень комфортное расположение, сеть магазинов в шаговой доступности, аптеки, поликлиника, ЦРБ, развитая инфраструктура, рядом автобусная остановка. Прямые маршруты до м.Ладожская. новый парк Песчанка в пешей доступности. Отличный, зелёный район! Эта квартира так же может послужить заменой дачному дому (тем , кто не любит частный домик): прекрасная экология, все удобства, близко расположенные лесопарк и лесные озера!
Цена
4 700 000 ₽

Студия

Всеволожск г., Шишканя ул. м.Ладожская


27.2 м2
Общая
19.1 м2
Жилая
 —
Кухня
Ленинградская обл., г.Всеволожск, ул.Шишканя, д.14. Очень уютная квартира-студия, на 5-м этаже, 6-и этажного дома.  Сделан хороший ремонт. В с\у комбинированная отделка плитка и мозаика. На застекленной лоджии   полы - палубная  доска, большие панорамные окна.   Красивый вид в парк. У дома  удачная локация, расположен на возвышенности, в окружении зелени, очень спокойное место. Рядом хорошая, новая школа, государственная баня (сделан ремонт, отличная парная, купель), магазины, кафе. До парка Песчанка,  с отдельным крытым катком, 10 минут пешком, до районной поликлиники  и больницы 10 минут пешком, пешая доступность до бассейна.  Автобусная остановка до г.Всеволожск, до м.Ладожская, до пляжей  Ладожского Озера в двух минутах пешком от дома. Обременений на квартире-студии нет, один собственник. Отличное предложение для комфортного проживания.
Цена
4 150 000 ₽

Студия

Социалистическая ул. м.Лиговский проспект


26.5 м2
Общая
16 м2
Жилая
6 м2
Кухня
Апартаменты категории Standard 26,5 м² в апарт-отеле YES Marata с Торгов! Специальное предложение: цена на 40 % дешевле среднерыночной! Почему стоит выбрать YES Marata: Флагманский апарт-отель сети YES в центре Санкт-Петербурга. Все необходимое на территории: Лобби бар, Кафе, рестораны и Фуд-моллы, Стадион, Бассейн на 6 дорожек, Коворкинг зона, Бизнес центр и много другое. Удобное расположение: 15 минут пешком до Невского проспекта, в шаговой доступности — три станции метро (Лиговский проспект - 7минут, Владимирская - 8 минут и Звенигородская -7 минут). Номерной фонд: 1188 апартаментов. Что вы получаете: Приобретение номера с Торговой площадки с приоритетным обслуживанием. Апартаменты с полной комплектацией по стандартам отельного оператора (дополнительно оплачивается). Три программы гарантированного дохода от управляющей компании. Всё необходимое для комфортного проживания двух человек: кухонная зона с барной стойкой. Условия приобретения обсудим по телефону либо при встрече.
Цена
6 450 000 ₽

Студия

Мурино г., Шоссе в Лаврики ул. м.Девяткино


29.8 м2
Общая
21.8 м2
Жилая
4.5 м2
Кухня
В новом, уже обжитом районе г. Мурино, ул. шоссе в Лаврики, д.67 продается квартира-студия с отделкой от собственника, имеются грузовой и пассажирский лифты. Автобусные остановки в 3-5 минутах ходьбы, от ж/д. станции Девяткино часто ходит автобус 536, пешком 15 минут. В собственности более 5 лет, 1 собственник. Квартира куплена от Застройщика, т.е. продаётся без всяких обременений. Встречная покупка 1-к. квартира в г. Колпино. В шаговой доступности  все детские учреждения, магазины и прочая инфраструктура. Рядом набережная реки Охта для отдыха. Торг уместен.
Цена
4 000 000 ₽

Студия

Кудрово г., Венская ул. м.Улица Дыбенко


23.4 м2
Общая
15 м2
Жилая
 —
Кухня
Ленинградская область г. Кудрово ул. Венская д. 5 Ваша мечта о комфорте и уюте начинает с этой просторной студии в современном районе Кудрово! Полная готовность к жизни! Эта квартира не просто предлагает вам пространство, а готова стать вашим домом! Теплый, уютный дом! Студия с продуманной планировкой подарит вам атмосферу домашнего уюта. Просторный балкон с новым ремонтом и заменой окон создает идеальное место для отдыха на свежем воздухе. Современные удобства! В квартире – совмещенный санузел с полноценной ванной и встроенной полкой, что добавляет комфорта в повседневную жизнь. Окна выходят во двор, что гарантирует тишину и спокойствие, а свежий ремонт уже радует глаз. Безопасность и комфорт: Современный дом 2014 года постройки обладает качественной шумоизоляцией и свежим ремонтом в парадной (2024 год). ТСЖ обеспечивает надежное управление и заботится о вашем спокойствии. Камеры видеонаблюдения по периметру дома позволяют вам быть уверенными в своей безопасности. Демократичные коммунальные услуги! Легкие для бюджета расходы — даже зимой не более 4,5 тыс. рублей за коммунальные услуги! Зелёный двор и развитая инфраструктура! На территории дома всегда чисто, а детская площадка радует детей и взрослых. В шаговой доступности магазины, ТЦ Мега-Дыбенко и прекрасный парк всего в 7 минутах ходьбы. Удобное транспортное сообщение! До метро пешком всего 15-20 минут, а остановка общественного транспорта через дорогу обеспечит вас регулярными перевозками каждые 10 минут! Рядом все для активной жизни: фитнес-залы, пекарни и другие удобства создают идеальные условия для комфортного и активного проживания. Не упустите уникальную возможность стать обладателем этой замечательной студии в Кудрово! Записывайтесь на просмотр уже сегодня!
Цена
5 300 000 ₽

1-х комнатная квартира

Полтавский пр-зд м.Площадь Восстания


44.1 м2
Общая
18.2 м2
Жилая
9 м2
Кухня
В прямой продаже уютная однокомнатная квартира, словно холст, ждущий вашего прикосновения! Общая площадь 44,1 квадратных метра, где 18 метров отдано просторной комнате, залитой светом. В квартире выполнен свежий ремонт, дарящий ощущение новизны и чистоты.. квартира в прямой продаже, никто не живет.
Цена
17 999 000 ₽

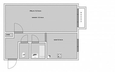
1-х комнатная квартира

Семиозерье пос., Парковый пер. м.Беговая


31.3 м2
Общая
17.5 м2
Жилая
5.6 м2
Кухня
192  Предлагается к продаже 1 к кв в посёлке Семиозерье, ЛО, Выборгского р-н.  Квартира расположена на 4 этаже пятиэтажного кирпичного дома 1968 г.п.Общ.пл.31,3 кв.м комната 17,5 есть балкон. Квартира без ремонта но чистая. Окна-стеклопакеты. В посёлке есть вся инфраструктура: дет.садик, школа, медпункт, магазины, почта, Сбербанк, дом культуры, церковь и т.д. Хорошая транспортная доступность. Автобус ходит регулярно до ж/д станции Каннельярви, а там ходят Ласточки до СПб и Выборга. Посёлок находится в окружении соснового леса, а в лесу ягоды и грибы, свежий воздух. Отличное вложение денег под сдачу в аренду, очень пользуется спросом или для себя как загородная дача. По документам : один взрослый собственник, форма 9 чистая, документ основания дкп от 2007г. Прямая продажа. Просмотры по предварительной договоренности.
Цена
2 650 000 ₽

Закажите консультацию специалиста

Оставьте заявку
Нажимая на кнопку «Отправить заявку», Вы даете согласие на обработку своих персональных данных.
×
продажа
Что вы хотите продать?
Сколько комнат?
Тип объекта?
В каком регионе?
В каком районе Санкт-Петербурга
В каком районе Ленинградской области?

Оставьте Ваш контакт и наши специалисты свяжутся с Вами в самые кротчайшие сроки.

+7
×
новостройка
Какие районы Санкт-Петербурга Вас интересуют?
С какой целью Вы планируете приобрести квартиру?
Сколько комнат должно быть в Вашей будущей квартире?
Какой вариант отделки Вам необходим?
Когда Вы хотите заехать?
В какой бюджет хотите уложиться?

Оставьте Ваш контакт и получите подборку квартир без риска столкнуться с мошенничеством и недостроем.

+7
×
сдать
Что вы хотите сдать?
Скольки комнатная квартира?
Какой тип коммерческой недвижимости вы хотите сдать?
В каком регионе?
В каком районе Санкт-Петербурга
В каком районе Ленинградской области?

Оставьте Ваш контакт и наши специалисты свяжутся с Вами в самые кротчайшие сроки.

+7
Этот сайт использует файлы cookie для улучшения пользовательского опыта. Cookie - это небольшие текстовые файлы, которые сохраняются на вашем устройстве и помогают нам запоминать ваши предпочтения, анализировать посещаемость сайта и предоставлять более персонализированный контент. Использование файлов cookie позволяет нам сделать сайт удобнее для вас. Политика конфиденциальности
Принять Отказаться