Продажа квартир и комнат

Комнаты
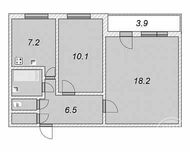
Например: Массальского, 4
Ванные
2-х комнатная квартира

Косыгина пр. м.Ладожская


46 м2
Общая
28.3 м2
Жилая
7.2 м2
Кухня
Квартира 2-комнатная 46м2 подготовлена под ремонт в доме ЖСК , продаёт первый её владелец со дня строительства  более 5 лет, материнский капитал НЕ использовался, зарегистрирован только сам собственник. В договоре купли- продажи полная сумма, ипотека возможна. УДИВИТЕЛЬНО УДАЧНОЕ местоположение дома: второй ряд от проезжей части (2 минуты на любом транспорте до метро « Ладожская «-следующая остановка. Рядом чудесные зелёные парки, масса магазинов от торгового центра «Июнь» до »Народного». Три окна квартиры выходят на ЮЖНУЮ сторону, вид на озеленение государственного детского садика, двор ухожен, парадная чистая. В доме новый лифт, поменяли в прошлом году ( у нас 7 этаж из 9 ). В доме были заменены стояки. Раздельный санузел с большой ванной, а не с душевой. В коридоре есть кладовая- возможно использовать под гардеробную. На кухне 7,2 м2 электрическая плита. Сугубо раздельные комнаты 18,2 м2 с большим балконом и 10,1 м2, на полу настоящий паркет `как раньше`. Прямая продажа. Просмотры по договорённости.
Цена
8 600 000 ₽

2-х комнатная квартира

Шушары пос., Чудовская ул. м.Купчино


57.9 м2
Общая
25.9 м2
Жилая
13.1 м2
Кухня
Продается уютная  2х комнатная квартира ( 3Е) , где 2 полноценные комнаты + кухня-гостинная,   в современном жилом комплексе ЖК Монография  . 58,1 м2 Дом комфорт-класса.         На этаже 5 квартир.         Закрытый двор. Парные выполнены в современном стиле. Квартира на 4 этаже , в доме 12 этажей.         В доме современным подземным паркинг, а это прежде всего, безопасность вашего автомобиля.         Также в доме есть предусмотрен пандус. Это дает возможность очень  легко перемещаться с коляской или велосипедом. Безбарьерная входная группа-  вход в парадную без порожка.         Развитая инфраструктура, школа, детский сад и поликлиника - рядом.         На данный момент до метро Купчино, м. Звездная и м. Шушары можно добраться за 10-12 минут на машине.         Выезд на КАД, рядом, а так же в ближайшее время , рядом  с домом будет остановка трамвая `Купчино - Шушары`, до ст. метро Купчино можно будет добраться за 10 минут на трамвае. Это трамвайная ветка  уже готова к сдаче. Квартира светлая , двухсторонняя, видовая. С лоджии открываются прекрасный вид на панораму города. Кухня-гостиная 13,1 м2. Прихожая 10,3м2. Санузел 2,0 м2. Ванная комната 4,4 м2. Комнаты 13,8м2+12,1 м2 Лоджия 4,1м2 Детские площадки прорезиненные. Инфраструктура развита. В шаговой доступности новая школа, магазины, пункты выдачи маркетплейсов, продуктовые магазины 24 часа. Квартира без отделки. Ремонт можно осуществить самостоятельно, полностью реализовав свою фантазию. В квартире раздельный санузел , окна квартиры выходят во двор и на улицу. Квартира готова к продаже, по договору купли- продажи. Возможна ипотека, в том числе и семейная. Возможна помощь в оформлении ипотеки. Возможна семейная ипотека. Звоните, записывайтесь на просмотр. Будем Вам очень рады!
Цена
11 932 000 ₽

2-х комнатная квартира

Шушары пос., Чудовская ул. м.Купчино


56.5 м2
Общая
26.7 м2
Жилая
13.1 м2
Кухня
Продается уютная  2х комнатная квартира ( 3Е) , где 2 полноценные комнаты + кухня-гостинная,   в современном жилом комплексе ЖК Монография  . 58,1 м2 Дом комфорт-класса.         На этаже 5 квартир.         Закрытый двор. Парные выполнены в современном стиле. Квартира на 6 этаже , в доме 12 этажей.         В доме современным подземным паркинг, а это прежде всего, безопасность вашего автомобиля.         Также в доме есть предусмотрен пандус. Это дает возможность очень  легко перемещаться с коляской или велосипедом. Безбарьерная входная группа-  вход в парадную без порожка.         Развитая инфраструктура, школа, детский сад и поликлиника - рядом.         На данный момент до метро Купчино, м. Звездная и м. Шушары можно добраться за 10-12 минут на машине.         Выезд на КАД, рядом, а так же в ближайшее время , рядом  с домом будет остановка трамвая `Купчино - Шушары`, до ст. метро Купчино можно будет добраться за 10 минут на трамвае. Это трамвайная ветка  уже готова к сдаче. Квартира светлая , двухсторонняя, видовая. С лоджии открываются прекрасный вид на панораму города. Кухня-гостиная 13,1 м2. Прихожая 8,1м2. Санузел 2,0 м2. Ванная комната 4,4 м2. Комнаты 13,9+ 12,8 м2 Лоджия 4,1м2 Детские площадки прорезиненные. Инфраструктура развита. В шаговой доступности новая школа, магазины, пункты выдачи маркетплейсов, продуктовые магазины 24 часа. Квартира без отделки. Ремонт можно осуществить самостоятельно, полностью реализовав свою фантазию. В квартире раздельный санузел , окна квартиры выходят во двор и на улицу. Квартира готова к продаже, по договору купли- продажи. Возможна ипотека, в том числе и семейная. Возможна помощь в оформлении ипотеки. Возможна семейная ипотека. Звоните, записывайтесь на просмотр. Будем Вам очень рады!
Цена
11 806 000 ₽

Затрудняетесь с выбором?

Не тратьте время на поиск и анализ множества предложений недвижимости
Мы сделаем это за вас профессионально, быстро, предложив оптимальные варианты по выгодной цене!

2-х комнатная квартира

Петергоф г., Дашкевича ул. м.Автово


42.4 м2
Общая
23.9 м2
Жилая
4.9 м2
Кухня
В продаже отличная 2к.квартира.в одном из самых престижных районов Нового Петергофа . Это идеальное сочетание городского комфорта и загородной тишины. Просторные изолированные комнаты ,функциональная кухня ,вместительный коридор с встроенным шкафом в конце и современная ванная комната. Качественный косметический ремонт, установлены стеклопакеты, удобная система хранения. Тихая ,благоустроенная улица без интенсивного движения .В минуте ходьбы школа и детский сад. Детская и спортивная площадки прямо во дворе .Знаменитые парки и фонтаны Петергофа в пешей доступности. До железнодорожного вокзала всего 5 минут .Напротив дома магазин` Магнит`. Один взрослый собственник .Прямая продажа. Документы полностью готовы.
Цена
6 300 000 ₽

2-х комнатная квартира

Мурино г., Шоссе в Лаврики ул. м.Девяткино


57.9 м2
Общая
29 м2
Жилая
16 м2
Кухня
Продается  светлая  2-х комнатная квартира в прямой продаже с хорошим ремонтом.  Отдельное помещение  для гардеробной, раздельный санузел, с кухни выход на лоджию. Рядом детский сад и школа, магазины, зона для активного отдыха. Близость метро и электричек.
Цена
9 800 000 ₽

2-х комнатная квартира

Пушкин г., Железнодорожная ул. м.Московская


43.4 м2
Общая
27.2 м2
Жилая
5.2 м2
Кухня
Меблированная квартира в тихом уголке города Пушкин. Рядом всё, за что мы любим Пушкин О доме: Кирпичный четырёхэтажный дом Расположен в некотором отдалении от дороги, поэтому спокойно и тихо Аккуратная парадная и хорошие соседи O кваpтиpe: Площадь квартиры 43,4 квМ Комнаты площадью 16,1 и 11,1 квм Сделан качественный ремонт, заменили все трубы в квартире и на чердаке, всю электрику, новая газовая колонка На кухне, коридоре и санузлах хорошая плитка, в комнатах прочный ламинат (33 класс) Также в квартире есть кладовая Санузел раздельный. Окна выходят во двор, поэтому совсем не слышно шума от дороги Покупателю останется встроенный щкаф, кухонный гарнитур, прихожая По договоренности оставим всю мебель в зале О сделке: 1 взрослый собственник. В собственности более 5 лет. Материнский капитал не использовался. В договоре будем указывать полную стоимость. Обременений никаких нет. Задолженностей по коммунальным услугам нет. Перепланировок не было. Транспортная доступность: 10 минут пешком до ж/д ст Царское село на электричке до метро 15 минут, до Витебского вокзала - 30 минут 20 минут пешком до Екатерининского парка 30 минут на автомобиле до метро Московская Живя в этой уютной квартире Вы имеете возможность наслаждаться тихой загородной жизнью, прогулками в знаменитых парках. При этом можете быстро и беспрепятственно окунуться в динамичную жизнь Санкт-Петербурга
Цена
8 800 000 ₽

2-х комнатная квартира

Славы пр.


45 м2
Общая
30.4 м2
Жилая
7.2 м2
Кухня
В прямой продаже предлагается 2х комнатная квартира в 10ти минутах пешком от метро `Проспект Славы` Квартира площадью 45.3 кв.м  с двумя изолированными просторными комнатами площадью 16,2 и 14,2 кв.м. Квартира является двусторонней и солнечной, что обеспечивает постоянное естественное освещение. Открытый балкон, выход с большой комнаты. Дом поддерживается в отличном техническом состоянии: в 2007 г.-произведен ремонт конструкций с заменой покрытий крыши; в 2025 г. - замена всех инженерных коммуникаций, включая трубы ГВ и ХВ, стояки и радиаторы отопления. Локация отличается развитой инфраструктурой: в пешей доступности находятся детские сады, школа, гимназия, поликлиники, аптеки, супермаркеты, спортивные клубы, Парк `Альпийский сквер`. По документам: 3 взрослых собственника, личное присутствие собственников на сделке, ДКП от 2017г. Прямая продажа. Обременений, долгов, перепланирвоко нет. Квартира свободна.
Цена
8 000 000 ₽

2-х комнатная квартира

Федоровское пос., Центральная ул. м.Купчино


44.5 м2
Общая
29.7 м2
Жилая
5.5 м2
Кухня
Ленинградская область, Тосненский р-н, Федоровское пос., Центральная ул.,д.1 Светлая и очень теплая 2ккв в кирпичном доме, все коммуникации обновлены. Квартира угловая, окна на юг и запад, 4ый этаж из 5ти, балкон застеклен. Комнаты изолированы, есть возможность переоборудования и грамотной перепланировки, зарегистрировать которую не составит труда на законных основаниях, хотя в том виде, что есть очень удобное и грамотное зонирование и расположение. Один совершеннолетний собственник, более 5лет. Прямая продажа.
Цена
4 650 000 ₽

2-х комнатная квартира

Сертолово г., Пограничная ул. м.Проспект Просвещения


64.3 м2
Общая
37.9 м2
Жилая
14.3 м2
Кухня
Ленинградская область, Всеволожский район,  г. Сертолово, ул. Пограничная , д. 9. Продается уютная, современная  двухкомнатная  квартира в кирпично-монолитном доме, 2007гп, вдали от трасс и дорог. Квартира в отличном состоянии, оборудована мебелью и встроенной бытовой техникой, которые остаются новым владельцам. Общая площадь 64,3кв.м: большая кухня 14,3кв.м, изолированные комнаты ( 15,9кв.м +22кв.м). Лоджия застеклена. Шикарный вид из окон - лес. Подъезд чистый, соседи тихие. Тамбур на две квартиры. За состоянием дома следит ТСЖ. По периметру дома и в лифтах  установлено  видеонаблюдение. Все фото реальные. Инфраструктура в шаговой доступности (школы, детские сады, ФОК-два здания, храм, поликлиники-детская и взрослая, парк с фонтанами, МФЦ, Сбербанк, Администрация, полиция, паспортный стол, детские и спортивные площадки, рынок, сетевые магазины `Дикси`, `Магнит`, `Пятерочка`, `Реал`, `ВкусВилл`, аптеки, ПВЗ маркетплейсов. Сертолово-это отлично развитый и в тоже время спокойный городок со свежим воздухом, в окружении хвойного леса . Отличная транспортная доступность. До метро `Озерки`, `пр. Просвещения` , `Парнас` 25-30 минут на маршрутке. Остановка общественного транспорта в пяти минутах ходьбы от дома. КАД 5км, ЗСД 10км. Медное озеро в 5 км. Два взрослых собственника. Без долгов и обременений. Более 5 лет. Документы готовы к сделке. Полная сумма в договоре. Ипотека любого банка, маткап, субсидия. В 2027 году запустят движение электричек СПб- Сертолово, проект находится в стадии реализации, и тогда цены на квартиры приравняются к городским. Приглашаем на просмотр!   .
Цена
9 799 000 ₽

2-х комнатная квартира

Днепропетровская ул. м.Обводный канал


66.8 м2
Общая
28 м2
Жилая
12 м2
Кухня
Санкт-Петербург, ул. Днепропетровская ,д .65.ЖК ` Дом у Каретного`. Продается 2-х комнатная квартира бизнес-класса, 6/10 этажного дома. Квартира без отделки с хорошей планировкой, на 3 стороны.  Комнаты  раздельные  16+12 метров, большая просторная кухня 12 метров, застекленный балкон, удобная прихожая. В квартире  два сан узла. Два бесшумных , современных лифта. Видеодомофон цифровой. Территория дома закрытая, оборудована игровыми площадками, есть скамейки для отдыха и прогулочные места, высажены деревья кустарники , разбиты газоны и клумбы.
Цена
24 000 000 ₽

2-х комнатная квартира

Мурино г., Охтинская аллея м.Девяткино


50.5 м2
Общая
28 м2
Жилая
10.5 м2
Кухня
Здравствуйте!   Вашему вниманию предлагаем отличную  квартиру в новом кирпично-монолитном доме 2016 года постройки в городе Мурино Ленинградской области. Общая площадь квартиры 50,5 м.кв.Комнаты изолированные, большая  кухня 10,7м кв., просторная прихожая, застекленный балкон. В квартире сделан свежий косметический ремонт. Светло, тепло, очень уютно и комфортно для проживания. Квартира двухсторонняя. Кухонный гарнитур и, частично, мебель остается в подарок покупателю. У нас хорошие соседи. Чистая ухоженная парадная, два лифта. Дом  ЖК `Мой город`. Вся инфраструктура расположена в этом ЖК - школа с большим футбольным полем находится прямо во дворе, детская площадка в шаговой доступности, рядом детские сады, магазины, аптеки, торгово-развлекательные центры,  фитнес центры , до метро Девяткино пешим ходом около 10 минут, рядом выезд на КАД, парковочные места для Вашего автомобиля есть в любое время суток. У нас один взрослый собственник, полная стоимость в договоре, квартира без обременений, документы готовы к сделке. Встречная покупка подобрана. Готовы быстро выйти на сделку. Звоните!  Не упустите свой шанс ! Записывайтесь на просмотр, с удовольствием покажем Вам квартиру в удобное для всех время.
Цена
9 300 000 ₽

2-х комнатная квартира

Вадима Шефнера ул. м.Приморская


66.1 м2
Общая
30 м2
Жилая
12 м2
Кухня
Продаётся 2-комнатная квартира на берегу Финского залива, по адресу: г.Санкт-Петербург, улица Вадима Шефнера, дом 14, корпус 1 Квартира общей площадью 66,1 кв.м, расположена на 17-ом этаже 19-этажного нового монолитного жилого дома в ЖК `Я-романтик`. Прекрасная локация, престижный район. Инфраструктура соответствует центру города. Хорошая транспортная доступность. Рядом выезд на ЗСД. Квартира реализуется через электронную торговую площадку. Ипотека и субсидии не подходят.
Цена
13 106 000 ₽

Закажите консультацию специалиста

Оставьте заявку
Нажимая на кнопку «Отправить заявку», Вы даете согласие на обработку своих персональных данных.
×
продажа
Что вы хотите продать?
Сколько комнат?
Тип объекта?
В каком регионе?
В каком районе Санкт-Петербурга
В каком районе Ленинградской области?

Оставьте Ваш контакт и наши специалисты свяжутся с Вами в самые кротчайшие сроки.

+7
×
новостройка
Какие районы Санкт-Петербурга Вас интересуют?
С какой целью Вы планируете приобрести квартиру?
Сколько комнат должно быть в Вашей будущей квартире?
Какой вариант отделки Вам необходим?
Когда Вы хотите заехать?
В какой бюджет хотите уложиться?

Оставьте Ваш контакт и получите подборку квартир без риска столкнуться с мошенничеством и недостроем.

+7
×
сдать
Что вы хотите сдать?
Скольки комнатная квартира?
Какой тип коммерческой недвижимости вы хотите сдать?
В каком регионе?
В каком районе Санкт-Петербурга
В каком районе Ленинградской области?

Оставьте Ваш контакт и наши специалисты свяжутся с Вами в самые кротчайшие сроки.

+7
Этот сайт использует файлы cookie для улучшения пользовательского опыта. Cookie - это небольшие текстовые файлы, которые сохраняются на вашем устройстве и помогают нам запоминать ваши предпочтения, анализировать посещаемость сайта и предоставлять более персонализированный контент. Использование файлов cookie позволяет нам сделать сайт удобнее для вас. Политика конфиденциальности
Принять Отказаться