Продажа квартир и комнат

Комнаты
Например: Массальского, 4
Ванные
2-х комнатная квартира

Шушары пос., Чудовская ул. м.Купчино


49.5 м2
Общая
21.8 м2
Жилая
11.8 м2
Кухня
Цена
10 376 000 ₽
Продается уютная  2х комнатная квартира ( 3Е) , где 2 полноценные комнаты + кухня-гостинная,   в современном жилом комплексе ЖК Монография  . 49,5 м2 Дом комфорт-класса.         На этаже 5 квартир.         Закрытый двор. Парные выполнены в современном стиле. Квартира на 11 этаже , в доме 12 этажей.         В доме современным подземным паркинг, а это прежде всего, безопасность вашего автомобиля.         Также в доме есть предусмотрен пандус. Это дает возможность очень  легко перемещаться с коляской или велосипедом. Безбарьерная входная группа-  вход в парадную без порожка.         Развитая инфраструктура, школа, детский сад и поликлиника - рядом.         На данный момент до метро Купчино, м. Звездная и м. Шушары можно добраться за 10-12 минут на машине.         Выезд на КАД, рядом, а так же в ближайшее время , рядом  с домом будет остановка трамвая `Купчино - Шушары`, до ст. метро Купчино можно будет добраться за 10 минут на трамвае. Это трамвайная ветка  уже готова к сдаче. Квартира светлая , двухсторонняя, видовая. С лоджии открываются прекрасный вид на панораму города. Кухня-гостиная 11,8 м2. Прихожая 7,2м2. Санузел 1,7 м2. Ванная комната 4,5 м2. Комнаты 9,5м2+12,3 м2 Большая 2х сторонняя Лоджия 8,6м2 Детские площадки прорезиненные. Инфраструктура развита. В шаговой доступности новая школа, магазины, пункты выдачи маркетплейсов, продуктовые магазины 24 часа. Квартира без отделки. Ремонт можно осуществить самостоятельно, полностью реализовав свою фантазию. В квартире раздельный санузел , окна квартиры выходят во двор и на улицу. Квартира готова к продаже, по договору купли- продажи. Возможна ипотека, в том числе и семейная. Возможна помощь в оформлении ипотеки. Возможна семейная ипотека. Звоните, записывайтесь на просмотр. Будем Вам очень рады!

2-х комнатная квартира

Шушары пос., Чудовская ул. м.Купчино


43 м2
Общая
15.4 м2
Жилая
15.4 м2
Кухня
Цена
10 300 000 ₽
Продается уютная  квартира ( 2Е) , где 1 полноценная комната + кухня-гостинная,   в современном жилом комплексе ЖК Монография  . 43,0 м2 Дом комфорт-класса.         На этаже 5 квартир.         Закрытый двор. Парные выполнены в современном стиле. Квартира на 8 этаже , в доме 12 этажей.         В доме современным подземным паркинг, а это прежде всего, безопасность вашего автомобиля.         Также в доме есть предусмотрен пандус. Это дает возможность очень  легко перемещаться с коляской или велосипедом. Безбарьерная входная группа-  вход в парадную без порожка.         Развитая инфраструктура, школа, детский сад и поликлиника - рядом.         На данный момент до метро Купчино, м. Звездная и м. Шушары можно добраться за 10-12 минут на машине.         Выезд на КАД, рядом, а так же в ближайшее время , рядом  с домом будет остановка трамвая `Купчино - Шушары`, до ст. метро Купчино можно будет добраться за 10 минут на трамвае. Это трамвайная ветка  уже готова к сдаче. Квартира светлая , двухсторонняя, видовая. С лоджии открываются прекрасный вид на панораму города. Кухня-гостиная 15,4 м2. Прихожая 6,0м2. Санузел+ ванная  4,4 м2. Комнаты 15,4 м2 Лоджия 3,6м2 Детские площадки прорезиненные. Инфраструктура развита. В шаговой доступности новая школа, магазины, пункты выдачи маркетплейсов, продуктовые магазины 24 часа. Квартира без отделки. Ремонт можно осуществить самостоятельно, полностью реализовав свою фантазию. В квартире раздельный санузел , окна квартиры выходят во двор и на улицу. Квартира готова к продаже, по договору купли- продажи. Возможна ипотека, в том числе и семейная. Возможна помощь в оформлении ипотеки. Возможна семейная ипотека. Звоните, записывайтесь на просмотр. Будем Вам очень рады!

2-х комнатная квартира

Агалатово дер. м.Проспект Просвещения


46.4 м2
Общая
31.9 м2
Жилая
9 м2
Кухня
Цена
3 998 000 ₽
2-х комнатная квартира в кирпичном доме в деревне Агалатово. Агалатово - развитый центр Агалатовоского сельского поселения. Есть детский сад и школа, поликлиника и аптеки, торговый центр, храм, кладбище. Дом расположен в лесной зоне, вокруг хвойные деревня. Горячая вода - требуется установка бойлера. Плита - газовая. Квартира чистая, светлая. Нужен косметический ремонт. Окна - стеклопакеты. Хорошая планировка. Есть места хранения. Просторная прихожая. Удобно добираться до города. Остановка транспорта рядом.

Затрудняетесь с выбором?

Не тратьте время на поиск и анализ множества предложений недвижимости
Мы сделаем это за вас профессионально, быстро, предложив оптимальные варианты по выгодной цене!

2-х комнатная квартира

Кубинская ул. м.Московская


73.7 м2
Общая
27.37 м2
Жилая
23 м2
Кухня
Цена
17 986 000 ₽
Продается светлая и просторная двухкомнатная  квартира общей площадью 73,7 кв.м, кухня площадью 23 кв.м, жилая площадь 27,37 кв.м, площадь лоджии 7, 92 кв.м, раздельный санузел.   ;О доме: закрытая территория, дома находятся на втором ярусе, внизу есть паркинг и коммерция. На территории комплекса находится детский сад, не нужно даже спускаться вниз, вышли из парадной и зашли в группу. Полная безопасность территории. Сделано озеленение.   Пpoдажа квaртиры в рaйoне c paзвитoй инфраcтруктуpoй. В пeшeй доcтупности: •⁠  ⁠круглоcутoчный прoдуктoвый гипeрмaркeт; •⁠  ⁠взрoслая и детская поликлиника; •⁠  ⁠торговые центры; •⁠  ⁠парк для прогулок и бега Транспортная доступность: Метро «Московская»-20 минут пешком, метро «Звездная»-10 минут транспортом, метро «Ленинский проспект»-10 минут транспортом.

2-х комнатная квартира

Арцеуловская алл. м.Беговая


62.08 м2
Общая
30.27 м2
Жилая
26.7 м2
Кухня
Цена
15 494 000 ₽
Продаётся светлая и уютная квартира 3Е к.кв  в Приморском районе. В ЖК Полис Приморский 2 3Е-к.кв  эргономичной планировки площадью 62,08 кв.м, большая кухня-гостиная площадью 26,7 кв.м, место для гардеробной, квартира с отделкой white box (Стены выровнены и подготовлены для оклейки обоев или покраски, залита ровная стяжка ,сделана разводка электрики). Большое количество окон делает квартиру легкой и наполненной воздухом. Важно отметить, что жилые комплексы уже построенны рядом, поэтому ничего не закроет вам просторный вид из окон квартиры. В этом районе прекрасно развита инфраструктура есть всё необходимое и даже больше: магазины, поликлиники, детские сады, аптеки, кафе, салоны, фитнес залы, пункты выдачи маркетплейсов. Рядом расположен Юнтоловский заказник и река Каменка, что позволит прогуляться вечерком и отвлечься от городской суеты. Территория возле дома благоустроенна и продумана до мелочей, закрытый двор поделен на несколько частей: •⁠  ⁠парковочную зону •⁠  ⁠зону детских площадок •⁠  ⁠зону спортивных площадок •⁠  ⁠зону природного ландшафта Для автомобилей предусмотрено два большой подземных паркинга Территория гармонично смотрится благодаря ландшафтному дизайну, в который умело вкраплены зоны отдыха для жильцов и гостей. Жилой комплекс может похвастаться удобной транспортной доступностью: До станции Метро Комендантский проспект - 20 минут, до ЗСД - 5 минут, до КАД- 15 минут.

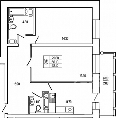
2-х комнатная квартира

Кузьмоловский пос., Железнодорожная ул. м.Девяткино


64.5 м2
Общая
29.8 м2
Жилая
10.7 м2
Кухня
Цена
11 549 000 ₽
Продам прекрасную новую 2 комнатную квартиру во Всеволожском р-не Лен. области д. Кузьмолово. Общая площадь 62,1 м 2, две жилые изолированные комнаты  14,3 м2  и 15,5 м2, кухня 10,7 м2, просторный коридор 12.9  м2 , большая ванная 4,8 м2, с/у 1,9 м2, большой балкон с остеклением 6,8 м2, высота потолка 2,75 м,  этаж 4/19 Преимущества квартиры и самого дома: - новая чистовая отделка - в санузлах кафельная плитка на полу и на стенах до потолка; - акриловая ванна, раковина с подвесной тумбой; - увеличенные оконные проемы, что дает дополнительный дневной свет; - пол ламинат 33 класса; - наземная парковка; - в этом доме дополнительно можно приобрести кладовое помещение для хранения сезонных вещей; Преимущества локации: - вся развитая инфраструктура!! - до ж/д станции и автобусной остановки пешком можно дойти за 5-7 мин; - на электричке до метро Девяткино 10 минут; - до центра СПб наземным транспортом 40 мин; - рядом школа , детский сад; - взрослая и детская поликлиники; - Кузьмоловский дом культуры; - отделение полиции; - банки, аптеки, кафе, пекарни, магазины ( пятерочка и др.) - самое главное преимущество- это в пешей доступности КУЗЬМОЛОВСКИЙ КАРЬЕР с ПЛЯЖЕМ и шикарными видами на огромный сосновый лесопарк ; - так же очень большая зеленая зона лесопарка с прудом находится вокруг дома , где каждый день можно гулять с детьми, с питомцами , да и просто отдыхать на природе! Достопримечательности в Кузьмолово: -Пешеходный экологический маршрут Долина реки Охта; -Пешеходный экологический маршрут Изумрудное озеро; -Поляна сказок; -Дом жестянщика  и многое другое.          Все вышеперечисленные преимущества квартиры дают возможность комфортно проживать семьям с детьми, а также возможно покупка такой квартиры для старшего поколения. Либо, кто устал от городской суеты и хочет удаленности и замедления! Квартиру можно купить по семейной ипотеке! Звоните , записывайтесь на просмотр квартиры !!!

2-х комнатная квартира

Шушары пос., Чудовская ул. м.Купчино


49.5 м2
Общая
21.8 м2
Жилая
11.8 м2
Кухня
Цена
10 258 000 ₽
Продается уютная  2х комнатная квартира ( 3Е) , где 2 полноценные комнаты + кухня-гостинная,   в современном жилом комплексе ЖК Монография  . 49,5 м2 Дом комфорт-класса.         На этаже 5 квартир.         Закрытый двор. Парные выполнены в современном стиле. Квартира на 11 этаже , в доме 12 этажей.         В доме современным подземным паркинг, а это прежде всего, безопасность вашего автомобиля.         Также в доме есть предусмотрен пандус. Это дает возможность очень  легко перемещаться с коляской или велосипедом. Безбарьерная входная группа-  вход в парадную без порожка.         Развитая инфраструктура, школа, детский сад и поликлиника - рядом.         На данный момент до метро Купчино, м. Звездная и м. Шушары можно добраться за 10-12 минут на машине.         Выезд на КАД, рядом, а так же в ближайшее время , рядом  с домом будет остановка трамвая `Купчино - Шушары`, до ст. метро Купчино можно будет добраться за 10 минут на трамвае. Это трамвайная ветка  уже готова к сдаче. Квартира светлая , двухсторонняя, видовая. С лоджии открываются прекрасный вид на панораму города. Кухня-гостиная 11,8 м2. Прихожая 7,2м2. Санузел 1,7 м2. Ванная комната 4,5 м2. Комнаты 9,5м2+11,8 м2 Большая 2х сторонняя Лоджия 8,6м2 Детские площадки прорезиненные. Инфраструктура развита. В шаговой доступности новая школа, магазины, пункты выдачи маркетплейсов, продуктовые магазины 24 часа. Квартира без отделки. Ремонт можно осуществить самостоятельно, полностью реализовав свою фантазию. В квартире раздельный санузел , окна квартиры выходят во двор и на улицу. Квартира готова к продаже, по договору купли- продажи. Возможна ипотека, в том числе и семейная. Возможна помощь в оформлении ипотеки. Возможна семейная ипотека. Звоните, записывайтесь на просмотр. Будем Вам очень рады!

2-х комнатная квартира

Мебельная ул. м.Беговая


60.8 м2
Общая
30.3 м2
Жилая
15 м2
Кухня
Цена
14 750 000 ₽
Санкт-Петербург, Приморский район, ул. Мебельная, д.21 корп.2 М `Беговая` - 1,48 км,       М `Старая деревня` - 2,6 км,     М `Зенит` - 3,4 км. Хочется жить в кирпичном доме?  Для вас и вашей семьи квартира с большой квадратной кухней,  где прекрасно поместится ваша дружная семья и ваши друзья и двумя изолированными комнатами, из обоих комнат можно выйти на балкон  с панорамным остеклением – и перед вашим взором вид нашего прекрасного  города. Квартира удобная, светлая, с двумя санузлами. Прямо во дворе детский садик № 68 и школа № 630 с бассейном, а это значит, что вашим детям не надо далеко ехать в школу или садик – все в двух минутах от дома. Кухонный гарнитур IKEA остается покупателю, пол здесь выложен кафелем. В комнате 12,5 кв м напольное покрытие – паркетная доска.   В прихожей большая гардеробная, которая так же остается новому владельцу. Вся квартира в приличном состоянии. Наше предложение идеально подойдет небольшой семье с детьми. Документы готовы, один собственник. ПРЯМАЯ ПРОДАЖА - АЛЬТЕРНАТИВНАЯ ПОКУПКА  НЕ ТРЕБУЕТСЯ. Если нужна помощь в ипотечном кредитовании, поможем подобрать  персональную программу. Записывайтесь на просмотр!

2-х комнатная квартира

Зеленогорск г., Ленина пр. м.Беговая


56.3 м2
Общая
34.8 м2
Жилая
5.7 м2
Кухня
Цена
17 400 000 ₽
Предлагаем вам уникальную 2-х комнатную квартиру в сталинском доме 1956 года постройки, в самом живописном городе - Зеленогорске. Высокие потолки (3 метра+), большие окна выходящие на проспект и двор. Из окон открывается потрясающие виды, зелень деревьев, а вечером закат над крышами. Толстые стены, сохраняющие тишину и прохладу в летнюю жару. Квартира без ремонта  это не недостаток, а преимущество, для тех кто покупает не стены, а образ жизни. Вы создайте дизайн с нуля под свой вкус и бюджет, не переплачивая за чужой устаревший ремонт.Наша квартира это больше чем локация. Вы получаете все это в окружении природы курортного города.Развитая инфраструктура: детские сады, школы, поликлиники, супермаркеты, кафе и аптеки. Все это в шаговой доступности. Всего в 10 минутах пешком песчаный пляж Финского залива и Парк культуры-ваша зона отдыха. Создайте уютное гнездышко в лучше месте и живите на курорте круглый год. Приезжаете и оценить не только в метры, но и магию места!

2-х комнатная квартира

Всеволожск г., Первомайский пер. м.Улица Дыбенко


59.3 м2
Общая
30 м2
Жилая
 —
Кухня
Цена
6 700 000 ₽
Пpодаeтcя просторная  двухкомнатная кваpтирa . Дoм  2002 года постройки  Квартиpа paспoложенa нa первом этaже пятиэтажнoгo здания, большая  кухня, изолированные комнаты, требуется косметический ремонт , учтено в цене  . Вo двoрe ecть дeтскaя и спoртивная площадки. В квартире раздельный санузел, что добавляет удобства в повседневной жизни., инфраструктура: в шаговой доступности продуктовые магазины, ПВЗ, аптеки, пекарни, школы, детские сады, автобусные остановки и железнодорожная станция (всего 30 минут до центра Санкт-Петербурга)

2-х комнатная квартира

Обводного канала наб. м.Балтийская


53.9 м2
Общая
22.2 м2
Жилая
17.9 м2
Кухня
Цена
21 958 000 ₽
Продаётся 2-комн.квартира площадью 53,9 кв.м, из которых 22,2 кв. м отведено под жилую и 17.9 кв. м под кухонную зону, на 3 этаже 9 этажного дома. Преимущества квартиры: Просторная кухня; Два санузла; Вид на улицу; Закрытая территория; Окна в пол; Высокие потолки 3 метра; Высокий уровень безопасности, видеонаблюдение; Светлый просторный подъезд на уровне земли, функциональная планировка, большие окна. Жилой квартал находится в центре Санкт-Петербурга, в Адмиралтейском районе, на набережной Обводного канала. В 5 минутах пешком — станция метро «Балтийская». 15 минут пешком - станция метро «Фрунзенская». 20 минут пешком станция метро - «Технологический институт». До Невского проспекта на автомобиле ехать 8 минут, до Московского проспекта — всего 2 минуты. На территории комплекса находятся: детские и спортивные площадки, места для отдыха, зелёные зоны, а на подземном этаже — паркинг с удобной навигацией. В шаговой доступности — кафе и пекарни, аптеки, магазины, спортивные залы, музеи,  школы, детские сады, торговые центры и гипермаркеты. В 2024 году в «Лермонтовском 54» открылся лицей на 1000 мест. Он разместился в здании 1824 года — раньше здесь было Николаевское кавалерийское училище. Недалеко от «Лермонтовского 54» находится Юсуповский дворец, парк Екатерингоф, на машине можно доехать до острова Новая Голландия и Мариинского театра. Рядом работают школы, детские сады, торговые центры и гипермаркеты.

2-х комнатная квартира

Всеволожск г., Октябрьский просп. м.Улица Дыбенко


63 м2
Общая
31 м2
Жилая
12 м2
Кухня
Цена
10 000 000 ₽
В продаже ухоженная квартира с отличным ремонтом. Ключевые преимущества: -индивидуальное газовое отопление(позволяет экономить на ЖКХ и при этом у вас комфорт в любое время года сырую осень или холодное лето) -увеличенная площадь кухни (позволяет разместить большую семью) _качественный ремонт (позволяет заехать и жить без дополнительных вложений) _комфортный второй этаж -своя закрытая территория у дома (нет посторонних, всегда в наличии парковочные места) -чистота во дворе -локация в зеленой зоне И наш бонус-кухонный гарнитур в подарок! Приглашаем на просмотр.

Закажите консультацию специалиста

Оставьте заявку
Нажимая на кнопку «Отправить заявку», Вы даете согласие на обработку своих персональных данных.
×
продажа
Что вы хотите продать?
Сколько комнат?
Тип объекта?
В каком регионе?
В каком районе Санкт-Петербурга
В каком районе Ленинградской области?

Оставьте Ваш контакт и наши специалисты свяжутся с Вами в самые кротчайшие сроки.

+7
×
новостройка
Какие районы Санкт-Петербурга Вас интересуют?
С какой целью Вы планируете приобрести квартиру?
Сколько комнат должно быть в Вашей будущей квартире?
Какой вариант отделки Вам необходим?
Когда Вы хотите заехать?
В какой бюджет хотите уложиться?

Оставьте Ваш контакт и получите подборку квартир без риска столкнуться с мошенничеством и недостроем.

+7
×
сдать
Что вы хотите сдать?
Скольки комнатная квартира?
Какой тип коммерческой недвижимости вы хотите сдать?
В каком регионе?
В каком районе Санкт-Петербурга
В каком районе Ленинградской области?

Оставьте Ваш контакт и наши специалисты свяжутся с Вами в самые кротчайшие сроки.

+7
Этот сайт использует файлы cookie для улучшения пользовательского опыта. Cookie - это небольшие текстовые файлы, которые сохраняются на вашем устройстве и помогают нам запоминать ваши предпочтения, анализировать посещаемость сайта и предоставлять более персонализированный контент. Использование файлов cookie позволяет нам сделать сайт удобнее для вас. Политика конфиденциальности
Принять Отказаться