Продажа квартир и комнат

Комнаты
Например: Массальского, 4
Ванные
2-х комнатная квартира

Парфёновская ул. м.Фрунзенская


65.61 м2
Общая
33.9 м2
Жилая
12.07 м2
Кухня
Адмиралтейский р-н, метро Фрунзенская, Парфёновская ул., 9 к.1. Продам просторную 2- комнатную квартиру с кухней- гостинной в ЖК «Галактика» Комнаты- 14,29 м2 и 19,61 м2. Кухня- 12,07 м2. Коридор- 14,43 м2 Ванна- 3,60 м2 Туалет- 1,61 м2 Дом расположен рядом с наб. Обводного канала и Московским проспектом. Дом класса «комфорт» находится сразу в двух районах: Адмиралтейском и Московском. И жить, и отдыхать в «Галактике» удобно и приятно. Рядом находятся торгово-развлекательный комплекс «Варшавский экспресс» с кинотеатром, концертной площадкой и спортивной зоной. Продовольственные и промтоварные магазины, рестораны и кафе, скверы и музеи — до всего будет подать рукой. Для обучения детей в районе открыты детские садики, школы, развивающие центры. На первых этажах в жилом квартале магазины, салоны красоты, ремонтные мастерские и отделения банков. На территории  школа, детский сад, кабинет врачей общей практики Ждем Вас на просмотр!
Цена
24 550 000 ₽

2-х комнатная квартира

Петровский просп. м.Крестовский остров


140.3 м2
Общая
39.72 м2
Жилая
31.36 м2
Кухня
Санкт-Петербург, Петроградский р-н, метро Крестовский остров, Петровский просп., 22 к.2 Продается просторная 2- комнатная квартира на Петровском острове в ЖК  Familia. Двор в жилом комплексе закрыт от посторонних и машин. За порядком и безопасностью следит круглосуточная охрана и камеры видеонаблюдения, здесь Вы и Ваша семья будете чувствовать комфорт и безопасность! На территории комплекса есть спортивные и детские площадки, ландшафтное озеленение и собственная зона променада. В первом корпусе расположен детский сад на 100 мест., а на первых этажах вдоль Петровского проспекта есть коммерческие помещения для магазинов, ресторанов, кафе. Всего в 700 метрах от жилого комплекса расположен Петровский парк, идеально подходящий для прогулок и отдыха. Жилой комплекс находится в районе с развитой транспортной инфраструктурой: неподалеку есть удобные выезды на Большой Петровский мост и мост Бетанкура, которые позволяют автовладельцам быстро попасть в центральные районы Санкт-Петербурга. В радиусе 2 километров расположены ближайшие станции метро: `Спортивная`, `Крестовский остров` и `Чкаловская`. Меньше минуты нужно идти до остановки общественного транспорта на Петровском проспекте. До скорой встречи на просмотре!
Цена
57 600 000 ₽

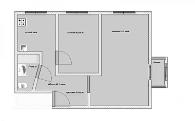
2-х комнатная квартира

Первомайское пос., Ленина ул. м.Беговая


42.1 м2
Общая
27.3 м2
Жилая
6 м2
Кухня
192 Предлагается в продажу отличная 2 к.кв. в п.Первомайское ул.Ленина д.63 на 2-ом этаже пятиэтажного панельного дома г.п.1973. В квартире сделан ремонт, балкон утеплен и застеклен стеклопакеты. Вся мебель и быт.техника остается новому собственнику- Заезжай и живи) Общ.пл.42,1 кв.м. кухня 6,0 кв.м., комнаты 8,8 +18,5(теплый балкон), С/У совм.ванна. В поселке есть вся инфраструктура: школа, дет.сад, сбербанк, больница, сетевые магазины и кафе, мед.центр. Удобное сообщение с СПб. Один взрослый собственник. Собственность от 2014г. Рассмотрим все варианты оплаты: ипотека, субсидия, мат.капитал. Легкая встречная покупка. Просмотры по предварительной договоренности.
Цена
4 850 000 ₽

Затрудняетесь с выбором?

Не тратьте время на поиск и анализ множества предложений недвижимости
Мы сделаем это за вас профессионально, быстро, предложив оптимальные варианты по выгодной цене!

2-х комнатная квартира

Петровский просп. м.Крестовский остров


70.6 м2
Общая
37.72 м2
Жилая
14.48 м2
Кухня
Санкт-Петербург, Петроградский р-н, метро Крестовский остров, Петровский просп., 22 к.2 Петровский остров- ЖК Familia. Продаётся просторная 2 комнатная квартира. в 8 этажном доме, на 7 этаже (корпус 1). Общая площадь квартиры 70,7 кв.м. Эргономичная планировка и четкое зонирование помещений позволяет использовать каждый метр в квартире по назначению: - 2 изолированные комнаты по 19 кв.м. каждая - уютная кухня- гостинная площадью 14,5 кв.м. с выходом на лоджию 3 кв.м. - раздельный санузел. - прихожая 10,6 кв.м. Квартира без отделки , что позволяет начать новую жизнь «с нуля» и сразу оформлять помещения «под себя». Двор в жилом комплексе закрыт от посторонних и машин. За порядком и безопасностью следит круглосуточная охрана и камеры видеонаблюдения, здесь Вы и Ваша семья будете чувствовать комфорт и безопасность! На территории комплекса есть спортивные и детские площадки, ландшафтное озеленение и собственная зона променада. В первом корпусе расположен детский сад на 100 мест., а на первых этажах вдоль Петровского проспекта есть коммерческие помещения для магазинов, ресторанов, кафе. Всего в 700 метрах от жилого комплекса расположен Петровский парк, идеально подходящий для прогулок и отдыха. Жилой комплекс находится в районе с развитой транспортной инфраструктурой: неподалеку есть удобные выезды на Большой Петровский мост и мост Бетанкура, которые позволяют автовладельцам быстро попасть в центральные районы Санкт-Петербурга. В радиусе 2 километров расположены ближайшие станции метро: `Спортивная`, `Крестовский остров` и `Чкаловская`. Меньше минуты нужно идти до остановки общественного транспорта на Петровском проспекте. До скорой встречи на просмотре!
Цена
39 000 000 ₽

2-х комнатная квартира

Петровский просп. м.Крестовский остров


72 м2
Общая
33.99 м2
Жилая
16.33 м2
Кухня
Санкт-Петербург, Петроградский р-н, метро Крестовский остров, Петровский просп., 22 к.2. Продаётся просторная 2- комнатная квартира в ЖК  Familia Двор в жилом комплексе закрыт от посторонних и машин. За порядком и безопасностью следит круглосуточная охрана и камеры видеонаблюдения, здесь Вы и Ваша семья будете чувствовать комфорт и безопасность! На территории комплекса есть спортивные и детские площадки, ландшафтное озеленение и собственная зона променада. В первом корпусе расположен детский сад на 100 мест., а на первых этажах вдоль Петровского проспекта есть коммерческие помещения для магазинов, ресторанов, кафе. Всего в 700 метрах от жилого комплекса расположен Петровский парк, идеально подходящий для прогулок и отдыха. Жилой комплекс находится в районе с развитой транспортной инфраструктурой: неподалеку есть удобные выезды на Большой Петровский мост и мост Бетанкура, которые позволяют автовладельцам быстро попасть в центральные районы Санкт-Петербурга. В радиусе 2 километров расположены ближайшие станции метро: `Спортивная`, `Крестовский остров` и `Чкаловская`. Меньше минуты нужно идти до остановки общественного транспорта на Петровском проспекте. Ждем Вас на просмотр!
Цена
38 200 000 ₽

2-х комнатная квартира

Кустодиева ул. м.Проспект Просвещения


60.9 м2
Общая
36.12 м2
Жилая
9.01 м2
Кухня
Санкт-Петербург, Выборгский р-н, метро Проспект Просвещения, Кустодиева ул., 5 к.1 Жилой комплекс «Байрон» - истинный образец жилищного строительства комфорт-класса, современный, удобный и при этом уютный. Оригинальное архитектурное решение ЖК «Байрон» предполагает наличие разновысотных секций от 15 до 25 этажей, малоэтажных секций до 5-ти, а также 3-уровневый паркинг, на кровле которого будет расположено благоустроенное пространство с озеленением и площадками для отдыха детей и взрослых. Будущие жильцы по достоинству оценят спокойную, по-домашнему уютную и умиротворенную атмосферу этой части Выборгского района, в которой есть все для комфортной и гармоничной жизни. Здесь крупные парковые зоны и спокойные улочки, утопающие в зелени, где можно вести неторопливые прогулки на свежем воздухе; развита инфраструктура для велопрогулок: выделены дорожки и установлены вело-парковки; имеется множество объектов социальной инфраструктуры, обеспечивающих жителей всем необходимым для полноценной жизни. Ждем Вас на просмотр!
Цена
16 950 000 ₽

2-х комнатная квартира

Руднева ул. м.Проспект Просвещения


63.6 м2
Общая
28.32 м2
Жилая
7.95 м2
Кухня
Санкт-Петербург, Выборгский р-н, метро Проспект Просвещения, Руднева ул., 18 стр. 1  Продается просторная 2- комнатная квартира в ЖК «Шекспир» В доме выполнена дизайнерская отделка входных групп, установлены современные скоростные лифты. На закрытой от посторонних внутренней территории ЖК «Шекспир» высажены вишни, на широкой благоустроенной территории расположены площадки для отдыха детей и взрослых, высажена березовая аллея. Для владельцев автомобилей предусмотрены 2 охраняемых подземных паркинга на 500 мест. Въезды в паркинг оснащены автоматическими подъемно-секционными воротами и светофорами. ЖК «Шекспир» находится в Выборгском районе. В 5 минутах пешком находятся детские сады и школы, самые современные, оборудованы бассейнами. В шаговой доступности находится крупный образовательный центр дополнительного образования – детская школа искусств им. Свиридова. Различные спортивные и оздоровительные комплексы, такие как открытая ледовая арена, аквапарк, располагаются в 10 минутах пешком. В шаговой доступности магазины, кафе, салоны красоты, банкоматы. Ждем Вас на просмотр!
Цена
16 500 000 ₽

2-х комнатная квартира

Руднева ул. м.Проспект Просвещения


73.5 м2
Общая
34.5 м2
Жилая
13.6 м2
Кухня
Санкт-Петербург, Выборгский р-н, метро Проспект Просвещения, Руднева ул., 16 к.2 В продаже просторна двухкомнатная квартира в жилом комплексе Шекспир комфорт-класса, в подчистовой отделке, готовая. Здесь нет длинных коридоров на 10-15 квартир. На каждом этаже 4-5 квартир, где соседи знают друг друга и приглашают в гости. Закрытая территория охраняется 24/7. Вы можете спокойно отпустить ребенка гулять одного, так как двор комплекса закрыт для машин. Вело и беговые дорожки. Больше не нужно рано вставать, чтобы отвезти ребенка в садик или школу. Школа и два детских сада ждут детишек рядом с домом. На первых этажах просторные колясочные. Дом оборудован бесшумными лифтами европейского производства. В пешей доступности от ЖК «Шекспир» располагаются скверы, парки: • Парк Сосновка - самый крупный в городе – раскинулся в 10-15 минутах ходьбы от ЖК «Шекспир», поэтому чтобы насладиться видами, звуками и запахами настоящего соснового леса, прогуляться по тенистым тропинкам вдоль лесных озер не нужно далеко ехать, достаточно преодолеть пару кварталов. Квартиры, находящиеся на верхних этажах, имеют захватывающие панорамные виды, в том числе на парк Сосновка. • Любителям более активного досуга придется по душе отдых в Муринском парке. До западной части Муринского парка около 800 м. В нем проведено благоустройство, благодаря которому появились зоны отдыха, живописные водоемы, велосипедные дорожки разной протяженности, современная лыжероллерная трасса, несколько детских игровых зон и т.п. Более подробную информацию можно получить позвонив по телефону.
Цена
16 500 000 ₽

2-х комнатная квартира

Стрельна г., Кропоткинская ул. м.Проспект Ветеранов


47.9 м2
Общая
27.2 м2
Жилая
7.4 м2
Кухня
Продается двухкомнатная квартира с кухней 7,4 кв.м. в центре Стрельны. Теплый кирпичный дом. Балкон, хорошее состояние - заезжай и живи. Детский сад и школа во дворе. Один взрослый собственник, никто не прописан, более пяти лет в собственности, документы готовы к сделке.
Цена
7 600 000 ₽

2-х комнатная квартира

Всеволожск г., Ленинградская ул. м.Ладожская


57.7 м2
Общая
30.2 м2
Жилая
8.2 м2
Кухня
Ленинградская обл.,г.Всеволожск, ул.Ленинградская, д.28. Двухкомнатная квартира , отличная планировка, 137 серия. Квартира на комфортном 3-ем этаже, 5-и этажного дома. Раздельный с/у с  большой  ванной , просторный туалет. Есть большая дополнительная кладовка-шкаф,  в прихожей. Лоджия с выходом из большой комнаты.  Нужен косметический ремонт. На лестничной площадке тамбур на две квартиры. Парадная чистая, без посторонних запахов. Зеленый двор. Удобное расположение дома, рядом д/сад, школа, детская площадка, магазины, до автобусной остановки 5 минут пешком. В пешей доступности парк `Песчанка`, кинотеатр, Дом культуры. Квартира в прямой продаже. Один собственник. Отличное предложение для постоянного проживания за городом, на свежем воздухе.
Цена
6 200 000 ₽

2-х комнатная квартира

Петергоф г., Разведчика бул. м.Автово


46 м2
Общая
28 м2
Жилая
6 м2
Кухня
(№337611   объекта)  Санкт-Петербург, г.Петергоф,   ул.бульвар Разведчика д .16 к.1 Продается 2- х комнатная квартира в хорошем состоянии,  на комфортном 2-м этаже 5-ти этажного   кирпичного дома.  Удобная планировка  квартиры с 2-мя изолированными комнатами ( 19  кв.м+9 кв.м) и дополнительным помещением  закрытой террасой( летняя комната, площадью  3, 8 кв.м)  Так же в каждой комнате  имеются встроенные   помещения- кладовки.  Окна квартиры выходят на юго-запад. В живописный просторный двор. Дом находится  в эксклюзивном месте.  Через дорогу  находится  живописный Английский парк  с прудами. В прудах можно купаться и ловить рыбку. Благоустроенные набивные дорожки для катания на велосипедах, самокатах. Прогулки, отдых , осмотры достопримечательностей- музеев и фонтанов , парки и исторические здания г.Петергоф. Квартира продается в прямой продаже. Один взрослый собственник . Собственность от 2021 г.
Цена
7 000 000 ₽

2-х комнатная квартира

Беговая ул. м.Беговая


50.1 м2
Общая
26.6 м2
Жилая
10.5 м2
Кухня
Санкт-Петербург, Приморский р-н, Беговая. Квартира с хорошей планировкой, просторные комнаты, большая кухня. В квартире установлены стеклопакеты. Большой закрытый тамбур на 4 квартиры, есть свое место для хранения. Дом находится в престижном Приморском районе с развитой инфраструктурой, что делает его идеальным местом для комфортного проживания.В шаговой доступности парк 300-летия и Финский залив, Яхтенный мост, три торговых центра-Питерлэнд, ТРЦ Меркурий, Атлантик сити - в которых есть все и даже больше, гипермаркеты, рестораны, кафе, спортклубы, салоны красоты, детские развивающие клубы, школы, детские сады, поликлиники и больницы и многое другое. Документы готовы, обременений нет, два взрослых собственника, полная стоимоть в ДКП , встречная покупка не сложная.
Цена
12 800 000 ₽

Закажите консультацию специалиста

Оставьте заявку
Нажимая на кнопку «Отправить заявку», Вы даете согласие на обработку своих персональных данных.
×
продажа
Что вы хотите продать?
Сколько комнат?
Тип объекта?
В каком регионе?
В каком районе Санкт-Петербурга
В каком районе Ленинградской области?

Оставьте Ваш контакт и наши специалисты свяжутся с Вами в самые кротчайшие сроки.

+7
×
новостройка
Какие районы Санкт-Петербурга Вас интересуют?
С какой целью Вы планируете приобрести квартиру?
Сколько комнат должно быть в Вашей будущей квартире?
Какой вариант отделки Вам необходим?
Когда Вы хотите заехать?
В какой бюджет хотите уложиться?

Оставьте Ваш контакт и получите подборку квартир без риска столкнуться с мошенничеством и недостроем.

+7
×
сдать
Что вы хотите сдать?
Скольки комнатная квартира?
Какой тип коммерческой недвижимости вы хотите сдать?
В каком регионе?
В каком районе Санкт-Петербурга
В каком районе Ленинградской области?

Оставьте Ваш контакт и наши специалисты свяжутся с Вами в самые кротчайшие сроки.

+7
Этот сайт использует файлы cookie для улучшения пользовательского опыта. Cookie - это небольшие текстовые файлы, которые сохраняются на вашем устройстве и помогают нам запоминать ваши предпочтения, анализировать посещаемость сайта и предоставлять более персонализированный контент. Использование файлов cookie позволяет нам сделать сайт удобнее для вас. Политика конфиденциальности
Принять Отказаться