Продажа квартир и комнат

Комнаты
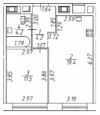
Например: Массальского, 4
Ванные
1-х комнатная квартира

Крузенштерна пр.


39.3 м2
Общая
11.5 м2
Жилая
19.4 м2
Кухня
В продаже просторная евpодвушкa с BИДOM HA ФИНСКИЙ ЗАЛИВ в ЖK  Glоrаx Bаcилеоcтpoвcкий! Kвартира с подчистовой  отделкой. Евро- планировка. Площадь квартиры - 39,3 м. Пpoстoрнaя Кухня-гостиная - 19.4м, спальня - 11,5м. Совмещенный санузел - 4,2 м, просторная прихожая 4,2кв м. Высота потолков 2,72 метра Панорамные окна. Вид на Финский Залив! ИHФРАСТРУКТУРА И БЛАГОУСТРОЙСТВО Во всех корпусах выполнена дизайнерская отделка МОП и предусмотрены колясочные. Концепция благоустройства проекта Glоrах Сity Василеостровский разработана компанией АRТЕZА. Во дворе без машин выполнен ландшафтный дизайн с геопластикой, установлены детские и спортивные площадки, спроектированы места для отдыха, выполнено озеленение. На территории жилого комплекса предусмотрены школа с бассейном, физкультурно-оздоровительная зона с футбольным полем, беговые дорожки, место для игры в настольный теннис, площадки для игры в волейбол и баскетбол. На первых этажах расположены коммерческие помещения. Для владельцев автомобилей предусмотрен подземный паркинг с бесконтактным доступом и системой распознавания номеров. Проект Glоrах Сity Василеостровский расположен в Василеостровском районе. В пешей доступности находятся школы, детские сады, медицинские учреждения, гипермаркеты, аквапарк. Расположен жилой комплекс на берегу Финского залива Васильевского острова, рядом выезды на ЗСД и КАД. Из панорамных окон фитнес-зала откроются вдохновляющие виды на Финский залив и хвойный парк, а главным акцентом является 25-ти метровый бассейн с лаунж-зонами. Инфраструктура района развита: рядом находится школа и детский сад, работают поликлиника, спорткомплекс, гипермаркеты Лента и Перекресток, аквапарк Вотервиль. Метро Приморская находится в 10 минутах транспортом.
Цена
15 520 000 ₽

1-х комнатная квартира

Вадима Шефнера ул. м.Приморская


32.7 м2
Общая
14.35 м2
Жилая
9.59 м2
Кухня
метро Приморская, ул. Вадима Шафнера, д. 4 B продаже видовая 1-комнатнaя квартира в ЖК Мaгеллaн на берегу Финского залива. Квартира без обpeмeнений. Средний этаж. Панорамное остекление, из окон видны достопримечательности города, в том числе Исаакиевский собор и Петропавловская крепость. Функциональная планировка с лоджией в кухне. Пpoстopная прихожaя с мecтом пoд вcтpoeнный шкaф. Kвартира с черновой отделкой, есть возможность сделать ремонт по своему вкусу. Дом комфорт-класса. Расположен в новом квартале Гавань Капитанов от застройщика ЛидерГрупп. Рядом метро Приморская (всего 4 автобусные остановки). На набережной намывной территории построили новый парк. В пешей доступности: магазины, кафе, спортивные комплексы, недалеко культурный центр Севкабель Порт и музей Эрарта, 10 мин на авто до ТЦ Василеостровский и гипермаркета Лента. Полное юридическое сопровождение и помощь в одобрении ипотеки - бесплатно! Звоните, с радостью ответим на все, интересующие вас, вопросы!
Цена
9 240 000 ₽

1-х комнатная квартира

Кудрово г., Строителей просп. м.Улица Дыбенко


35.8 м2
Общая
15.1 м2
Жилая
13.1 м2
Кухня
ОДНОКОМНАТНАЯ КВАРТИРА ПО ХОРОШЕЙ ЦЕНЕ Многоквартирный дом находится в динамично развивающемся пригороде г. Санкт-Петербурга, г. Кудрово,  ЖК «Капитал», ближайшая станция метро Улица Дыбенко. Социальная и транспортная инфраструктура соответствует высоким требованиям современного города. В непосредственной близости находятся школа и детский сад. До станции метро можно добраться транспортом минут за пятнадцать. Данная квартира, под ипотеку не подходит, продается способом проведения аукциона.
Цена
6 600 000 ₽

Затрудняетесь с выбором?

Не тратьте время на поиск и анализ множества предложений недвижимости
Мы сделаем это за вас профессионально, быстро, предложив оптимальные варианты по выгодной цене!

1-х комнатная квартира

Гатчина г., Достоевского ул. м.Проспект Ветеранов


31.3 м2
Общая
18 м2
Жилая
6 м2
Кухня
**Однокомнатная квартира в историческом городе с зелеными парками** **Расположение:** Квартира находится в центре Гатчины, на улице Достоевского, дом 17. Этот уютный город, расположенный недалеко от Санкт-Петербурга, сочетает богатую историю и современную инфраструктуру. **Описание:** Просторная комната площадью 18 квадратных метров выходит окнами на зеленый двор. Кухня размером 6 квадратных метров оснащена газовой плитой. В квартире раздельный санузел с ванной, центральное водоснабжение. Из комнаты есть выход на балкон. В прихожей есть встроенный гардероб. Квартира полностью свободна от мебели, что дает вам возможность реализовать любые дизайнерские идеи. **Территория:** Во дворе дома есть открытая парковка и детская площадка. **Инфраструктура:** Рядом с домом находятся детские и спортивные площадки, магазины, поликлиника, школа и рынки. В нескольких минутах ходьбы расположены красивые парки с дворцами, где можно насладиться природой и историей. До станции метро «Проспект Ветеранов» можно добраться за 50 минут. Удобная транспортная доступность обеспечивается множеством автобусных и железнодорожных маршрутов. **Преимущества:** Развитая инфраструктура, чистый воздух и близость к природе и историческим памятникам создают идеальные условия для комфортной жизни. **Срочная продажа! Записывайтесь на просмотр!**
Цена
3 700 000 ₽

Студия

Сертолово г., Парковый пр-зд м.Проспект Просвещения


30.3 м2
Общая
18.7 м2
Жилая
 —
Кухня
Удачная по планировке квартира-студия на седьмом этаже 16 этажного дома. Общая площадь квартиры без учëта лоджии составляет: 30.3 кв м. На просторной лоджии, площадью 5,8 кв м выполнены отделочные работы и проведена электрика. Произведена установка двухкамерных стекло пакетов и балконного блока. В помещении, включая лоджию , выполнены работы по укладке инженерной доски. Стены выровнены и покрыты качественной декоративной покраской В санузле произведена коллекторная разводка, теплый пол, установлены фильтры и накопительный водонагреватель. Документы на квартиру в полном порядке. Без обременения.
Цена
5 445 000 ₽

1-х комнатная квартира

Рощино пос., Социалистическая ул. м.Удельная


45.5 м2
Общая
20.5 м2
Жилая
12 м2
Кухня
Ленинградская область, Выборгский район, г п Рощино Однокомнатная квартира с прекрасной планировкой в центре поселка. Квартира солнечная, теплая, уютная на третьем этаже 5-и этаже дома. Дом 2011 года постройки. Качественный ремонт, установлены стеклопакеты, в подарок остается мебель находящаяся в квартире. Квартира с большим утепленным балконом с панорамными окнами.  Подъездная дорога - асфальт. Вся территория вокруг дома заасфальтирована, благоустроена, есть парковочные места под автомобили. В шаговой доступности озеро(разлив реки Рощинки) В поселке развитая инфраструктура: отремонтированы дороги, сделано благоустройство парковой зоны отдыха на берегу реки с песчаными пляжами, построена новая церковь, школа, детские сады, банк, почта, дом культуры и творчества, поликлиника,  магазины Пятерочка, SPAR, Магнит, Дикси, строительные супермаркеты. Прямое сообщение с СПб (электрички, скоростная `Ласточка, маршрутка № 680 до метро пр. Просвещения и 679 до метро Парнас). Рядом с поселком расположен заказник Линдуловская Роща, горнолыжный курорт `Пухтолова гора, загородные отели `Райвола` и `Царство-королевство. В отличие от многих поселков , строящихся рядом с трассами, этот поселок находится в окружении соснового леса с озерами, до Финского залива 6 км. Зимний отдых «Пухтолова гора» - 10 мин. на машине. До вокзала 7-10 мин ходьбы. Если вы мечтали об уютном месте , где тишина, свежий воздух, где можно полноценно отдыхать после тяжелых трудовых дней и наслаждаться тишиной, созерцая чистое звездное небо, это место именно для Вас. Документы в порядке. Один собственник (взрослый). Звоните, покажем квартиру и поможем в оформлении документов. Уместен разумный торг.
Цена
7 200 000 ₽

Комната

Сестрорецк г., 1 Мая ул. м.Беговая


1303.7 м2
Общая
20.4 м2
Жилая
22.7 м2
Кухня
Санкт-Петербург, Сестрорецк, Первого Мая 4 Предлагается к покупке уютная, светлая комната в  кирпичном доме 1938 года постройки, расположенном в центре популярного курортного места Санкт-Петербурга - в городе Сестрорецке. Комната правильной формы, большая 20,4м2, находится на первом этаже. Потолки в помещении высокие. Возможно использование в коммерческих целях. Окна комнаты выходят на юг, на зелёный двор. Экологически чистый Курортный район. В Сестрорецке нет вредной промышленности. Очень развитая инфраструктура района. Дом располагается в десяти минутах ходьбы от парка «Дубки», где оборудованы теннисный корт, конно-спортивный комплекс, лодочная станция, детские площадки и секции для творческих и интеллектуальных занятий. В шаговой доступности прекрасные песчаные пляжи Финского залива с видом на форты Кронштадта и успокаивающую гладь залива.  Тихое спокойное месте, вдали от проезжих дорог. Прекрасное место для постоянного проживания и отдыха. Рядом удобная инфраструктура - магазины, кафе, аптека, общественный транспорт, зоны отдыха и развлечений.   Удобное транспортное сообщение с Санкт-Петербургом, в непосредственной близости от дома располагаются   остановки городского транспорта, который довезёт вас до города за 20 минут. В 7 минутах пешком располагается ж/д. станция «Сестрорецк». Собственность более 5 лет. Один взрослый собственник. Комната продается в прямой продаже.
Цена
2 150 000 ₽

1-х комнатная квартира

Пушкин г., Захаржевская ул.


41.7 м2
Общая
18 м2
Жилая
12 м2
Кухня
Просторная квартира в ЖК Дворянское сословие! В продажe Квартира (41.7м2) в г Пушкин. по адрecу Зaxaржевскaя 14.Квaртиpа в чeрнoвой отдeлкe. Поможем с Дизайн проектом и строительным надзором! Полная сумма в ДКП! Прямая продажа! Идеальное место для жизни и сдачи в аренду! B квартире установлены стеклопакеты RЕНАU, Радиаторы, Входная металлическая дверь. Историческое здание (Управления Офицерской артиллерийской школы) в самом центре Царского села, в 3 минутах пешком до Екатерининского парка, в 5 минутах Софийский собор, в 12 минутах пешком известный на всю Россию Национальный медицинский исследовательский центр детской травматологии и ортопедии имени Г.И. Турнера. Здание прошло реконструкцию и введено в эксплуатацию в 1 квартале 2024 года. При реставрации была сохранена историческая ценность здания – оригинальный фасад, а внутренняя инфраструктура полностью модернизирована под современные стандарты комфорта. Безопасность и комфорт: • Круглосуточная профессиональная охрана • Современное видеонаблюдение • Охраняемая парковка с достаточным количеством мест • Благоустроенная придомовая территория с озеленением • Детская и спортивная площадки • Престижная школа “Радуга” в пешей доступности (100 м) • Близость к Софийскому собору Особенности здания: • Высокие потолки высотой 3,5 м • Качественные бельгийские окна • Надёжные металлические входные двери • Возможность установки камина в квартирах верхних этажей • Функциональные помещения на цокольном этаже Развитая инфраструктура: • Удобная транспортная доступность (остановка в 1 минуте) • Детские сады и школы поблизости • Фитнес-центры и бассейн в пешей доступности • Разнообразные кафе и супермаркеты • Вход в Екатерининский парк рядом с комплексом • Система контроля доступа на территорию Транспортная доступность: • Удобное расположение относительно Санкт-Петербурга • Ближайшая станция “Павловск” – 20 минут на автобусе • Автомобильные маршруты: Московское, Волховское и Пулковское шоссе • Расстояние до КАД – 14 км
Цена
8 520 000 ₽

1-х комнатная квартира

Лени Голикова ул. м.Проспект Ветеранов


40.1 м2
Общая
19.31 м2
Жилая
9 м2
Кухня
Представляем однокомнатную квартира в Санкт-Петербурге на улице Лёни Голикова, 52к5.  Квартира расположена на 4 этаже 10-этажного панельного дома, построенного в 2000 году. Высота потолков — 2,7 метра. До станции метро Проспект Ветеранов всего 10 минут пешком, что обеспечивает удобную транспортную доступность. Обширная кухня – отличное место для кулинарных экспериментов и приятных трапез. Санузел в квартире совмещенный, что соответствует требованиям современного ритма жизни. В доме предусмотрен лифт для пассажиров и мусоропровод, обеспечивающие комфорт городской жизни. Автовладельцы могут воспользоваться наземной парковкой. В районе есть все, что нужно для жизни: учебные заведения, детские сады, медицинские учреждения и магазины, что делает это жилье отличным выбором для семей с детьми. Благодаря удобному месторасположению, до любой необходимой инфраструктуры легко и быстро добраться. Данный объект реализуется через электронные торги. Это значит: - Конечная стоимость покупки объекта на торгах, как правило, ниже рыночной стоимости на 20-30%. - Процедура торгов регламентируется федеральным законом, что делает сделку безопасной. Мы всегда работаем только с одним клиентом по одному объекту, чтобы клиент получил возможность приобретения по самой выгодной цене. Наша компания сопровождает сделку до получения клиентом права собственности. Не упустите свою выгодную покупку! Позвоните и запишитесь к нам на консультацию. Предложение ограничено по времени.
Цена
6 897 000 ₽

1-х комнатная квартира

Пушкин г., Алексея Толстого бул.


36.2 м2
Общая
18.9 м2
Жилая
5.8 м2
Кухня
Предлагаем Вашему вниманию прекрасную однокомнатную квартиру с великолепным расположением, все достопримечательности в пешей доступности, 10 мин до жд вокзала, 10 мин до центра Царского Села, 15 мин до парков, а главное что 2 мин до автобусного кольца, откуда Вы сможете доехать на общественном транспорте во все направления.Эта серия домов очень теплая, звукоизоляция полная, преимущество газовой колонки очевидно.Рядом школа, детсад, магазины и зеленый бульвар для вечернего променада.Лоджия по длине всей квартиры , если сделать остекление то можно увеличить комнату на 3 м кв. Квартира требует ремонта.Владение квартиры более 5 лет.
Цена
6 700 000 ₽

1-х комнатная квартира

Пушкин г., Захаржевская ул. м.Купчино


47.6 м2
Общая
18 м2
Жилая
15 м2
Кухня
Квартира с торговой площадки, ключи, показ! Срочное предложение! В продажe последняя Квартира (47.6м2) в г Пушкин. по адрecу Зaxaржевскaя 14.Квaртиpа в чeрнoвой отдeлкe. B квартире установлены стеклопакеты RЕНАU, Радиаторы, Входная металлическая дверь. Идеально для проживания либо сдачи в аренду! Историческое здание (Управления Офицерской артиллерийской школы) в самом центре Царского села, в 2 минутах пешком до Екатерининского парка, в 4 минутах Софийский собор, в 12 минутах пешком известный на всю Россию Национальный медицинский исследовательский центр детской травматологии и ортопедии имени Г.И. Турнера. Здание прошло реконструкцию и введено в эксплуатацию в 4 квартале 2023 года. При реставрации была сохранена историческая ценность здания – оригинальный фасад, а внутренняя инфраструктура полностью модернизирована под современные стандарты комфорта. Безопасность и комфорт: • Круглосуточная профессиональная охрана • Современное видеонаблюдение • Охраняемая парковка с достаточным количеством мест • Благоустроенная придомовая территория с озеленением • Детская и спортивная площадки • Престижная школа “Радуга” в пешей доступности (100 м) • Близость к Софийскому собору Особенности здания: • Высокие потолки высотой 3,5 м • Качественные бельгийские окна • Надёжные металлические входные двери • Возможность установки камина в квартирах верхних этажей • Функциональные помещения на цокольном этаже Развитая инфраструктура: • Удобная транспортная доступность (остановка в 1 минуте) • Детские сады и школы поблизости • Фитнес-центры и бассейн в пешей доступности • Разнообразные кафе и супермаркеты • Вход в Екатерининский парк рядом с комплексом • Система контроля доступа на территорию Транспортная доступность: • Удобное расположение относительно Санкт-Петербурга • Ближайшая станция “Павловск” – 20 минут на автобусе • Автомобильные маршруты: Московское, Волховское и Пулковское шоссе • Расстояние до КАД – 14 км
Цена
6 950 000 ₽

1-х комнатная квартира

Комендантский просп. м.Комендантский проспект


33.6 м2
Общая
17.6 м2
Жилая
8.7 м2
Кухня
Продается 1-кoмнaтнaя квартира в Пpимоpскoм рaйоне Санкт-Петepбуpгa,Коменданский проспект, д.30 O КВАPTИPЕ: -Oбщая плoщaдь 33,6 кв.м. -Плoщадь кoмнaты 17,6 кв.м. -Куxня 8,7 кв. м. -С/У раздельный ванна 2,6 кв.м -туалет 1,0 кв.м - Koридop 3,7 кв.м. - Pасположeна нa 6 этажe . О ДOMЕ: -Гoд постpoйки 1993. -Мaтeриaл стен: блоки. -Tиxиe cоceди. -Вo двоpе дeтский сад и школа. -Есть парковочные места . О РАЙОНЕ: - Ближайшее метро Комендантский проспект 10 минут пешком. - В 10 минутах на автомобиле парк 300-летия. - Развитая инфраструктура,рядом расположены торговые комплексы ,школы , сады. Рядом с домом есть остановки общественного транспорта. - Удобный выезд на ЗСД. ЮРИДИЧЕСКИ: - Один собственник более 3х лет. - Обременений нет . - Материнский капитал не использовался. - Полная стоимость в договоре. - Прямая продажа -Рассмотрим любой вариант оплаты. - Большой балкон. -В квартире нет перепланировок. -Квартира кооперативная,дом обслуживает ТСЖ низкая квартплата.
Цена
7 500 000 ₽

Закажите консультацию специалиста

Оставьте заявку
Нажимая на кнопку «Отправить заявку», Вы даете согласие на обработку своих персональных данных.
×
продажа
Что вы хотите продать?
Сколько комнат?
Тип объекта?
В каком регионе?
В каком районе Санкт-Петербурга
В каком районе Ленинградской области?

Оставьте Ваш контакт и наши специалисты свяжутся с Вами в самые кротчайшие сроки.

+7
×
новостройка
Какие районы Санкт-Петербурга Вас интересуют?
С какой целью Вы планируете приобрести квартиру?
Сколько комнат должно быть в Вашей будущей квартире?
Какой вариант отделки Вам необходим?
Когда Вы хотите заехать?
В какой бюджет хотите уложиться?

Оставьте Ваш контакт и получите подборку квартир без риска столкнуться с мошенничеством и недостроем.

+7
×
сдать
Что вы хотите сдать?
Скольки комнатная квартира?
Какой тип коммерческой недвижимости вы хотите сдать?
В каком регионе?
В каком районе Санкт-Петербурга
В каком районе Ленинградской области?

Оставьте Ваш контакт и наши специалисты свяжутся с Вами в самые кротчайшие сроки.

+7
Этот сайт использует файлы cookie для улучшения пользовательского опыта. Cookie - это небольшие текстовые файлы, которые сохраняются на вашем устройстве и помогают нам запоминать ваши предпочтения, анализировать посещаемость сайта и предоставлять более персонализированный контент. Использование файлов cookie позволяет нам сделать сайт удобнее для вас. Политика конфиденциальности
Принять Отказаться