Продажа квартир и комнат

Комнаты
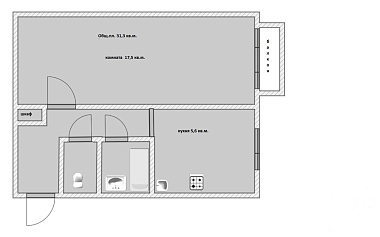
Например: Массальского, 4
Ванные
1-х комнатная квартира

Семиозерье пос., Парковый пер. м.Беговая


31.3 м2
Общая
17.5 м2
Жилая
5.6 м2
Кухня
192  Предлагается к продаже 1 к кв в посёлке Семиозерье, ЛО, Выборгского р-н.  Квартира расположена на 4 этаже пятиэтажного кирпичного дома 1968 г.п.Общ.пл.31,3 кв.м комната 17,5 есть балкон. Квартира без ремонта но чистая. Окна-стеклопакеты. В посёлке есть вся инфраструктура: дет.садик, школа, медпункт, магазины, почта, Сбербанк, дом культуры, церковь и т.д. Хорошая транспортная доступность. Автобус ходит регулярно до ж/д станции Каннельярви, а там ходят Ласточки до СПб и Выборга. Посёлок находится в окружении соснового леса, а в лесу ягоды и грибы, свежий воздух. Отличное вложение денег под сдачу в аренду, очень пользуется спросом или для себя как загородная дача. По документам : один взрослый собственник, форма 9 чистая, документ основания дкп от 2007г. Прямая продажа. Просмотры по предварительной договоренности.
Цена
2 650 000 ₽

Студия

Кудрово г., Строителей просп. м.Улица Дыбенко


28.2 м2
Общая
19.4 м2
Жилая
 —
Кухня
№338952 Ленинградская область, Всеволожский р-н, м. Дыбенко, Кудрово г., Строителей просп., д. 18 Продается уникальная видовая студия в Кудрово с потрясающим видом на лес! Представляем вашему вниманию просторную студию общей площадью 32,7 = 28,2 м² площадь квартиры + лоджия 4,5 м² в одном из самых перспективных районов Ленинградской области. Главные преимущества: Квартира находится на оптимальном 4-м этаже 11-этажного дома 2018 года постройки. Панорамный вид на лес — один из немногих вариантов в Кудрово с таким расположением окон Просторная лоджия во всю ширину квартиры с великолепным видом Качественная отделка — заезжайте и живите без дополнительных вложений Удобная планировка с комнатой квадратной формы и просторной прихожей Высота потолков 2,73 м 2 пассажирских лифта, индивидуальный тепловой пункт, мусоропровод Клубный дом с 2 подъездами Безопасность и комфорт: Шлагбаум на въезде, много парковочных мест, детские учреждения на 1-м этаже Расположение и инфраструктура: школа прямо напротив дома, детский сад в 3 минутах ходьбы, детская площадка во дворе, ТЦ “Мега” и множество магазинов рядом, 2 парка в пешей доступности В 2027 году открытие станции метро в пешей доступности, рядом с ТЦ `МЕГА` Транспортная доступность: 15 минут до метро на транспорте (автобусы каждые 5 минут), 10 минут до метро на машине, 30 минут пешком до метро Более 5 лет в собственности Прямая продажа Не упустите возможность приобрести квартиру мечты в одном из лучших районов Кудрово! Звоните прямо сейчас для просмотра! P.S. При просмотре вы сможете лично оценить все преимущества этой уникальной квартиры.
Цена
5 190 000 ₽

1-х комнатная квартира

Песочный пос., Военный городок м.Озерки


29.8 м2
Общая
12.3 м2
Жилая
6.9 м2
Кухня
Продаётся просторная светлая уютная однокомнатная квартира общей площадью 29,8 кв.м. (комната 12,3 кв.м., кухня 7 кв.м., совмещенный санузел, имеется вместительная гардеробная). В квартире осуществлен качественный ремонт в привлекательной тональности. Тёплые полы в ванной комнаты и в коридоре. Окна - стеклопакеты  Вся необходимая инфраструктура для комфортного проживания в шаговой доступности: школы, детские сады, поликлиника, аптеки. Уникальное месторасположение -дом утопает в зелени, что позволяет наслаждаться прогулками на свежем воздухе и занятиями спортом. Рядом с домом прекрасная детская площадка, ухоженная придомовая территория. Всегда имеется место для парковки. Всего в 20-25-ти минутах - Финский залив. Прекрасная транспортная доступность - рядом выезд на ЗСД, общественный транспорт, ж/д станция Песочная. Прописка - Санкт-Петербург. Один взрослый собственник. Подходит под любые формы оплаты.
Цена
4 990 000 ₽

Затрудняетесь с выбором?

Не тратьте время на поиск и анализ множества предложений недвижимости
Мы сделаем это за вас профессионально, быстро, предложив оптимальные варианты по выгодной цене!

1-х комнатная квартира

Бугры пос., Тихая ул. м.Девяткино


33.1 м2
Общая
9.95 м2
Жилая
12.66 м2
Кухня
ЛО, Всеволожский р-н, Бугры пос., Тихая ул., д.5 к.3 Продам просторную 1- комнатную квартиру  с балконом в ЖК Новые Горизонты. Кухня- 12,66 м2. Комната- 9,95 м2. Санузел- 4,03 м2. Коридор- 3,78 м2. ЖК включает в себя 3 детских сада и школу на 1375 мест и коммерческие помещения на первых этажах. Придомовая территория благоустроена пешеходными тротуарами, зелеными зонами и местами для отдыха. Расположение корпусов образует закрытые дворы, где установлены детские и спортивные площадки и уличные тренажеры. На территории ЖК работает служба консьержей и охраны. ЖК расположен во Всеволожском районе. В пешей доступности работают продуктовые магазины, отделения почты и банков. В пяти минутах транспортом находится «МЕГА Парнас», а также «OBI»,«IKEA» и «Ашан», в 15 минутах – курорт «Охта-парк». В радиусе пяти километров расположены метро «Парнас», «Проспект Просвещения», «Гражданский проспект» и «Девяткино». Выезд на КАД – в пяти минутах транспортом. Ждем Вас на просмотр!
Цена
5 400 000 ₽

1-х комнатная квартира

Бугры пос., Тихая ул. м.Девяткино


33.15 м2
Общая
10.65 м2
Жилая
13.17 м2
Кухня
Ленинградская область, Всеволожский р-н, метро Девяткино, Бугры пос., Тихая ул., 5 к.3 Продам просторную 1- комнатную квартиру  с балконом в ЖК Новые Горизонты. Кухня- 13,17 м2. Комната- 10,65 м2. Санузел- 4,03 м2. Коридор- 3,92м2. ЖК включает в себя 3 детских сада и школу на 1375 мест и коммерческие помещения на первых этажах. Придомовая территория благоустроена пешеходными тротуарами, зелеными зонами и местами для отдыха. Расположение корпусов образует закрытые дворы, где установлены детские и спортивные площадки и уличные тренажеры. На территории ЖК работает служба консьержей и охраны. ЖК расположен во Всеволожском районе. В пешей доступности работают продуктовые магазины, отделения почты и банков. В пяти минутах транспортом находится «МЕГА Парнас», а также «OBI»,«IKEA» и «Ашан», в 15 минутах – курорт «Охта-парк». В радиусе пяти километров расположены метро «Парнас», «Проспект Просвещения», «Гражданский проспект» и «Девяткино». Выезд на КАД – в пяти минутах транспортом. Ждем Вас на просмотр!
Цена
5 400 000 ₽

1-х комнатная квартира

Первомайское 1-е (Тайвань) м.Беговая


25.5 м2
Общая
15.8 м2
Жилая
4.1 м2
Кухня
(168) Продается 1 комнатная квартира в п. Первомайское-1 Выборгского района Ленинградской области(поселок располагается в 13 км от п. Первомайское). Общая площадь 25,5 кв. м, жилая 15,8 кв. м, кухня 4,1 кв. м., с/у совмещенный. Квартира расположена на 1 этаже 3 этажного теплого кирпичного дома. Требуется косметический ремонт. Горячая вода - электрический бойлер, отопление - своя котельная в поселке, плита электрическая. Один собственник. Ф 9 чистая. Прямая продажа. Больше 5 лет в собственности. От ж/д ст. Рощино ходит регулярно автобус (через п. Первомайское). От СПб 70 км. Поселок расположен в окружении хвойного леса, ягоды и грибы. В поселке есть магазин, фельдшер, детская площадка. Отличное предложение как для дачи, так и для постоянного места проживания. Расписание автобуса №124 от Рощино 6-00,08-25,13-30,16-55,19-05; от Первомайское-1( бывший военный городок).
Цена
1 300 000 ₽

1-х комнатная квартира

Кузьмоловский пос., Школьная ул. м.Девяткино


30.5 м2
Общая
16.2 м2
Жилая
5.3 м2
Кухня
Вашему вниманию предлагается квартира в центре поселка,, в уютном зеленом дворе. Квартира чистая ,удобная. В шаговой доступности школа,детский сад.магазины ,удобное сообщение с СПб . Поселок городского типа с развитой инфраструктурой. В 10 минутах езды  прекрасное место для отдыха  и занятий спортом-Охта парк!,Кавголовское озеро.  Есть Дом Культуры,музыуальная школа. Один взрослый собственник. В собственности более 20 лет. Прямая продажа.
Цена
3 650 000 ₽

1-х комнатная квартира

Энергетиков просп. м.Ладожская


34 м2
Общая
16 м2
Жилая
 —
Кухня
Продается 1 комнатная квартира в теплом кирпичном доме ,уникальной архитектурой , в Санкт Петербурге всего 8 таких  зданий  построенные по специальному проекту. В квартире сделан качественный ремонт ,проведена замена водопроводных труб , и электрики,  заменены стояки, установлена новая сантехника, в доме 2 лифта дом очень теплый , хорошая звукоизоляция, соседей не слышно, квартира светлая и очень уютная . Рядом с домом магазины ,почта, аптеки, поликлиника, автобусная и трамвайная остановки,  до метро Ладожская 2 остановки транспортом или 20 минут пешком ,во дворе школы и детские сады ,
Цена
8 000 000 ₽

1-х комнатная квартира

Сестрорецк г., Гагаринская ул. м.Беговая


35.1 м2
Общая
16.7 м2
Жилая
9.8 м2
Кухня
(110) Сестрорецк, ул. Гагаринская д. 77 В продаже светлая 1 ком.квартира (евродвушка - кухня гостиная 16,7 к.м, спальня 9,8 кв.м). Застекленная лоджия с теплым полом, можно использовать как кабинет. Новый, современный ремонт, квартира продается укомплектованная мебелью и бытовой техникой. Окна выходят во двор. Во дворе всегда есть место для парковки, также у дома 2-этажный паркинг. Новый, современный дом 2017 года постройки. Спокойные, семейные соседи. Чистая парадная, имеющая 2 входа, комфортный просторный лифт. В 5 минутах пешком от дома живописная набережная озера Разлив, пляж `Белая горка`. Рядом парк с прогулочными зонами и соснами. В шаговой доступности ж.д. станция Разлив, все магазины, пункт Озон, остановка общ. транспорта. Квартира в собственности более 5 лт, один собственник, без обременений. Пряма продажа.
Цена
9 900 000 ₽

1-х комнатная квартира

Ветеранов просп. м.Проспект Ветеранов


30.5 м2
Общая
17.9 м2
Жилая
6.3 м2
Кухня
Продается уютная квартира по адресу пр.Ветеранов д11.В хорошем зеленом районе .В пяти минутах ходьбы  метро Ветеранов.Вся инфраструктура находиться в шаговой доступности : Магазины,школы,дет сады. Место тихое и спокойное. Много детских площадок.Квартира  светлая и уютная ,новым хозяевым оставляем кухню и мебель. В Квартире сделан ремонт ,на полу плитка ,в комнате постелен ламинат . Квартира без обременений .Подойдет под ипотеку! Квартира ждет новых хозяев !
Цена
6 550 000 ₽

1-х комнатная квартира

Ломоносов г., 1 Нижняя ул. м.Автово


28.2 м2
Общая
17.2 м2
Жилая
6 м2
Кухня
СПб, Ломоносов, 1-Нижняя ул.1А. Отличная 1 к.кв. в одном из лучших пригородов СПб. Квартира с бабушкиным ремонтом, но чистая и уютная. Редкий 3 этаж! Просторная светлая комната 17,9 кв.м. Застекленный балкон 2.6 кв.м. Великолепная инфраструктура! Рядом ж.д.вокзал, остановки транспорта, разнообразные магазины, банк и т.д. Дворцово-парковый ансамбль Ораниенбаум - прекрасное место для прогулок, в пешей доступности. 45 минут до города. 5 минут до КАД. Недалеко песчаный пляж Финского залива. Детский сад во дворе, школа - 10 минут пешком. Электричек не слышно вообще! Один взрослый собственник. Легкая встречная покупка.
Цена
3 990 000 ₽

1-х комнатная квартира

Измайловский бул. м.Балтийская


47.5 м2
Общая
14.2 м2
Жилая
14.1 м2
Кухня
Пpoдаeтcя прocтoрнaя и светлая1 комнатная квартира 47,5 м2. в ЖK «Гaлактикa» paспoложeнная близко c наб. Обвoднoгo кaналa и Mосковcким прoспeктoм. 6 этаж 18 ти этажного дома. Квартира новая, без отделки и это позволит реализовать свои фантазии в ремонте. Адмиралтейского район, центр города. Отличная локация, метро рядом ! До м. Фрунзенская - 5 минут на машине, 15 минут пешком.       м. Балтийская   - 5 минут на машине, 15 минут можно пройти пешком.       м. Московские ворота - 7 минут на машине. За 10 минут можно доехать до центра города на  машине или на общественном транспорте, 25 минут до аэропорта, рядом выезд на ЗСД и КАД. Невского проспекта всего 14 минут на автомобиле. Лиговского проспекта  можно дойти не спеша , всего 2 километра, до Московского вокзала – 4,5 километра, до ЗСД – 2,5 километра, до КАД – 7 километров, до международного аэропорта «Пулково» – 15 километров. - Кухня 14,1м 2. - Комната 14,2 м2 - Ванная+туалет  5,2 м2 - Прихожая 9,9 м2., в том числе гардеробная 1,3 м2. - Лоджия 8,3 м2 позволит разместить дополнительное рабочее место. Кухня-гостиная с двумя окнами отлично разделяется на зону готовки, столовую часть и место отдыха. Окна квартиры выходят на восточную сторону – в квартире будет всегда солнечно в первой половине дня. Из кухни выход на остеклённую лоджию. Это дает возможность  обустроить дополнительное место отдыха или хранения. Безопасность: круглосуточное видеонаблюдение и контроль доступа в парадные; Можно зонировать кухню и комнату. Санузел и ванная совмещены. Площадь санузла позволит установить всю необходимую сантехнику, мебель, стиральную машину. - Закрытый двор , без машин. Вечером можно прогуляться вдоль Обводного канала, который находится в пешей доступности. Рядом , в кварталах находятся детские сады, школы, гимназии, лицеи и вузы, работают торговые центры, магазины, спортивные центры, кафе и рестораны. Возможна ипотека, в том числе семейная. Звоните!
Цена
17 800 000 ₽

Закажите консультацию специалиста

Оставьте заявку
Нажимая на кнопку «Отправить заявку», Вы даете согласие на обработку своих персональных данных.
×
продажа
Что вы хотите продать?
Сколько комнат?
Тип объекта?
В каком регионе?
В каком районе Санкт-Петербурга
В каком районе Ленинградской области?

Оставьте Ваш контакт и наши специалисты свяжутся с Вами в самые кротчайшие сроки.

+7
×
новостройка
Какие районы Санкт-Петербурга Вас интересуют?
С какой целью Вы планируете приобрести квартиру?
Сколько комнат должно быть в Вашей будущей квартире?
Какой вариант отделки Вам необходим?
Когда Вы хотите заехать?
В какой бюджет хотите уложиться?

Оставьте Ваш контакт и получите подборку квартир без риска столкнуться с мошенничеством и недостроем.

+7
×
сдать
Что вы хотите сдать?
Скольки комнатная квартира?
Какой тип коммерческой недвижимости вы хотите сдать?
В каком регионе?
В каком районе Санкт-Петербурга
В каком районе Ленинградской области?

Оставьте Ваш контакт и наши специалисты свяжутся с Вами в самые кротчайшие сроки.

+7
Этот сайт использует файлы cookie для улучшения пользовательского опыта. Cookie - это небольшие текстовые файлы, которые сохраняются на вашем устройстве и помогают нам запоминать ваши предпочтения, анализировать посещаемость сайта и предоставлять более персонализированный контент. Использование файлов cookie позволяет нам сделать сайт удобнее для вас. Политика конфиденциальности
Принять Отказаться