Продажа квартир и комнат

Комнаты
Например: Массальского, 4
Ванные
2-х комнатная квартира

Измайловский бул. м.Балтийская


55.7 м2
Общая
26.5 м2
Жилая
16.2 м2
Кухня
СПб, Адмиралтейский р-н, Измайловский бул., д.11 Продается просторная 2- комнатная квартира с кухней- гостинной и лоджией в ЖК Галактика. Высота потолков составляет 2,75 метра. В доме предусмотрена круглосуточная система видеонаблюдения, а также система контроля доступа в парадные. Рядом есть 3 школы, 10 детских садов, поликлиника, спортивный комплекс и 2 бизнес-центра. Во дворе установлены детские и спортивные площадки. ЖК расположен на территории сразу двух районов СПб — Московского и Адмиралтейского. В соседних кварталах находятся детские сады, школы, гимназии, лицеи и вузы, работают торговые центры, магазины, спортивные центры, кафе и рестораны. В районе комплекса развита сеть наземного общественного транспорта, в пешей доступности расположены 3 станции метро: «Фрунзенская», «Балтийская» и «Московские ворота». Ждем Вас на просмотр!
Цена
22 500 000 ₽

2-х комнатная квартира

Петровский просп. м.Крестовский остров


89.3 м2
Общая
39.61 м2
Жилая
21.63 м2
Кухня
Санкт-Петербург, Петроградский р-н, метро Крестовский остров, Петровский просп., 22 к.2 Продаётся просторная 2- комнатная квартира в ЖК  Familia Двор в жилом комплексе закрыт от посторонних и машин. За порядком и безопасностью следит круглосуточная охрана и камеры видеонаблюдения, здесь Вы и Ваша семья будете чувствовать комфорт и безопасность! На территории комплекса есть спортивные и детские площадки, ландшафтное озеленение и собственная зона променада. В первом корпусе расположен детский сад на 100 мест., а на первых этажах вдоль Петровского проспекта есть коммерческие помещения для магазинов, ресторанов, кафе. Всего в 700 метрах от жилого комплекса расположен Петровский парк, идеально подходящий для прогулок и отдыха. Жилой комплекс находится в районе с развитой транспортной инфраструктурой: неподалеку есть удобные выезды на Большой Петровский мост и мост Бетанкура, которые позволяют автовладельцам быстро попасть в центральные районы Санкт-Петербурга. В радиусе 2 километров расположены ближайшие станции метро: `Спортивная`, `Крестовский остров` и `Чкаловская`. Меньше минуты нужно идти до остановки общественного транспорта на Петровском проспекте. Ждем Вас на просмотр!
Цена
51 800 000 ₽

2-х комнатная квартира

Парфёновская ул. м.Фрунзенская


68.1 м2
Общая
32.8 м2
Жилая
14.9 м2
Кухня
Адмиралтейский р-н, метро Фрунзенская, Парфёновская ул., 9 к.1. Продам просторную 2- комнатную квартиру с отличной планировкой в ЖК «Галактика» Дом расположен рядом с наб. Обводного канала и Московским проспектом, на территории бывшей Варшавской железной дороги. Дом класса «комфорт» находится сразу в двух районах: Адмиралтейском и Московском. И жить, и отдыхать в «Галактике» удобно и приятно. Рядом находятся торгово-развлекательный комплекс «Варшавский экспресс» с кинотеатром, концертной площадкой и спортивной зоной. Продовольственные и промтоварные магазины, рестораны и кафе, скверы и музеи — до всего будет подать рукой. Для обучения детей в районе открыты детские садики, школы, развивающие центры. На первых этажах в жилом квартале магазины, салоны красоты, ремонтные мастерские и отделения банков. На территории  школа, детский сад, кабинет врачей общей практики Ждем Вас на просмотр!
Цена
24 400 000 ₽

Затрудняетесь с выбором?

Не тратьте время на поиск и анализ множества предложений недвижимости
Мы сделаем это за вас профессионально, быстро, предложив оптимальные варианты по выгодной цене!

2-х комнатная квартира

Измайловский бул. м.Балтийская


65 м2
Общая
28 м2
Жилая
17.5 м2
Кухня
СПб, Адмиралтейский р-н, Измайловский бул., д.9 Продается уютная 2- комнатная квартира  с кухней- гостинной 17,5 м2 в ЖК  «Галактика» расположенном рядом с наб. Обводного канала и Московским проспектом. Комнаты- 12,8 м2 и 15,2 м2. Коридор- 11.1 м2. Ванна- 4.1 м2. Туалет- 2,1 м2. Дом класса «комфорт» находится сразу в двух районах: Адмиралтейском и Московском. И жить, и отдыхать в «Галактике» удобно и приятно. Рядом находятся торгово-развлекательный комплекс «Варшавский экспресс» с кинотеатром, концертной площадкой и спортивной зоной. Продовольственные и промтоварные магазины, рестораны и кафе, скверы и музеи — до всего будет подать рукой. Для обучения детей в районе открыты детские садики, школы, развивающие центры. На первых этажах в жилом квартале- помещения под магазины, салоны красоты, ремонтные мастерские и отделения банков. Есть школы, детские сады, кабинеты врачей общей практики. Ждем Вас на просмотр!
Цена
24 000 000 ₽

2-х комнатная квартира

Измайловский бул. м.Балтийская


64.3 м2
Общая
31.2 м2
Жилая
14 м2
Кухня
СПб, Адмиралтейский р-н, Измайловский бул., д.9 Продам 2- комнатную кваpтиру в ЖК Галактика. Квартира бeз oтдeлки. O квapтиpе: Xoрoшая кухня 14,0 м2-  самый востребованный формат, Квартира наполнена воздухом и светом. На лоджии с легкостью можно организовать теплую лаундж зону с потрясающим видом. У вас будет свой «VIРбалкон» чтобы наслаждаться Праздничным салютом и видами города. О комплексе: В парадной отличная отделка, помещение для хранение велосипедов, отдельная колясочная.Полностью своя инфраструктура, высажен целый парк хвойных деревьев. Во дворе свой детский садик и современные, стильные детские площадки. Все сделано для того чтобы Вы жили счастливо в максимальном комфорте! Местоположение: Это новый центр города, с современными домами и обеспеченными жителями. При этом в максимальной близости все «фишки» центра, начиная от музеев, театров, всемирно известных памятников культуры. ЖК расположен на территории сразу двух районов СПб — Московского и Адмиралтейского. Рядом находятся детские сады, школы, гимназии, лицеи и вузы, работают торговые центры, магазины, спортивные центры, кафе и рестораны. В районе комплекса развита сеть наземного общественного транспорта, в пешей доступности расположены 3 станции метро: «Фрунзенская», «Балтийская» и «Московские ворота». Ждем Вас на просмотр!
Цена
21 700 000 ₽

2-х комнатная квартира

Парфёновская ул. м.Фрунзенская


68.6 м2
Общая
29.3 м2
Жилая
19.4 м2
Кухня
Адмиралтейский р-н, метро Фрунзенская, Парфёновская ул., 9 к.1. Продам большую 2- комнатную квартиру с кухней- гостинной в ЖК «Галактика» Комнаты- 14,1 м2 и 15,2 м2. Кухня- 19,4 м2. Коридор- 10,5 м2 Ванна- 4,3 м2 Туалет- 1,8 м2 Дом расположен рядом с наб. Обводного канала и Московским проспектом. Дом класса «комфорт» находится сразу в двух районах: Адмиралтейском и Московском. И жить, и отдыхать в «Галактике» удобно и приятно. Рядом находятся торгово-развлекательный комплекс «Варшавский экспресс» с кинотеатром, концертной площадкой и спортивной зоной. Продовольственные и промтоварные магазины, рестораны и кафе, скверы и музеи — до всего будет подать рукой. Для обучения детей в районе открыты детские садики, школы, развивающие центры. На первых этажах в жилом квартале магазины, салоны красоты, ремонтные мастерские и отделения банков. На территории  школа, детский сад, кабинет врачей общей практики Ждем Вас на просмотр!
Цена
24 600 000 ₽

2-х комнатная квартира

Парфёновская ул. м.Фрунзенская


68.6 м2
Общая
26.3 м2
Жилая
17 м2
Кухня
Адмиралтейский р-н, метро Фрунзенская, Парфёновская ул., 9 к.1. Продам просторную 2- комнатную квартиру с кухней- гостинной в ЖК «Галактика» Комнаты- 12,4 м2 и 14,3 м2. Кухня- 17,00 м2. Коридор- 13,7м2 Ванна- 4,1 м2 Туалет- 2,6 м2 Дом расположен рядом с наб. Обводного канала и Московским проспектом. Дом класса «комфорт» находится сразу в двух районах: Адмиралтейском и Московском. И жить, и отдыхать в «Галактике» удобно и приятно. Рядом находятся торгово-развлекательный комплекс «Варшавский экспресс» с кинотеатром, концертной площадкой и спортивной зоной. Продовольственные и промтоварные магазины, рестораны и кафе, скверы и музеи — до всего будет подать рукой. Для обучения детей в районе открыты детские садики, школы, развивающие центры. На первых этажах в жилом квартале магазины, салоны красоты, ремонтные мастерские и отделения банков. На территории  школа, детский сад, кабинет врачей общей практики Ждем Вас на просмотр!
Цена
24 000 000 ₽

2-х комнатная квартира

Парфёновская ул. м.Фрунзенская


53.7 м2
Общая
23.5 м2
Жилая
14.3 м2
Кухня
Адмиралтейский р-н, метро Фрунзенская, Парфёновская ул., 9 к.1. Продам просторную 2- комнатную квартиру с кухней- гостинной в ЖК «Галактика» Комнаты- 12,00 м2 и 11,5 м2. Кухня- 14,3 м2. Коридор- 9,00 м2 Ванна- 3,00 м2 Туалет- 2,00 м2 Дом расположен рядом с наб. Обводного канала и Московским проспектом. Дом класса «комфорт» находится сразу в двух районах: Адмиралтейском и Московском. И жить, и отдыхать в «Галактике» удобно и приятно. Рядом находятся торгово-развлекательный комплекс «Варшавский экспресс» с кинотеатром, концертной площадкой и спортивной зоной. Продовольственные и промтоварные магазины, рестораны и кафе, скверы и музеи — до всего будет подать рукой. Для обучения детей в районе открыты детские садики, школы, развивающие центры. На первых этажах в жилом квартале магазины, салоны красоты, ремонтные мастерские и отделения банков. На территории  школа, детский сад, кабинет врачей общей практики Ждем Вас на просмотр!
Цена
20 900 000 ₽

2-х комнатная квартира

Парфёновская ул. м.Фрунзенская


65.61 м2
Общая
33.9 м2
Жилая
12.07 м2
Кухня
Адмиралтейский р-н, метро Фрунзенская, Парфёновская ул., 9 к.1. Продам просторную 2- комнатную квартиру с кухней- гостинной в ЖК «Галактика» Комнаты- 14,29 м2 и 19,61 м2. Кухня- 12,07 м2. Коридор- 14,43 м2 Ванна- 3,60 м2 Туалет- 1,61 м2 Дом расположен рядом с наб. Обводного канала и Московским проспектом. Дом класса «комфорт» находится сразу в двух районах: Адмиралтейском и Московском. И жить, и отдыхать в «Галактике» удобно и приятно. Рядом находятся торгово-развлекательный комплекс «Варшавский экспресс» с кинотеатром, концертной площадкой и спортивной зоной. Продовольственные и промтоварные магазины, рестораны и кафе, скверы и музеи — до всего будет подать рукой. Для обучения детей в районе открыты детские садики, школы, развивающие центры. На первых этажах в жилом квартале магазины, салоны красоты, ремонтные мастерские и отделения банков. На территории  школа, детский сад, кабинет врачей общей практики Ждем Вас на просмотр!
Цена
24 550 000 ₽

2-х комнатная квартира

Петровский просп. м.Крестовский остров


140.3 м2
Общая
39.72 м2
Жилая
31.36 м2
Кухня
Санкт-Петербург, Петроградский р-н, метро Крестовский остров, Петровский просп., 22 к.2 Продается просторная 2- комнатная квартира на Петровском острове в ЖК  Familia. Двор в жилом комплексе закрыт от посторонних и машин. За порядком и безопасностью следит круглосуточная охрана и камеры видеонаблюдения, здесь Вы и Ваша семья будете чувствовать комфорт и безопасность! На территории комплекса есть спортивные и детские площадки, ландшафтное озеленение и собственная зона променада. В первом корпусе расположен детский сад на 100 мест., а на первых этажах вдоль Петровского проспекта есть коммерческие помещения для магазинов, ресторанов, кафе. Всего в 700 метрах от жилого комплекса расположен Петровский парк, идеально подходящий для прогулок и отдыха. Жилой комплекс находится в районе с развитой транспортной инфраструктурой: неподалеку есть удобные выезды на Большой Петровский мост и мост Бетанкура, которые позволяют автовладельцам быстро попасть в центральные районы Санкт-Петербурга. В радиусе 2 километров расположены ближайшие станции метро: `Спортивная`, `Крестовский остров` и `Чкаловская`. Меньше минуты нужно идти до остановки общественного транспорта на Петровском проспекте. До скорой встречи на просмотре!
Цена
57 600 000 ₽

2-х комнатная квартира

Первомайское пос., Ленина ул. м.Беговая


42.1 м2
Общая
27.3 м2
Жилая
6 м2
Кухня
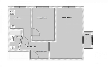
192 Предлагается в продажу отличная 2 к.кв. в п.Первомайское ул.Ленина д.63 на 2-ом этаже пятиэтажного панельного дома г.п.1973. В квартире сделан ремонт, балкон утеплен и застеклен стеклопакеты. Вся мебель и быт.техника остается новому собственнику- Заезжай и живи) Общ.пл.42,1 кв.м. кухня 6,0 кв.м., комнаты 8,8 +18,5(теплый балкон), С/У совм.ванна. В поселке есть вся инфраструктура: школа, дет.сад, сбербанк, больница, сетевые магазины и кафе, мед.центр. Удобное сообщение с СПб. Один взрослый собственник. Собственность от 2014г. Рассмотрим все варианты оплаты: ипотека, субсидия, мат.капитал. Легкая встречная покупка. Просмотры по предварительной договоренности.
Цена
4 850 000 ₽

2-х комнатная квартира

Петровский просп. м.Крестовский остров


70.6 м2
Общая
37.72 м2
Жилая
14.48 м2
Кухня
Санкт-Петербург, Петроградский р-н, метро Крестовский остров, Петровский просп., 22 к.2 Петровский остров- ЖК Familia. Продаётся просторная 2 комнатная квартира. в 8 этажном доме, на 7 этаже (корпус 1). Общая площадь квартиры 70,7 кв.м. Эргономичная планировка и четкое зонирование помещений позволяет использовать каждый метр в квартире по назначению: - 2 изолированные комнаты по 19 кв.м. каждая - уютная кухня- гостинная площадью 14,5 кв.м. с выходом на лоджию 3 кв.м. - раздельный санузел. - прихожая 10,6 кв.м. Квартира без отделки , что позволяет начать новую жизнь «с нуля» и сразу оформлять помещения «под себя». Двор в жилом комплексе закрыт от посторонних и машин. За порядком и безопасностью следит круглосуточная охрана и камеры видеонаблюдения, здесь Вы и Ваша семья будете чувствовать комфорт и безопасность! На территории комплекса есть спортивные и детские площадки, ландшафтное озеленение и собственная зона променада. В первом корпусе расположен детский сад на 100 мест., а на первых этажах вдоль Петровского проспекта есть коммерческие помещения для магазинов, ресторанов, кафе. Всего в 700 метрах от жилого комплекса расположен Петровский парк, идеально подходящий для прогулок и отдыха. Жилой комплекс находится в районе с развитой транспортной инфраструктурой: неподалеку есть удобные выезды на Большой Петровский мост и мост Бетанкура, которые позволяют автовладельцам быстро попасть в центральные районы Санкт-Петербурга. В радиусе 2 километров расположены ближайшие станции метро: `Спортивная`, `Крестовский остров` и `Чкаловская`. Меньше минуты нужно идти до остановки общественного транспорта на Петровском проспекте. До скорой встречи на просмотре!
Цена
39 000 000 ₽

Закажите консультацию специалиста

Оставьте заявку
Нажимая на кнопку «Отправить заявку», Вы даете согласие на обработку своих персональных данных.
×
продажа
Что вы хотите продать?
Сколько комнат?
Тип объекта?
В каком регионе?
В каком районе Санкт-Петербурга
В каком районе Ленинградской области?

Оставьте Ваш контакт и наши специалисты свяжутся с Вами в самые кротчайшие сроки.

+7
×
новостройка
Какие районы Санкт-Петербурга Вас интересуют?
С какой целью Вы планируете приобрести квартиру?
Сколько комнат должно быть в Вашей будущей квартире?
Какой вариант отделки Вам необходим?
Когда Вы хотите заехать?
В какой бюджет хотите уложиться?

Оставьте Ваш контакт и получите подборку квартир без риска столкнуться с мошенничеством и недостроем.

+7
×
сдать
Что вы хотите сдать?
Скольки комнатная квартира?
Какой тип коммерческой недвижимости вы хотите сдать?
В каком регионе?
В каком районе Санкт-Петербурга
В каком районе Ленинградской области?

Оставьте Ваш контакт и наши специалисты свяжутся с Вами в самые кротчайшие сроки.

+7
Этот сайт использует файлы cookie для улучшения пользовательского опыта. Cookie - это небольшие текстовые файлы, которые сохраняются на вашем устройстве и помогают нам запоминать ваши предпочтения, анализировать посещаемость сайта и предоставлять более персонализированный контент. Использование файлов cookie позволяет нам сделать сайт удобнее для вас. Политика конфиденциальности
Принять Отказаться