Жилой дом

ЛО, Всеволожский, Всеволожск г., Пермская ул.   Посмотреть на карте

Номер объекта: 333771
Цена на м2: 103 175

Время работы Call Центра:

ПН-ПТ с 9-30 до 22-00

СБ-ВС с 10-00 до 22-00

Нажимая на кнопку «Позвонить мне», Вы даете согласие на обработку своих персональных данных.

Описание

Ленинградская область, Всеволожский р-н, Всеволожск г. Новый коттедж-дуплекс, изолированная секция с реалным разделом в центре города в элитной коттеджной застройке. Отличный асфальтовый подъезд.Достойное окружение. Все центральные коммуникации в доме ( эл-во 15 кВт, центр. водопровод, газ, септик). Монолитная межэтажная лестница.Теплые полы на обеих этажах+ батареи. Разведено Электричество. Выполнена предчистовая отделка стен.
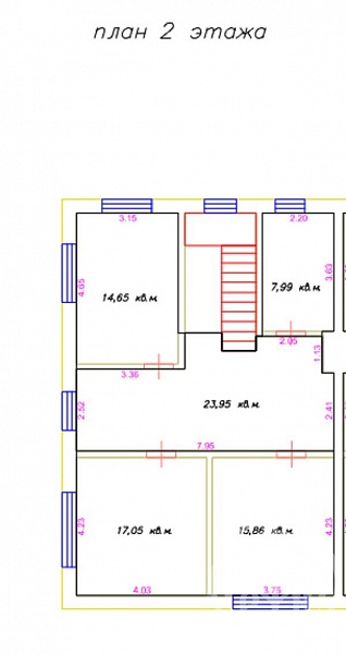
Планировка дома:
1 этаж: просторная прихожая, гардеробная, оборудованная котельная, большой совмещенный санузел, гостевая комната, кухня- гостиная с выходом на террасу.
2 этаж: 3 просторные спальни, санузел с возможностью установки ванной.
Дом построен из пено-газобетона , выполнено наружное утепление, отделка фасада- полнотелый кирпич..
Участок высокий, сухой. Огорожен металлическим штакетником, автоматические ворота на въезд. Выполнено мощение въездной площадки.
Инфраструктура в 10 минутах на авто: Гипермаркеты, Государственные и частные школы и детские сады, Больница, медицинские центры, Спортивные комплексы, Салоны красоты и пр.

Расположение

Адрес
Всеволожск г., Пермская ул.
Метро
Ладожская
Район
Всеволожский
Расстояние от СПб
10
Город
Всеволожск
Регион
Ленинградская область

Площади, м2

Жилая площадь
97.65
Общая площадь
189
Площадь кухни
34.6
Площадь участка
3.4 сот.

Параметры

Комнат
5
Санузел
2 сан.узла
Состояние
Отличное
Этажей
2
Ипотека
Да
Отделка
Без отделки
Отопление
АГВ
Электрификация
380
Водоснабжение
Центр. водопровод
Стены
Пено-газобетон
Крыша
Металлочерепица
Подъездные пути
Асфальт
Фундамент
Заливной монолитный
Разрешенное использование
ИЖС
Участок
Собственность

Узнайте больше об объекте

Получите консультацию специалиста

Нажимая на кнопку «Отправить заявку», Вы даете согласие на обработку своих персональных данных.

Объект на карте

Похожие объекты

Этот сайт использует файлы cookie для улучшения пользовательского опыта. Cookie - это небольшие текстовые файлы, которые сохраняются на вашем устройстве и помогают нам запоминать ваши предпочтения, анализировать посещаемость сайта и предоставлять более персонализированный контент. Использование файлов cookie позволяет нам сделать сайт удобнее для вас. Политика конфиденциальности
Принять Отказаться